Prodej bytu 2+kk, Praha - Strašnice, Za poštou, 38 m2
Za poštou, Praha, Strašnice
(Cena včetně provize a právních služeb.)
Popis
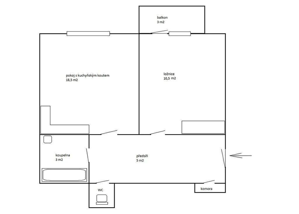
Nabízíme k prodeji pěkný byt 2+kk s balkonem ve třetím patře cihlového domu v Praze 10 Strašnicích. Byt byl v roce 2019 zrekonstruován, jsou zde nové rozvody vody a elektřiny, plastová okna, rohová kuchyňská linka se spotřebiči, koupelna s vanou, WC je samostatně, na podlahách je vinyl a dlažba. Okna a balkon jsou orientovány do klidného vnitrobloku. Topení a ohřev vody je zajištěn elektro kotlem. K bytu patří také sklep. Poplatky včetně fondu oprav jsou ve výši 2.070,- Kč pro dvě osoby. Metro Strašnická je cca 8 minut chůze, stanice tramvaje cca 2 minuty chůze. V okolí je veškerá občanská vybavenost. Volný od 1.1. 2026.
Máte zájem o tuto nemovitost?
Vodičkova 682/20, Praha
Pomůžeme Vám!
Pomůžeme Vám!
Kontakt

František Cakl
Přihlášení k odběru
Nenechte si ujít nejnovější nabídky prodeje bytů 2+kk v Praze 10.
Tipy Realitymatu