Prodej chalupy, Šubířov, 90 m2
Šubířov, Chobyně
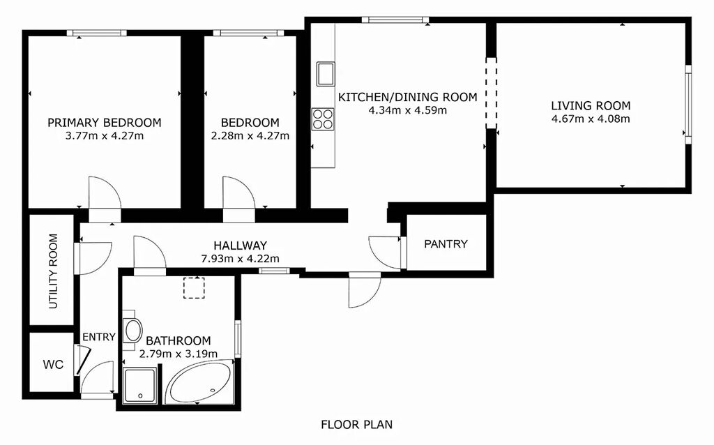
Popis
Představte si život obklopený přírodou, s vůní čerstvé zeleniny ze své zahrady a teplem krbu během chladných večerů. Nabízíme k prodeji jedinečnou, pečlivě udržovanou chalupu v klidné lokalitě Chobyně 25, která je ideální jak pro celoroční bydlení, tak i pro relaxaci chalupářů nebo jako výhodná investice.
Co na vás čeká?
* Útulný interiér 3+kk o rozloze cca 90 m²: Vstupte do domova, kde se snoubí tradiční kouzlo s moderním komfortem. Dřevěné prkenné podlahy (nebo plovoucí podlaha) dodávají interiéru vřelost.
* Srdce domova – obývací pokoj s krbem: Dokonalé místo pro rodinná setkání a odpočinek, kde krb navodí nezapomenutelnou atmosféru.
* Kuchyně s kachlovými kamny/pecí: Prostorná kuchyně, která láká k vaření, je vybavena kachlovými kamny/pecí, která nejen efektivně vytápí, ale i dodávají prostoru rustikální šarm.
* Moderní koupelna: Koupelna prošla modernizací a je vybavena sprchovým koutem a vanou pro maximální relaxaci.
* Velkorysá zahrada (316 m²): Zahrada je skutečným pokladem! Můžete zde pěstovat vlastní zeleninu nebo relaxovat na terase. Zahrada má navíc vlastní druhý přístup.
* Praktické přístavby: K domu náleží dvě garáže, dílna a skladovací prostory, které poskytují dostatek úložného prostoru a flexibility pro vaše koníčky. Navíc je zde i přístřešek pro další auto.
* Sítě: Dům je napojen na plyn, elektřinu a vodu z obecní studny. Odpady jsou řešeny septikem. Ohřev vody zajišťuje plynový kotel.
* Flexibilní vytápění: Vybrat si můžete mezi plynovým kotlem, kotlem na tuhá paliva nebo se nechat hýčkat teplem krbu v obývacím pokoji.
Celková zastavěná plocha a nádvoří činí 470 m². Zahrada má dalších 316 m2. Tento cihlový dům s taškovou střechou je zárukou kvality a dlouhé životnosti.
Nenechte si ujít tuto jedinečnou příležitost a přijďte se přesvědčit o kouzlu této chalupy na vlastní oči!
Pro více informací a sjednání prohlídky nás kontaktujte!
Máte zájem o tuto nemovitost?
ERA Bydlení - Ing. Jiří Podešva
Karafiátová 524/11, Olomouc
Pomůžeme Vám!
Pomůžeme Vám!
Kontakt

Ing. Jiří Podešva
Přihlášení k odběru
Nenechte si ujít nejnovější nabídky prodeje chalup v Šubířově.
Tipy Realitymatu

Prodej rodinného domu, Hrubčice, 100 m2
8 000 000 Kč
Podobné nabídky

Prodej chalupy, Rozstání, 80 m2
1 590 000 Kč

Prodej chalupy, Jesenec, 140 m2
3 000 000 Kč

Prodej chalupy, Suchdol - Labutice, 90 m2
5 200 000 Kč

Prodej chalupy, Konice - Nová Dědina, 100 m2
1 450 000 Kč