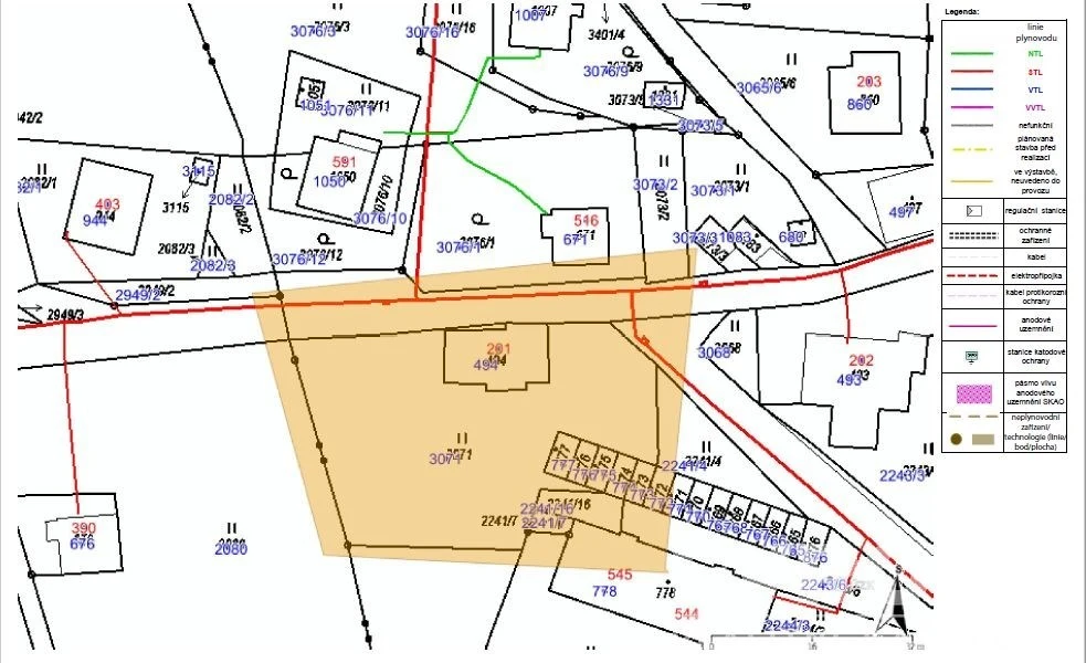
Prodej pozemku pro bydlení, Rokytnice nad Jizerou, 1782 m2
Rokytnice nad Jizerou, okres semily
Popis
Prodej stavebního pozemku s projektem penzionu „Chalet Emma“ – Rokytnice nad Jizerou.
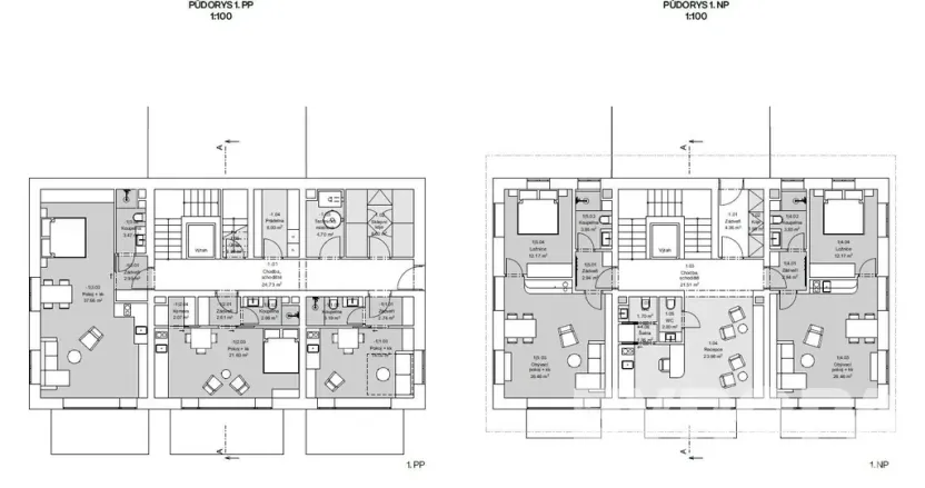
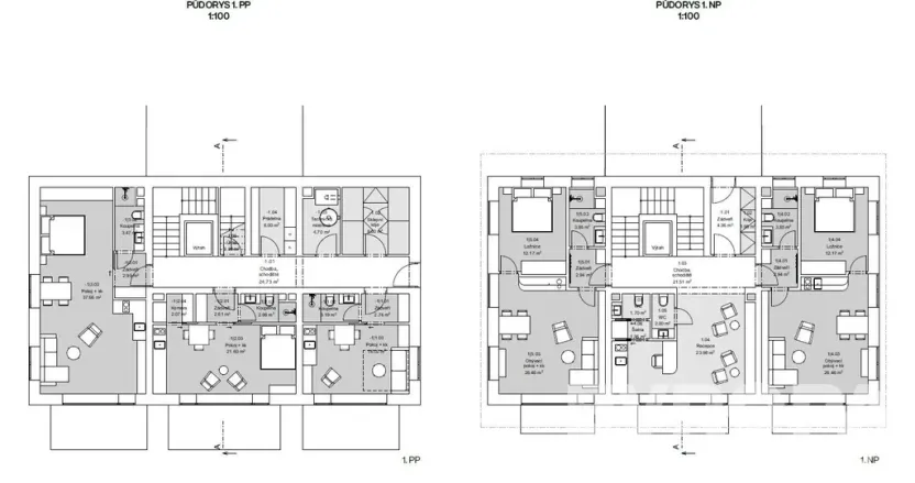
Nabízíme stavební pozemek s kompletním projektem rodinného penzionu „Chalet Emma“ v atraktivní horské lokalitě Rokytnice nad Jizerou. Projekt je připraven ve stavu před vydáním stavebního povolení, což umožňuje rychlý start investice.
Základní informace o projektu:
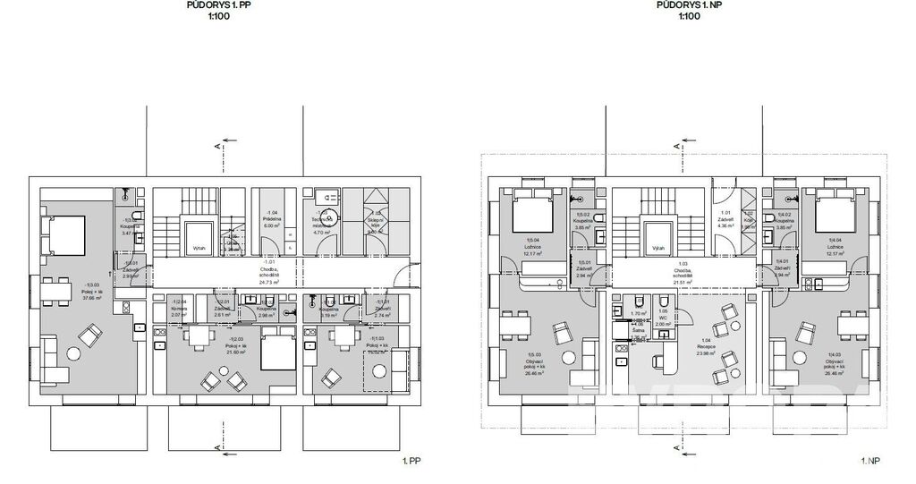
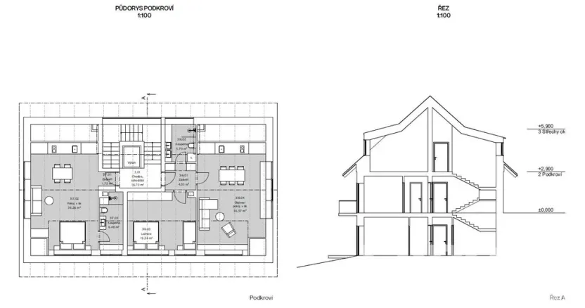
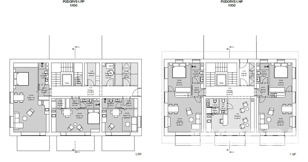
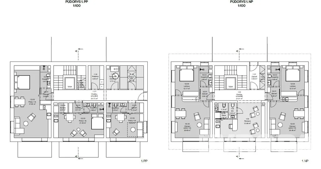
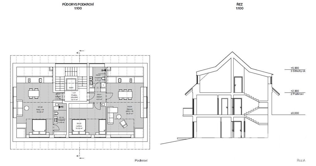
• Rodinný penzion se 7 ubytovacími jednotkami a recepcí
• Podsklepená jednopodlažní budova s obytným podkrovím
• Jednotky mají vlastní sociální zařízení a kuchyňku, některé přímo s přístupem na terasu nebo balkon
• Recepce, společenská místnost a úschovna sportovního vybavení
• Hlavní vstup z ulice, druhý vstup z podzemního podlaží na terasu
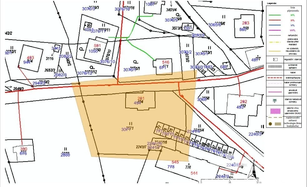
Charakteristika lokality:
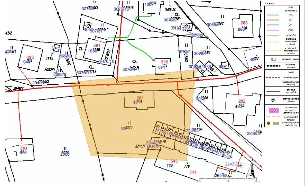
Pozemek se nachází v oblasti s rozvolněnou zástavbou – v okolí jsou rodinné domy, penziony a bytové domy. Nenachází se v záplavovém ani poddolovaném území. Přístup je z místní komunikace. Pozemek je součástí zastavitelného území města.
Stav připravenosti projektu:
• Projekt je ve stavu před vydáním stavebního povolení
• Připravená plánovací smlouva
• Demoliční výměr stávající stavby s nabytím právní moci
• Zajištěna stanoviska dotčených orgánů
• Kompletní projektová dokumentace je k dispozici
Tento projekt představuje unikátní příležitost pro investory: stavební pozemek s připraveným projektem penzionu, včetně všech potřebných dokumentů, je ideální pro rychlou realizaci výstavby ubytovacího zařízení v prestižní horské lokalitě s celoroční turistickou atraktivitou.
Máte zájem o tuto nemovitost?

Václavské náměstí 806/62, Praha
Pomůžeme Vám!
Pomůžeme Vám!
Kontakt

Lubor Karásek
Přihlášení k odběru
Nenechte si ujít nejnovější nabídky prodeje pozemků pro bydlení v Rokytnici nad Jizerou.
Podobné nabídky

Prodej pozemku pro bydlení, Ohrazenice, 1246 m2
8 000 000 Kč

Prodej pozemku pro bydlení, Turnov, 698 m2
2 100 000 Kč