Prodej pozemku pro bydlení, Praha - Hodkovičky, Na lysinách, 1764 m2 (ID: 1956403)
Na Lysinách, Praha, Hodkovičky
(info v RK, včetně DPH, včetně provize)
Popis
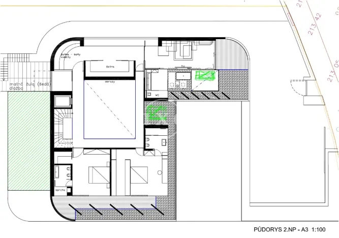
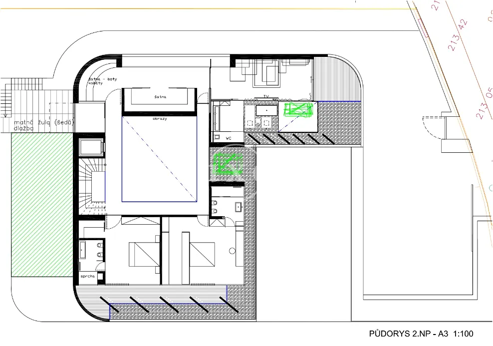
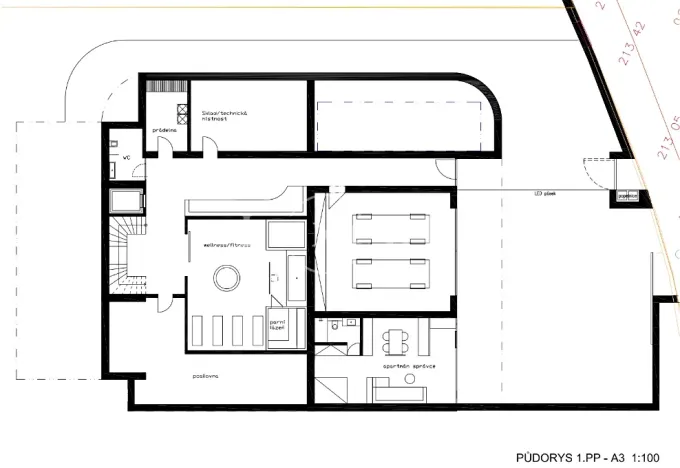
Nabízíme k prodeji stavební pozemek o celkové ploše 1 764 m2. Mírně svažitý pozemek obdélníkového tvaru a s jižní orientací, se nachází v klidné ulici Na Lysinách, Praha 4, mezi stávající zástavbou. Kompletní inženýrské sítě u pozemku.
Dle územního plánu se jedná o OB – čistě obytné. Jako hlavní využití jsou zde plochy pro bydlení.
Přípustné využití: Byty v nebytových domech, mimoškolní zařízení pro děti a mládež, mateřské školy, ambulantní zdravotnická zařízení, zařízení sociálních služeb.
Podmíněně přípustné využití: Pro uspokojení potřeb souvisejících s hlavním a přípustným využitím lze umístit zařízení pro neorganizovaný sport, obchodní zařízení s celkovou hrubou podlažní plochou nepřevyšující 300 m2, parkovací a odstavné plochy, garáže pro osobní automobily.
Dále lze umístit: Lůžková zdravotnická zařízení, církevní zařízení, malá ubytovací zařízení, školy, školská a ostatní vzdělávací zařízení, kulturní zařízení, administrativu a veterinární zařízení v rámci staveb pro bydlení při zachování dominantního podílu bydlení, ambasády, sportovní zařízení, zařízení veřejného stravování, nerušící služby místního významu.
Veškerá občanská vybavenost, zastávka MHD 100 m, škola i školka v dosahu. Nedaleko Lesopark Hodkovičky, Mezinárodní škola The Prague British School, golfové hřiště, cyklostezka a mnoho sportovního vyžití.
Pro bližší informace kontaktujte naši realitní kancelář.
Máte zájem o tuto nemovitost?

Pařížská 131/28, Praha 1
Pomůžeme Vám!
Pomůžeme Vám!
Kontakt

Ing. Zdeněk Jemelík
Přihlášení k odběru
Nenechte si ujít nejnovější nabídky prodeje pozemků pro bydlení v Praze 4.
Podobné nabídky

Prodej pozemku pro bydlení, Praha - Modřany, Do Lipin, 22202 m2
Cena na vyžádání

Prodej pozemku pro bydlení, Praha - Točná, Branišovská, 26545 m2
Cena na vyžádání

Prodej pozemku pro bydlení, Praha, Jalodvorská, 776 m2
Cena na vyžádání

Prodej pozemku pro bydlení, Praha, Na Jitřence, 828 m2
Cena na vyžádání