Prodej pozemku pro bydlení, Praha - Modřany, Ke Spofě, 935 m2 (ID: 1956025)
Ke Spofě, Praha, Modřany
Popis
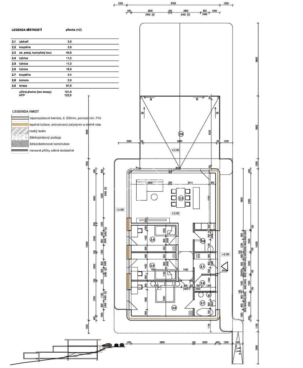
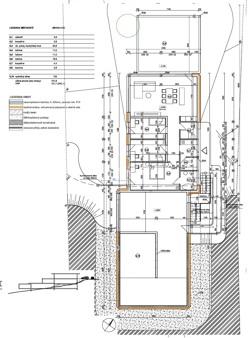
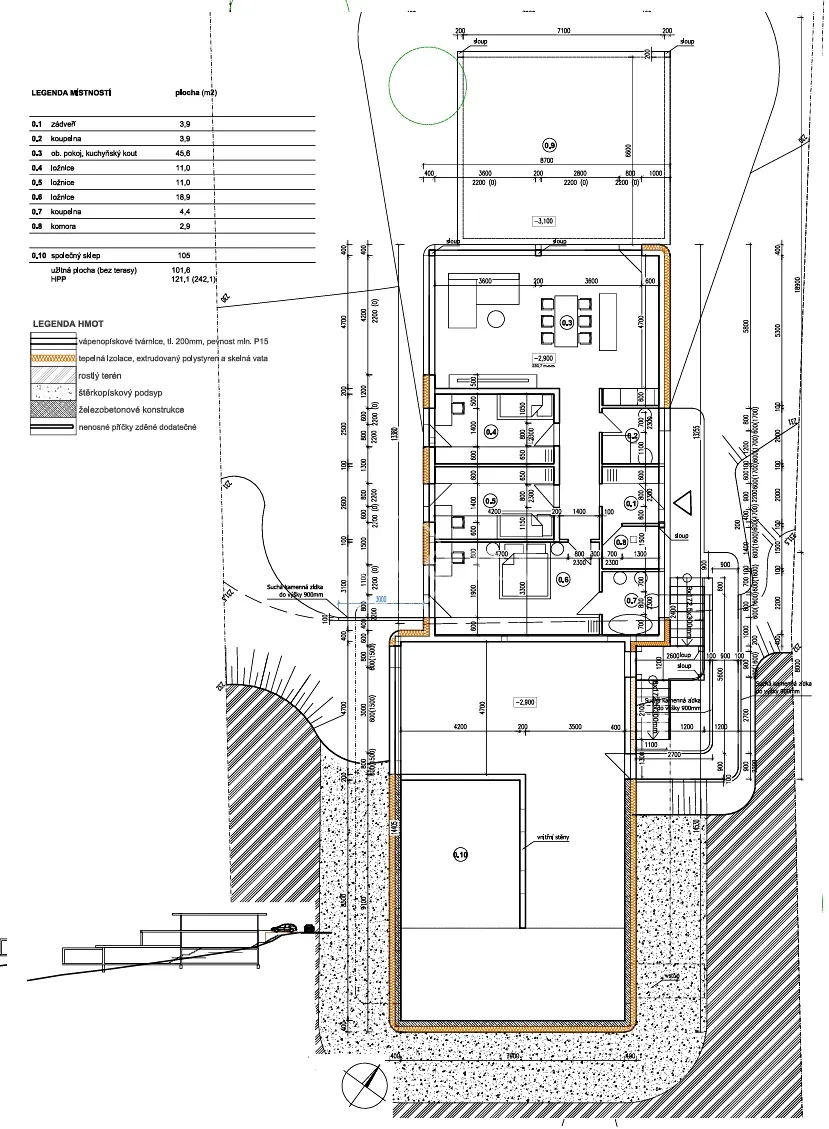
Nabízíme k prodeji pozemek o velikosti 935 m2 s vydaným stavebním povolením na výstavbu luxusního rodinného domu o 3 bytových jednotkách, který se nachází v klidné zástavbě rodinných vil v Modřanech. Mírně svažitý pozemek obdélníkového tvaru má krásné výhledy na údolí Vltavy a je kompletně zasíťovaný.
Dle územního plánu se jedná o OB-A čistě obytné, plochy pro bydlení. Vydané stavební povolení umožňuje výstavbu třípodlažní vily (včetně FVE na střeše) o užitné ploše 305 m2, 241 m2 teras a parkování pro 4 auta.
Projektovou dokumentaci poskytneme na vyžádání.
Modřany jsou známé svými přírodními prvky – v blízkosti se nachází Modřanská rokle nebo oblíbená cyklostezka podél Vltavy, ideální pro procházky, běh nebo cyklistiku. Lokalita s výbornou dopravní dostupností centra Prahy, které zajišťují autobusy či napojení na tramvaj. Dobré spojení na Jižní spojku či Pražský okruh. Veškerá občanská vybavenost je na dosah. V okolí jsou školy, školky, obchody, restaurace a sportovní areály. Nechybí ani zdravotnická zařízení a další služby. Klidná rezidenční lokalita s příjemnou atmosférou rodinného bydlení.
Máte zájem o tuto nemovitost?

Pařížská 131/28, Praha 1
Pomůžeme Vám!
Pomůžeme Vám!
Kontakt

Ing. Zdeněk Jemelík
Přihlášení k odběru
Nenechte si ujít nejnovější nabídky prodeje pozemků pro bydlení v Praze 4.