Prodej rodinného domu, Praha - Horní Měcholupy, U hostivařského nádraží, 189 m2
U Hostivařského nádraží, Praha, Horní Měcholupy
Popis
Hledáte dům v ustálené lokalitě, s moderní architekturou, bezpečným prostředím a okolní přírodou, jinými slovy, ideální bydlení s adresou Prahy? Zveme Vás do areálu Golf Hostivař, kde můžete najít balanc klidové zóny ve městě.
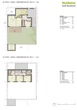
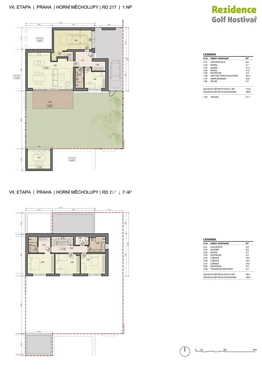
Nabídka domu 5+KK s pozemkem 340 m² s možností výběru interiéru dokončení podle Vašeho vkusu. Přízemí domu zahrnuje vstupní halu, obývací pokoj s kuchyní, ložnici, koupelnu a také garáž pro dva vozy. U obývacího pokoje je obdélníková terasa a navazující zahrada se samostatnou místností, kterou můžete využít podle Vašeho životního stylu. V prvním patře jsou dvě ložnice, koupelna (sprcha, vana), hlavní ložnice se šatnou a vlastní koupelnou a také samostatná místnost pro domácí práce.
Hrubá stavba domu je dokončená a můžete do konce příštího roku bydlet ve vlastním. Cena zahrnuje dokončení, včetně podlah, dveří a koupelen.
Dům má vytápění samostatným plynovým kotlem, hliníková okna s trojsklem, podlahové vytápění a je energetické třídě B. V rámci vlastnictví nemovitosti je také podíl na okolních komunikacích, kde je zajištěný pravidelný servis a údržba v rámci golfového areálu a minimálními náklady.
Rezidence Golf Hostivař je unikátní projekt v Praze 10 – Horních Měcholupech. Celý areál je koncipován jako soukromá čtvrť s kontrolovaným vjezdem, což zajišťuje maximální bezpečí a soukromí obyvatel. Součástí komplexu je 18-ti jamkové golfové hřiště, veřejná klubovna s restaurací a dětské hřiště. Velmi blízko najdete kompletní infrastrukturu a také zastávky MHD.
Máte zájem o tuto nemovitost?
Na Poříčí 2090/2, Praha, Nové Město
Pomůžeme Vám!
Pomůžeme Vám!
Kontakt

Adéla Bukovská - recepce
Přihlášení k odběru
Nenechte si ujít nejnovější nabídky prodeje rodinných domů v Praze 10.
Tipy Realitymatu