Prodej pozemku pro bydlení, Jeseník, U Kasáren, 62000 m2 (ID: 1955602)
U Kasáren, Jeseník
Popis
EXKLUZIVNÍ ROZSÁHLÝ INVESTIČNÍ KOMPLEX 6.2 HA V ATRAKTIVNÍ LOKALITĚ JESENÍKU!
Jedinečná příležitost pro developery a investory v malebném Jeseníku. Nabízíme komplex pozemků o celkové výměře 62 000 m² (6.2 hektarů), který představuje výjimečný potenciál pro výstavbu, ale i pro dlouhodobé zhodnocení investice.
Co získáte:
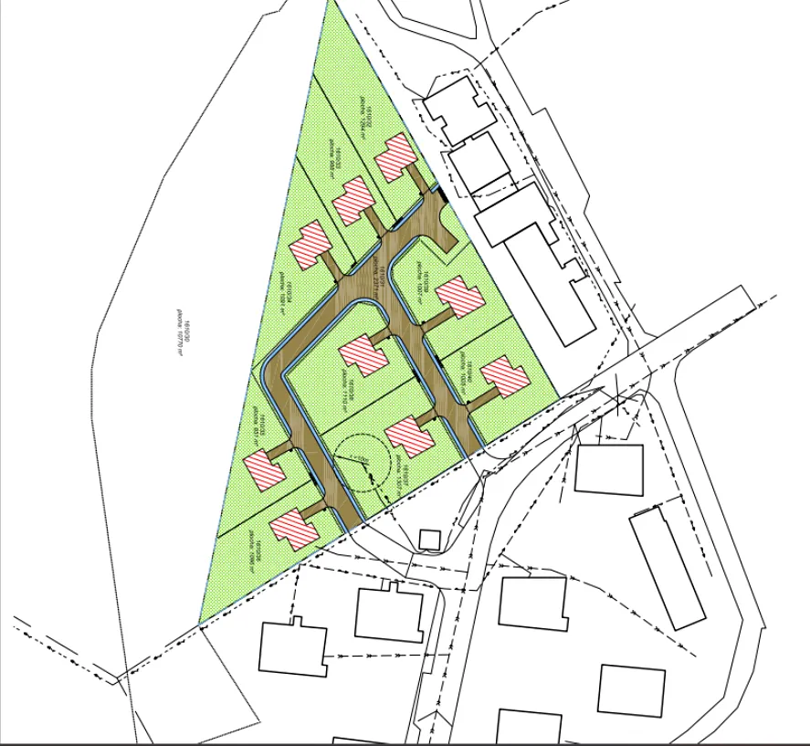
12 600 m² Stavebních pozemků s okamžitým potenciálem (BH, Z4): Tyto plochy jsou ideální pro realizaci projektu rodinných domů, pro který je již k dispozici podrobná mapa dělení parcel pro 9 rodinných domů. Ačkoli je tento podklad z konce roku 2012, představuje cenný výchozí bod pro další projektování. Pozemky zároveň umožňují i výstavbu bytových domů a drobných komerčních či občanských zařízení, což zajišťuje velkou flexibilitu využití. Realizace projektu rodinných domů podléhá splnění aktuálních podmínek územního plánu pro podmíněně přípustné využití.
 
23 886 m² Územní Rezerva s určením pro hromadné bydlení (R12): Tato významná plocha je v územním plánu zanesena jako územní rezerva pro budoucí development, s potenciálem výrazného zhodnocení. Na jedné hranici je navíc definována jako plocha s určením pro budoucí transformaci území, což naznačuje další investiční příležitosti pro celkový rozvoj lokality. (PV) Přesné možnosti využití a zastavitelnosti podléhají detailnímu prověření v územním plánu města. (A)
 
Pás 18 924 m² s potenciálem budoucího využití: Strategicky umístěný hned vedle stávající zástavby, s potenciálem pro budoucí změnu územního plánu a následnou výstavbu dalších bytových či rodinných domů. Budoucí využití je vázáno na případné schválení změny územního plánu městem Jeseník a dostupnost inženýrských sítí.
 
Infrastruktura a rozvoj:
Ke stavebním pozemkům vede stávající obecní příjezdová cesta z ulice U Kasáren. Budoucí majitel si na tuto obecní cestu bude muset napojit vlastní příjezd. Pro rozvoj 12 600 m² stavebních pozemků počítá projekt dělení pozemků s vybudováním dalších vnitřních komunikací a nové inženýrské sítě, včetně dalších příjezdů ke každému domu, které jsou přehledně zobrazeny ve vizualizacích.
Dlouhodobá investiční hodnota:
Kombinace stavebních pozemků s okamžitým využitím a rozsáhlých ploch s potenciálem budoucího rozvoje v dynamicky se rozvíjející lokalitě zaručuje, že se Vám investované prostředky do budoucna mnohonásobně zhodnotí!
 
Cenová strategie:
Celý pozemkový komplex o celkové výměře 62 000 m² se prodává VÝHRADNĚ JAKO CELEK.
Celková cena za celý komplex: 25 000 000 Kč.
Tato cena je složena z:
Stavební pozemky (12 600 m²): Kalkulovány za 1 200 Kč/m² (celkem 15 120 000 Kč).
Zbývajících 49 400 m² (nestavební pozemky včetně územní rezervy a pásu s potenciálem budoucího využití): Kalkulovány za 200 Kč/m² (celkem 9 880 000 Kč).
Upozornění: Pozemky se prodávají pouze jako celek za uvedenou celkovou cenu.
Pro detailnější informace, veškeré dostupné mapové podklady, územní plány a další dokumenty neváhejte kdykoliv kontaktovat makléřku na uvedených kontaktech. Vše vám ráda zašle e-mailem.
Máte zájem o tuto nemovitost?
 
                                Vítkovická 3276/2a, Ostrava, Moravská Ostrava
Pomůžeme Vám!
Pomůžeme Vám!
Kontakt
 
                        Renáta Mandincová
Přihlášení k odběru
Nenechte si ujít nejnovější nabídky prodeje pozemků pro bydlení v Jeseníku.
Podobné nabídky
 
        Prodej pozemku pro bydlení, Jeseník, Rudná, 896 m2
3 040 000 Kč
 
        Prodej pozemku pro bydlení, Jeseník, Thámova, 4992 m2
10 960 500 Kč
 
                                                                                     
                                                                                     
                                                                                     
                                                                                     
                                                                                     
                                                                                     
                                                                                     
                                                                                     
                                                                                     
                                                                                     
                                                                                     
                                                                                     
                                                                                     
                                                                                     
                                                                                     
                                                                                     
                                                                                     
                                                                                     
                                                                                     
                                                                                     
                                                                                     
                                                                                     
                                                                                     
         
        