Pronájem bytu 1+kk, Praha - Nové Město, Spálená, 34 m2
Spálená, Praha, Nové Město
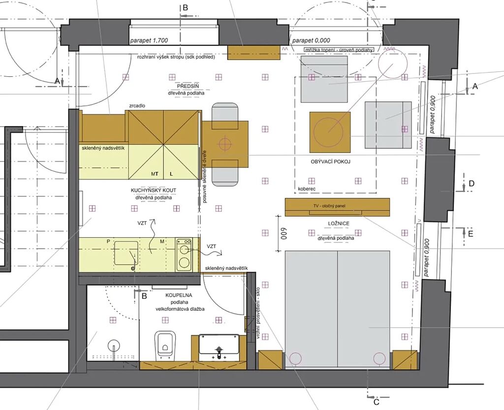
Popis
Ve výhradním zastoupení nabízíme vybavený ateliér 1kk od renomovaného architektonického Studia by Donlić v rezidenci SPALENA5 oceněné Realitní projekt roku 2016.
Byt se nachází v zeleném vnitrobloku residence a je velmi tichý. Mezi hlavní vybavení tohoto patří klimatizační jednotka Mitsubishi, eurookna s trojskly, jež jsou stíněny dálkově ovládanými blackout roletami, parkety z běleného dubu skládané do čtverců, kompletní interiér z dubu, skla a nerezu, kuchyňské spotřebiče Miele - varná deska, lednice s mrazákem, trouba, kombinovaná pračka se sušičkou. V obývací části je na otočném panelu umístěna smart TV s Netflix, audio přehrávač Sony.
Byt je zcela zařízený včetně nádobí, kávovaru atd.
Rezidence Spalená5 má recepci v režimu 24/7.
Díky velikosti je byt vhodný pouze pro 1 osobu.
Měsíční záloha na energie a služby včetně recepce a internetu: 6.858 Kč
+ el. energie přepsána na nájemce.
Jistota (kauce) ve výši 56.000 Kč
Odměna za zprostředkování ve výši jednoho měsíčního nájmu plus DPH.
Máte zájem o tuto nemovitost?
Stroupežnického 3191/17, Praha
Pomůžeme Vám!
Pomůžeme Vám!
Kontakt

Šárka Horáková
Přihlášení k odběru
Nenechte si ujít nejnovější nabídky pronájmu bytů 1+kk v Praze 1.
Tipy Realitymatu