Prodej bytu 2+kk, Oslavany, Široká, 83 m2
Široká, Oslavany
(cena k jednání)
Popis
**PRODEJ EXKLUZIVNÍ NOVOSTAVBY BYTU 2+kk S VLASTNÍ PŘEDZAHRÁDKOU, GARÁŽÍ A ZAHRADOU s celkovou velkorysou plochou 107 m2 + 67 m2 zahrada - Oslavany, ulice Široká**
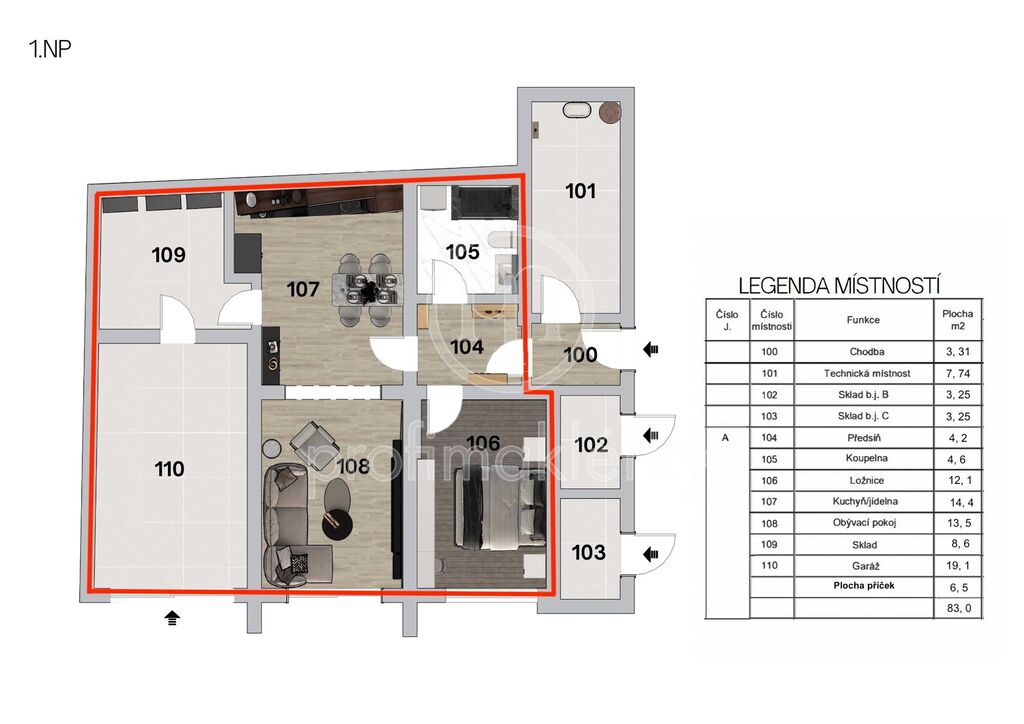
Ve výhradním zastoupení majitele nabízím MODERNÍ BYT 2+kk o podlahové ploše 83m2. Výměra zahrnuje velkou komoru či šatnu, obývací pokoj s francouzkým oknem, prostorný kuchyňský kout, ložnici, koupelnu s toaletou, předsíň a garáž. Dále k bytu náleží soukromá předzahrádka 24 m2 na kterou je přímý vstup z obývacího pokoje a podíl na společné zahradě za domem 55,5 m2.
Ulice Široká, Oslavany | Jen 25 km od Brna
VÝJIMEČNÁ PŘÍLEŽITOST - POUZE 3 BYTY K DISPOZICI!
**Objevte moderní bydlení v jednom ze tří exkluzivních bytů v bytovém domě**, která kombinuje nejnovější technologie s kouzlem klidného města Oslavany. Perfektní pro ty, kdo hledají kvalitní život v dosahu přírody s výbornou dostupností do Brna.
UNIKÁTNÍ MOŽNOST: BYT PŘESNĚ NA VAŠI MÍRU!
** KLIENTSKÉ ZMĚNY BEZ KOMPLIKACÍ:**
**Možnost dokončení podle vašich představ** - stále je čas na úpravy!
**Vlastní volba materiálů** - dlažby, podlahy, obklady podle vašeho vkusu
**Individuální barvy a povrchy** - vytvořte si domov snů
**Možnost zvýhodněné kuchyňské linky na míru** - profesionální návrh a realizace
** VÝHODA: Žádné budoucí rekonstrukce, žádné kompromisy - vše tak, jak si přejete od prvního dne!**
VLASTNÍ PŘEDZAHRÁDKA A ZAHRADA - VÁŠE ZELENÁ OÁZA!
**Pěstujte vlastní ovoce a zeleninu** - čerstvé potraviny přímo z vaší zahrady
**Soukromá předzahrádka** pro relaxaci a grilování
**Kvalitní ornice připravena** - okamžitě můžete začít s výsadbou
**Zavlažování z dešťové vody** - pohodlné a ekologické
## TERMÍNY NASTĚHOVÁNÍ - VYBERTE SI:
**RYCHLÉ JEDNÁNÍ = VÁNOCE DOMA!**
Při rychlém rozhodnutí možnost nastěhování **do Vánoc 2025**
**STANDARDNÍ TERMÍN:** Nastěhování nejpozději **do konce března 2026**
**Kompletní dokončení** včetně terénních úprav **do konce května 2026**
SKVĚLÁ DOPRAVNÍ DOSTUPNOST:
- **Přímé vlakové spojení do Brna** - Oslavany jsou konečnou stanicí železnice z Brna
- **Kvalitní silniční napojení** - 25 km od Brna, snadný příjezd autem
- **Kompletní občanská vybavenost** na dosah ruky
MODERNÍ TECHNOLOGIE & ÚSPORNOST:
- **PENB: B** - nízké náklady na vytápění!
- **Společné tepelné čerpadlo** s možností chlazení
- **Podlahové vytápění/chlazení** po celém bytě, žádné radiátory
- **Příprava pro klimatizaci** již vyvedena
- **Chytré řešení rolet** s elektrickým ovládáním
EKOLOGICKÉ A PRAKTICKÉ ŘEŠENÍ:
- **Retenční nádrž na dešťovou vodu a čerpadlem** (6 m³) pro zalévání zahrady
- **Příprava pro nabíjení elektromobilů** (380V) s bezpečnostním vypínačem uvnitř
PRÉMIOVÉ VYBAVENÍ A DETAILY:
**Francouzské okno** s elektrickými roletami
**Možnost WC s integrovaným bidetem** (na přání)
**Vestavěné úložné prostory** na chodbách (na přání)
**inteligentní a rafinované uspořádání prostoru ** samostatný prostor pro pračku a sušičku
**Garáž s epoxidovou podlahou a elektrickými vraty**
**Novostavba se zárukou** - žádné skryté vady
LOKALITA S POTENCIÁLEM:
- **Přírodní park Oslava** - ideální pro turistiku a cyklovýlety
- **Klidné a bezpečné prostředí** pro rodiny
- **Rostoucí region** s dobrou investiční perspektivou
- **Historické centrum** s občanskou vybaveností
PROČ SI VYBRAT PRÁVĚ TENTO BYT:
**Byt přesně na míru** - vaše sny se stanou realitou
**Vlastní předzahrádka a zahrada** - soběstačnost a relaxace
**Moderní technologie** - tepelné čerpadlo, chytrá domácnost
**Úsporné bydlení** - nízké náklady díky PENB: B
**Připravenost na budoucnost** - elektromobily, klimatizace
**Jedinečná lokalita** - klid venkova, výhody města
SPECIÁLNÍ VÝHODY PRO VÁS:
**Kuchyňská linka na míru za zvýhodněnou cenu**
**Možnost změn podle vašich přání**
**Vlastní zahrada pro pěstování**
**Rychlé nastěhování možné již do Vánoc**
**Možno financovat hypotečním úvěrem, s jehož vyřízením rády pomůžeme**
** IDEÁLNÍ PRO:**
- Mladé rodiny hledající kvalitní bydlení na míru
- Investory s vizí do budoucnosti
- Milovníky přírody a vlastní zahrady
- Ty, kdo oceňují moderní technologie a individualitu
*Pouze 3 bytové jednotky k dispozici - možnost úprav jen po omezenou dobu*
**DEN OTEVŘENÝCH DVEŘÍ: sobota 18.10.2025**
Pro zajištění dostatečného prostoru pro vaše seznámení se s bytem a celým bytovým domem je nutná rezervace konkrétního času prohlídky. Neváhejte mne tedy kontaktovat a přijďte si prohlédnou místo vašeho nového bydlení. Těším se na vás!
** Na míru | S vlastní zahradou | Chytře | Úsporně | Rychle k nastěhování**
Máte zájem o tuto nemovitost?

Minoritská 473/10, Brno
Pomůžeme Vám!
Pomůžeme Vám!
Kontakt

Milada Vejtasová
Přihlášení k odběru
Nenechte si ujít nejnovější nabídky prodeje bytů 2+kk v Oslavanech.
Tipy Realitymatu

Prodej bytu 4+kk, Šlapanice, Těsnohlídkova, 97 m2
11 490 000 Kč

Prodej bytu 3+kk, Rajhrad, Klášterní Dvůr, 60 m2
7 890 000 Kč
Podobné nabídky

Prodej bytu 2+kk, Oslavany, Široká, 57 m2
5 580 000 Kč

Prodej bytu 2+kk, Oslavany, Široká, 44 m2
4 560 000 Kč

Prodej bytu 2+kk, Oslavany, Růžová, 36 m2
2 699 000 Kč

Prodej bytu 2+kk, Šlapanice, 78 m2
9 034 680 Kč