Prodej bytu 3+1, Vimperk - Vimperk III, Špidrova, 70 m2 (ID: 1954741)
Špidrova, Vimperk III
Výkup a prodej starého nábytku
Popis
REZERVOVÁNO.
Byt na Šumavě 3+1 v osobním vlastnictví ve Vimperku.
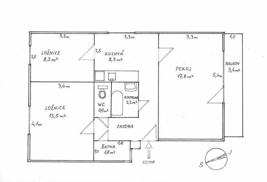
Plocha bytu: 70 m².
Popis bytu: nachází se ve druhém patře třípodlažního zděného cihlového domu s jen šesti byty. Bytový dům je situován v nejvýchodnější části Vimperku na konci ulice Špidrova. Výhodou nabízeného bytu je světlost a prosluněnost s širokým výhledem ze tří pokojů na všechny světové strany a okolní šumavskou přírodu. V bytě byla před rokem provedena rekonstrukce, při níž byly vyměněny okna za plastová, položeny nové podlahové krytiny z PVC. Nové jsou i sociální zařízení i část elektroinstalace. Po vstupu novými protipožárními dveřmi do bytu se ocitnete v prostorné předsíni ve tvaru L (5,8 m²), z níž vlevo je vstup do šatní skříně, komory (1,8 m²) s bojlerem a dále do jedné ložnice (13,5 m²). Na chodbě je ještě samostatné WC (0,9 m²) a koupelna s vanou (2,2 m²). Vstupní chodba vede dále do východní kuchyně (8,3 m²). Vlevo je jedna menší ložnice (8,3 m²) a vpravo jižní pokoj (17,6 m²) s prostorným balkonem (3,6 m²). K bytu je v suterénu rozměrný sklep (7,5 m²) a k dispozici jsou i další společné prostory – sušárny. Na katastru nemovitostí je byt již zapsán jako samostatná jednotka. Topení bylo nedávno předěláno na elektrické přímotopy, vodovod a kanalizace městské, elektřina 230 V.
Máte zájem o tuto nemovitost?
Hájkova 192, Sušice
Pomůžeme Vám!
Pomůžeme Vám!
Kontakt

Radek Vrhel
Přihlášení k odběru
Nenechte si ujít nejnovější nabídky prodeje bytů 3+1 v Vimperku.
Podobné nabídky

Prodej bytu 3+1, Vimperk, Sklářská, 65 m2
3 000 000 Kč

Prodej bytu 3+1, Volary, Sídl. Míru, 66 m2
2 400 000 Kč

Prodej bytu 3+1, Netolice, Hornická, 73 m2
3 650 000 Kč

Prodej bytu 3+1, Čkyně, 68 m2
3 990 000 Kč