Prodej chaty, Břestek, 82 m2 (ID: 1953873)
Břestek
(Provizi RK hradí prodávající.)
Popis
Ve výhradním zastoupení majitele Vám nabízím k prodeji patrovou, zděnou chatu po rekonstrukci, ideální pro celoroční bydlení nebo rekreaci, v malebné obci Břestek nedaleko Buchlovic.
✅ Hlavní přednosti chaty:
- zděná chata pálená cihla Porotherm 40 cm
- zateplení 5 cm fasádní polystyrén (2 strany - SZ a SV)
- 3 podlaží + podkroví určené ke spaní
- 2 koupelny, 2x WC, z toho jedno samostatné
- v roce 2012 vytvoření druhé koupelny se sprchovým koutem v 2.NP
- v roce 2013 nová dřevěná podlaha z masívu v 2. NP
- v roce 2013 nová kuchyně s vestavěnými elektrospotřebiči (myčka, lednice, mrazák, trouba, varná deska, mikrovlnka)
- krb jako hlavní zdroj tepla + el. přímotopy v místnostech, i ve sklepě
- vlastní vrtaná studna (33 m) + nádrž na užitkovou vodu pro chatu (7 m)
- zahrada s pergolou, jezírkem a skladem na dřevo a na nářadí
- elektroinstalace v mědi
- rozvody vody v plastu
- v roce 2017 pořízený elektrický bojler Dražice 50 l na ohřev teplé vody
- v roce 2023 nové dřevěné prvky zábradlí terasy a obou balkónů
- Kompletně vybavená chata – nábytek a zařízení v ceně nemovitosti
- internet je možný Skylink nebo Starnet.
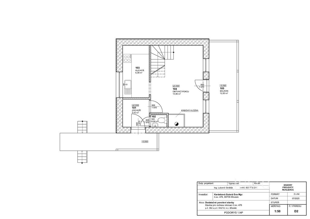
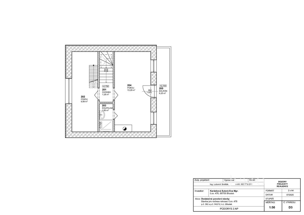
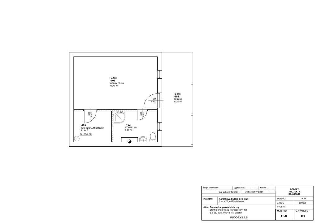
✅ Dispozice:
Suterén: dílna, prádelna, sklad, koupelna se sprchovým koutem a s WC, terasa 12 m²
Přízemí: obývací pokoj s balkonem (12,5 m²), kuchyně, samostatné WC
Patro: 2 ložnice, koupelna se sprchovým koutem, balkon 6,25 m²
Podkroví: prostor pro spaní/skladování (14,7 m²)
Celková užitná plocha: 82,4 m² + podkroví
Zastavěná plocha: 40,32 m².
✅Provádí se:
- na stavebním úřadu legalizujeme zvětšení zastavěné plochy chaty z 25 m² na 40,32 m²
- zadali jsme odborné firmě atestaci pitné vody z vrtané studny, pro pitnou se zatím chodí do studánky pod Břesteckou skálou
- technická zprávu Prověření nemovitosti stavením technikem
- průkaz energetické náročnosti budovy PENB.
✅ Lokalita:
Břestek je ideální pro milovníky přírody, turistiky a cykloturistiky.
V okolí najdete:
- Hrad Buchlov, Velehrad, Archeoskanzen Modrá
- Rozhledna Brdo, Břestecké skály
- Restaurace 600 m, potraviny 2 km, Buchlovice 5 km.
Zaujala vás tato nabídka? Vyplňte formulář níže a do 15 minut obdržíte e-mail s pokyny k prohlídce a veškerými dokumenty k chatě. Pokud e-mail nenajdete, zkontrolujte složku spam.
Pomůžeme vám i s financováním.
Majitel si vyhrazuje práco prodat svou nemovitost nejvýhodnější nabídce.
Neváhejte a domluvte si prohlídku ještě dnes!
Máte zájem o tuto nemovitost?

Korunní 2569/108, Vinohrady, Praha
Pomůžeme Vám!
Pomůžeme Vám!
Kontakt

Ing. Petr Fojtík
Přihlášení k odběru
Nenechte si ujít nejnovější nabídky prodeje chat v Břestku.
Tipy Realitymatu

Prodej rodinného domu, Bojkovice, Komenského, 73 m2
3 390 000 Kč
Podobné nabídky

Prodej chaty, Břestek, 82 m2
5 590 000 Kč

Prodej chaty, Břestek, 54 m2
1 490 000 Kč

Prodej chaty, Břestek, 71 m2
3 190 000 Kč

Prodej chaty, Břestek, 66 m2
1 100 000 Kč