Pronájem bytu 3+kk, Praha - Košíře, Naskové, 101 m2 (ID: 1953668)
Naskové, Praha, Košíře
(+ 4.000Kč služby + el. a plyn převod na nájemce)
Popis
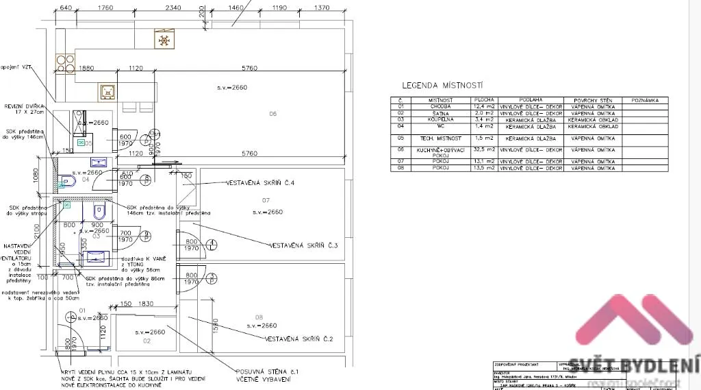
3+kk, 81m2 +20m2 velká terasa s krásným výhledem do parku Vidoule, garáž, P-5 Košíře ul: Naskové. Byt po právě dokončené kompletní rekonstrukci se nachází v 3.NP novostavby bytového domu přímo u parku Vidoule. Byt je zařízen novou Kuchyňskou linkou, která je je vybavena včetně vestavěných spotřebičů (sporák s horkovzdušnou troubou, lednička s mrazákem, myčka, mikrovlnná trouba). Dále jsou k dispozici prostorné vestavěné skříňě v předsíni a ložnici. K bytu náleží garážové stání umístěné v suterénu domu + prostorný sklep. Dále je v bytě k dispozici komora s policemi. Vytápění: vlastní nový plynový kotel. Terasa má výhled přímo do parku Vidoule kam mají přístup pouze obyvatelé okolních domů! což zaručuje naprostý klid a soukromý.
Byt je volný ihned!
Cena: 36.900Kč + 4.000Kč služby + elekrřina a plyn se převádí na nájemce (spotřeba celkem cca. 4.000Kč)
Podmínky:
Bez domácích zvířat,
Máte zájem o tuto nemovitost?
Žitná 608/27, Praha, Nové Město
Pomůžeme Vám!
Pomůžeme Vám!
Kontakt

Vojtěch Musil - poptávka
Přihlášení k odběru
Nenechte si ujít nejnovější nabídky pronájmu bytů 3+kk v Praze 5.
Tipy Realitymatu