Prodej rodinného domu, Holýšov, Pod Lesem, 122 m2
Pod Lesem, Holýšov
(včetně DPH, včetně poplatků, včetně provize, včetně právního servisu)
Popis
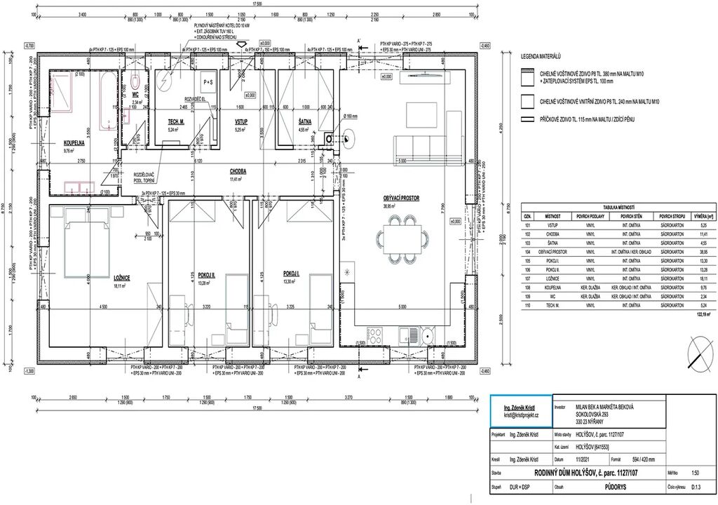
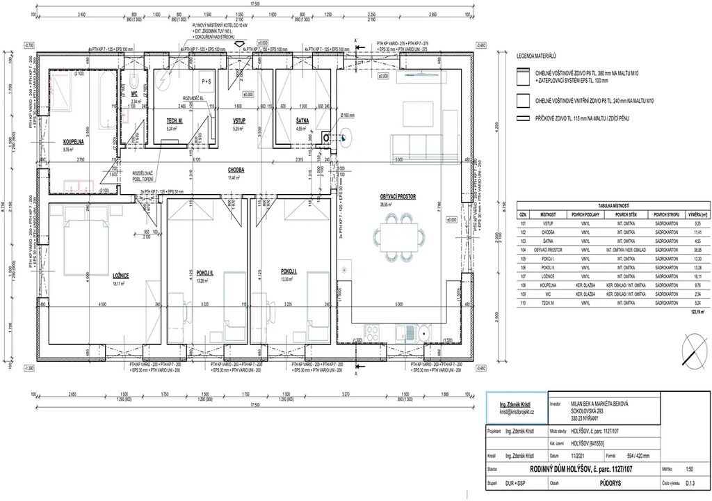
Nabízíme k prodeji novostavbu rodinného domu o celkové užitné ploše 122,2 m2 a zastavěné ploše 155 m2
- čistá užitná plocha obytných místností je 122,2 m2
- obývací pokoj s kuchyňským a jídelním koutem s vchodem na terasy domu
- 3 samostatné pokoje
- šatna
- koupelna, samostatná toaleta
- velká technická místnost s druhou toaletou
- vytápění a ohřev vody plynový kotel
- boiler obsah 120 l
- velmi nízké provozní náklady celého domu PENB C
- topení plyn - podlahového topení celého domu
- topení je možné doplnit i kombinací elektrokotel, či tepelné čerpadlo
- voda - městský vodovod
- odpady - obecní kanalizace
- možnost umístění krbu či krbových kamen
- kvalitní plastová okna s izolačními trojskly
- venkovní předokenní žaluzie "Z" na elektrické ovládání
Při výstavbě a celkové realizaci domu byl kladen velký důraz na použití kvalitních materiálů.
- výstavba 2024 , kolaudace 2025
- prodávající poskytne zájemci kompletní fotodokumentaci z průběhu výstavby, elektroinstalací,
instalace topení, vody, zateplovaní atd
- nový majitel dokončí nemovitost přesně dle svých představ a designu materiálů jako jsou krytiny podlah,
obklady a sanita koupelny a wc a realizace kuchyně, zahrady a oplocení
- poloha domu a umístění domu na pozemku poskytuje absolutní soukromí
- krásný pozemek v blízkosti lesa
- perfektní dostupnost dálnice D5, centra města Plzně a dalších měst
- velmi klidná část obce v dostupnosti přírody, cyklostezky a další možnosti aktivního odpočinku
- v blízkosti zároveň veškerá občanská vybavenost, školky, školy, lékárna, obchody, restaurace, kavárny a další
- minimální provoz v této lokalitě, vjezd pouze rezidenti
- použité plánky půdorysů jsou pouze s orientačními rozměry, zájemce obdrží přesné stavební výkresy a půdorysy
- prodávající si vyhrazuje právo vybrat a určit si kupujícího
- pro financování a dokončení realizace domu Vám doporučím odborníky v oboru
Máte zájem o tuto nemovitost?
Otýlie Beníškové 1695/16, Plzeň
Pomůžeme Vám!
Pomůžeme Vám!
Kontakt

Hedvika Varcholková
Přihlášení k odběru
Nenechte si ujít nejnovější nabídky prodeje rodinných domů v Holýšově.
Podobné nabídky

Prodej rodinného domu, Holýšov, Madame Michelin, 191 m2
10 499 000 Kč

Prodej rodinného domu, Holýšov, Madame Michelin, 191 m2
10 899 000 Kč

Prodej rodinného domu, Oselce - Kotouň, 112 m2
2 793 000 Kč

Prodej rodinného domu, Dobřany - Šlovice, 127 m2
9 750 000 Kč