Prodej vícegeneračního domu, Uhlířské Janovice, Jungmannova, 303 m2
Jungmannova, Uhlířské Janovice
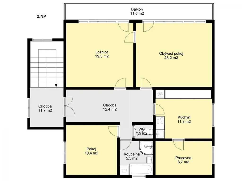
Popis
Dobrý den,
nabízíme k prodeji rodinný dům o dispozici 2 x 4+1 o užitné ploše 303 m2 na pozemku o rozloze 917 m2 v Uhlířských Janovicích v ulici Jungmannova.
Dům je aktuálně obývaný a nabízí dvě samostatné bytové jednotky, každou o dispozici 4+1, jednu v přízemí a druhou v patře. Dále je zde prostorný sklep o velikosti přibližně 100 m2, jehož součástí je i garáž.
Stavba má typické prvky šumperáku, velký balkon, plochou střechu a je celoplošně podsklepená. Na zahradě se nachází samostatně stojící garáž s dílnou a podkrovím se zastavěnou plochou 47 m2.
Vytápění je zajištěno tepelným čerpadlem a voda je čerpána ze studny. Městský vodovod a kanalizace se nachází v blízkosti hranice pozemku.
Dům je vhodný k rekonstrukci, která umožní novému majiteli přizpůsobit interiér i technické řešení svým představám. Díky dispozici dvou samostatných bytů a velkorysé užitné ploše umožnuje dům i vícegenerační bydlení, kombinaci bydlení s podnikáním, nebo investiční příležitost.
Dům se nachází nedaleko centra Uhlířských Janovic, kde jsou obchody, škola, školka i zdravotní středisko. Kutná Hora je vzdálena autem cca 20 min, Kolín a Vlašim půl hodiny, Praha zhruba 50 min.
Součástí nabídky je i možnost dokoupení tří navazujících pozemků, každý o výměře téměř 1 000 m2 ideální například pro zvětšení zahrady, investici nebo pro budoucí výstavbu.
Nemovitost lze financovat hypotečním úvěrem, se kterým vám rádi pomůžeme.
Uvedené m2 jsou pouze orientační.
Pokud Vás nabídka zaujala, neváhejte mě kontaktovat.
Máte zájem o tuto nemovitost?
Na Louži 871, Kolín
Pomůžeme Vám!
Pomůžeme Vám!
Kontakt

Bc. Ondřej Titze
Přihlášení k odběru
Nenechte si ujít nejnovější nabídky prodeje vícegeneračních domů v Uhlířských Janovicích.
Tipy Realitymatu

Prodej rodinného domu, Miskovice - Hořany, 120 m2
6 990 000 Kč
Podobné nabídky

Prodej vícegeneračního domu, Vrdy, Školská, 220 m2
9 000 000 Kč

Prodej vícegeneračního domu, Žleby, Zahradní, 162 m2
6 500 000 Kč