Prodej vícegeneračního domu, Žleby, Zahradní, 162 m2
Zahradní, Žleby
(včetně právních služeb a provize)
Popis
      Exkluzivně Vám nabízím dům, který si můžete upravit přesně podle svých představ. Dům v klidné části obce Žleby, který se vyznačuje svým prostorem a možností dvougeneračního bydlení. V obci nedaleko od Čáslavi na Vás čeká dům, který má opravdu co nabídnout.
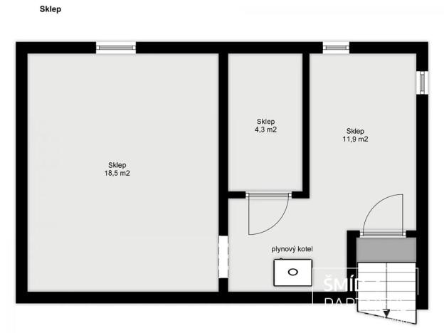
    Dvě bytové jednotky v přízemí a v patře, kde každá je s dispozicí 2+1 a umožňuje tak pohodlné bydlení dvou generací. V obou podlažích najdete obývací pokoj, ložnici, kuchyni s jídelním koutem, koupelnu v přízemí, samostatné WC, spíž a prostornou chodbu. Dispozice obou pater jsou velmi podobné a nabízí dostatek prostoru i soukromí. V patře pak bude možné bez problémů dodělat i koupelnu.Ohledně úložného prostoru lze využít půdní prostor, který se nachází nad celým domem. Dům je i částečně podsklepen a máme zde umístěn nový plynový kotel, kterým je dům vytápěn.     
Samostatnou součástí je pak garáž a hospodářské přístavky, které využijete jako dílnu, sklad nebo pro podnikání. V rozlehlé zahradě najdete sklep na ovoce, udírnu a příjemné posezení pod dřevěným altánem.
   Dům ze 70-tých let byl průběžně udržován a poslední akcí bylo nové ústřední vytápění. Každopádně je v původním stavu,ale nabízí však poctivý základ s klasickým členěním místností. Rozlehlá zahrada se vzrostlými stromy pak vytváří příjemnou atmosféru pro posezení v altánu a případné i osvěžení v bazénu v horkých letních dnech.
Lokalita Žleby u Čáslavi je ideální pro ty, kdo chtějí být v blízkosti města, ale zároveň si užívat klid venkova. V obci je základní občanská vybavenost, mateřská škola, základní škola a do Čáslavi se dostanete autem během několika minut.
Pro další informace či sjednání prohlídky mě neváhejte kontaktovat.
Máte zájem o tuto nemovitost?
Na Louži 871, Kolín
Pomůžeme Vám!
Pomůžeme Vám!
Kontakt
 
                        Ing. Josef Špác
Přihlášení k odběru
Nenechte si ujít nejnovější nabídky prodeje vícegeneračních domů v Žlebech.
Podobné nabídky
 
        Prodej vícegeneračního domu, Kácov, 320 m2
11 600 000 Kč
 
        Prodej rodinného domu, Žleby, 102 m2
3 690 000 Kč
 
                                                                                     
                                                                                     
                                                                                     
                                                                                     
                                                                                     
                                                                                     
                                                                                     
                                                                                     
                                                                                     
                                                                                     
                                                                                     
                                                                                     
                                                                                     
                                                                                     
                                                                                     
                                                                                     
                                                                                     
                                                                                     
                                                                                     
                                                                                     
                                                                                     
                                                                                     
                                                                                     
                                                                                     
                                                                                     
                                                                                     
                                                                                     
                                                                                     
                                                                                     
                                                                                     
                                                                                     
                                                                                     
                                                                                     
                                                                                     
                                                                                     
                                                                                     
        