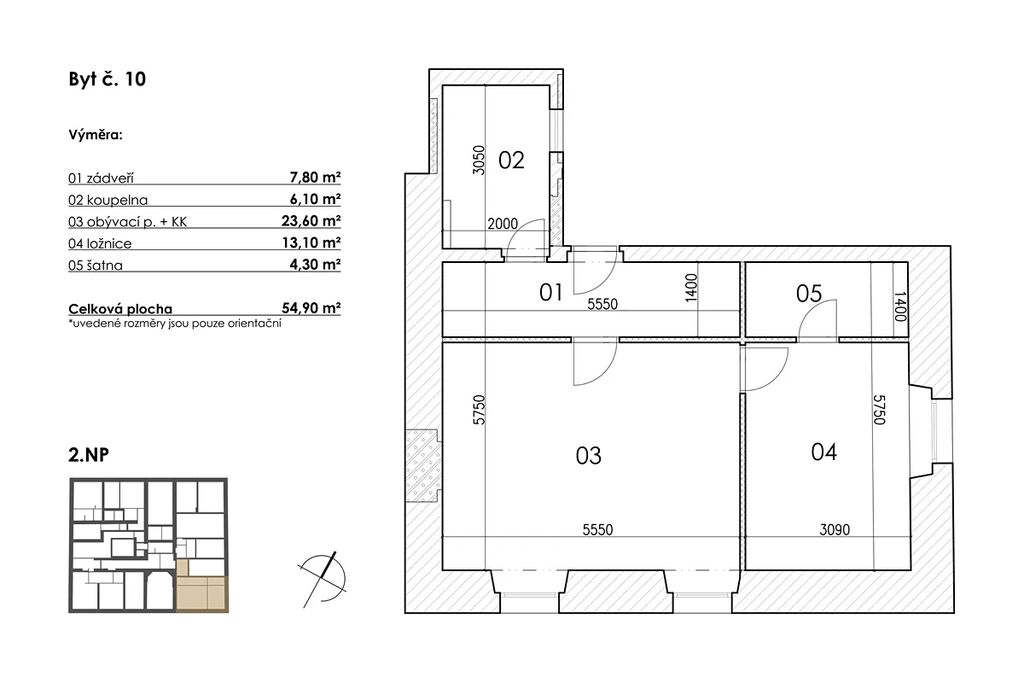
Prodej bytu 2+kk, Postupice, Blanická, 55 m2
Blanická, Postupice
Popis
V unikátním rezidenčním projektu v Postupicích u Benešova nabízíme moderní byt 2+kk o velikosti 54,9 m² ve 2. nadzemním podlaží. Projekt spojuje kouzlo historie s nejvyšším standardem současného bydlení. Každý byt je pečlivě navržen tak, aby poskytoval maximální pohodlí, dostatek světla a funkční uspořádání pro moderní život. Vhodné pro rodiny, jednotlivce i investory.
✔ Parkovací stání a možnost garáží přímo v areálu
✔ Dětské hřiště v bezpečném vnitrobloku
✔ Klidná lokalita s rychlou dostupností do Benešova i Prahy
✔ Kompletní občanská vybavenost v docházkové vzdálenosti (škola, školka, obchody, restaurace)
Technické informace o stavbě:
Rekonstrukce probíhá s respektem k historické hodnotě objektu a zároveň s důrazem na moderní standardy:
Konstrukce: Smíšené a cihelné zdivo, zdi o tloušťce 300–1000 mm, založené na kamenných pasech.
Stropy: Dřevěné trámové, často zdvojené pro lepší akustiku a nosnost.
Příčky: Porobeton (Ytong KLASIK) pro výbornou tepelnou a zvukovou izolaci.
Vytápění: Teplovodní systém – podlahové topení. Vlastní elektrokotel 6 kW, umístěný v koupelně, chodbě nebo šatně.
Ohřev vody: Elektrické akumulační bojlery (100–120 l) v každé jednotce.
Společné prostory: Temperované elektrickými přímotopy na 15 °C.
Napojení na inženýrské sítě: Nové přípojky na veřejný vodovod a kanalizaci v ulici Průběžná, napojení na silnoproudou elektřinu (ČEZ).
Kanalizace dešťová: Řešena zasakováním a napojením na stávající systém.
Začněte novou kapitolu v unikátním prostředí historického domu s duší a pohodlím moderního domova. Kontaktujte nás pro více informací nebo sjednání prohlídky!
Máte zájem o tuto nemovitost?
CENTURY 21 Birdie Reality - pobočka GWAK
Pujmanové 1753/10a, Praha
Pomůžeme Vám!
Pomůžeme Vám!
Kontakt

Martina Veselská
Přihlášení k odběru
Nenechte si ujít nejnovější nabídky prodeje bytů 2+kk v Postupicích.
Tipy Realitymatu

Prodej bytu 4+kk, Benešov, Tyršova, 136 m2
9 990 000 Kč
Podobné nabídky

Prodej bytu 2+kk, Postupice, Blanická, 67 m2
5 087 217 Kč

Prodej bytu 2+kk, Postupice, Blanická, 49 m2
3 989 000 Kč

Prodej bytu 2+kk, Postupice, Blanická, 78 m2
5 622 737 Kč

Prodej bytu 2+kk, Benešov, Rubešova, 45 m2
4 990 000 Kč