Pronájem bytu 3+kk, Praha - Nové Město, Vodičkova, 125 m2
Vodičkova, Praha, Nové Město
Popis
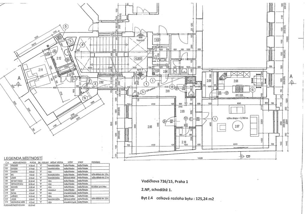
Nabízíme k pronájmu prostorný, luxusní byt 3+kk o výměře 125 m2, po kompletní rekonstrukci ve druhém nadzemním podlaží cihlového domu s výtahem ve Vodičkově ulici v Praze 1. Byt tvoří obývací pokoj s kuchyňským koutem, který má okno, dva neprůchozí pokoje, dvě koupelny z nichž jedna je s vanou, druhá se sprchovým koutem a samostatné WC s umyvadlem. Je zařízený novou kuchyňskou se spotřebiči – sklokeramická deska, elektrická trouba, lednice s mrazákem, pračka a šatní skříně v šatně. Velká špaletová okna z obývacího pokoje a kuchyně jsou orientovaná do Vodičkovy ulice, okna z obou pokojů jsou do klidného vnitrobloku. Na podlahách jsou v pokojích a v předsíni parkety, v koupelně a na WC je dlažba. Topení a ohřev vody je zajištěn vlastním plynovým kotlem. Výborná lokalita v centru Prahy, Václavské náměstí je cca 5 minut chůze od domu. Neplatíte provizi RK. Volný od 1.10. 2025.
Máte zájem o tuto nemovitost?
Vodičkova 682/20, Praha
Pomůžeme Vám!
Pomůžeme Vám!
Kontakt

František Cakl
Přihlášení k odběru
Nenechte si ujít nejnovější nabídky pronájmu bytů 3+kk v Praze 1.
Tipy Realitymatu