Prodej komerční nemovitosti, Mladá Boleslav, Nádražní, 400 m2 (ID: 1949148)
Nádražní, Mladá Boleslav, Čejetičky
Popis
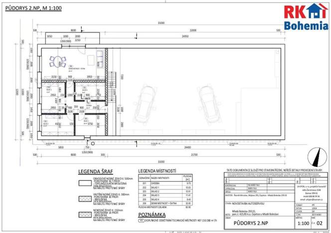
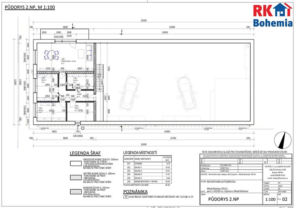
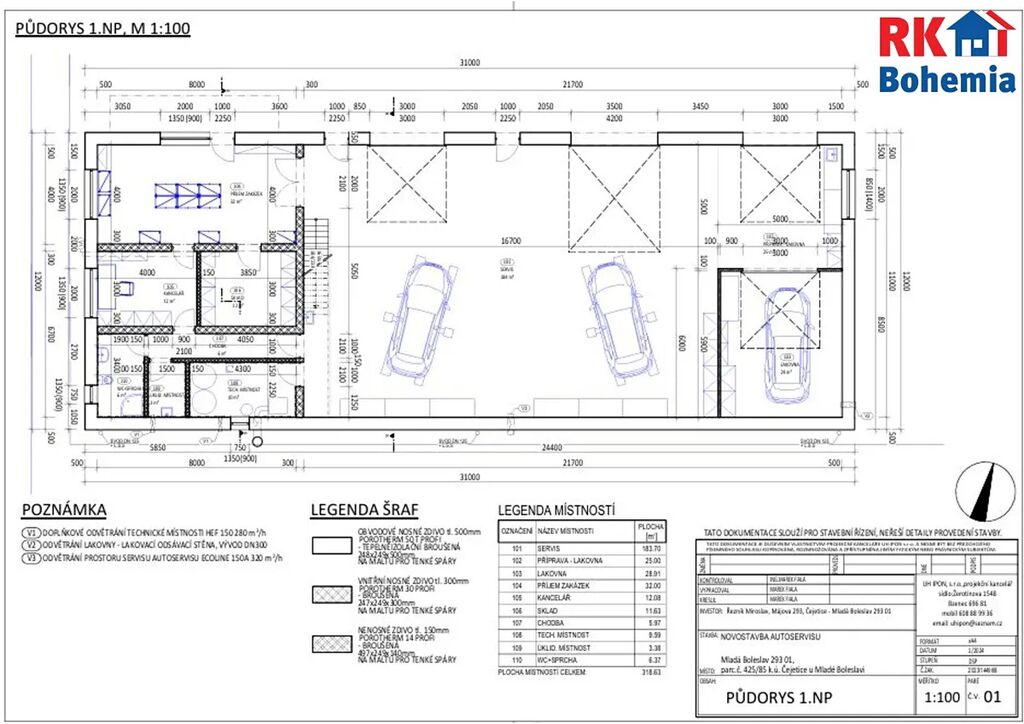
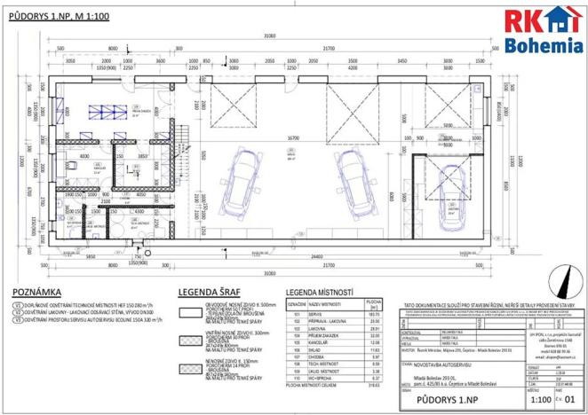
Prodej komerčního objektu projekt servisu s pozemkem 660 m, Mladá Boleslav Čejetičky, Nádražní ulice Nabízíme ke koupi komerční projekt servisu se zázemím ve dvou nadzemních podlažích, situovaný na komerčním pozemku o výměře 660 m.
Součástí prodeje je kompletní projektová dokumentace a platné stavební povolení. Objekt je navržen jako moderní servisní centrum se zázemím, přesné dispoziční řešení je k dispozici dle přiložených podkladů.
Tento projekt představuje ideální investiční příležitost pro podnikání v oblasti služeb, autoservisu či jiné komerční činnosti.
Stavební povolení vydáno.
Inženýrské sítě, vodovod, elektřina, kanalizace, přístupová cesta vybudovány.
Výborná dostupnost.
Možnost zajištění financování.
Financování vám rádi pomůžeme zajistit.
Pro více informací a sjednání prohlídky mě neváhejte kontaktovat.
Na osobní setkání se těší vaše makléřka.
Máte zájem o tuto nemovitost?
náměstí 14. října 1307/2, Praha, Smíchov
Pomůžeme Vám!
Pomůžeme Vám!
Kontakt

Monika Jenišová
Přihlášení k odběru
Nenechte si ujít nejnovější nabídky prodeje komerčních nemovitostí v Mladé Boleslavi.