Prodej bytu 2+kk, Kašperské Hory, Šumavská, 68 m2 (ID: 1949038)
Šumavská, Kašperské Hory
(Cena včetně parkovacího stání, bytového zařízení, provize RK, právního servisu a advokátní úschovy)
Popis
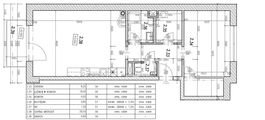
Prodej krásného, zařízeného a prostorného bytu 2+kk/B, 68 m2, ve 2. NP novostavby rezidenčního projektu z roku 2023, v Kašperských horách, ulice Šumavská. Součástí prodeje je vlastní parkovací stání. Bytový dům se nachází v uzavřeném privátním areálu s vlastní zahradou, altánem a parkováním za příjezdovou bránou na dálkové ovládání.
V bytě prostorné zařízené pokoje, pěkná vybavená kuchyně včetně spotřebičů (lednice s mrazákem, myčka, trouba, mikrovnlnná trouba. varná deska, digestoř), krásná koupelna se sprchovým koutem, topným žebříkem, 2x umyvadlem včetně skříněk, samostatná toaleta s umyvadlem a bidetovou sprchou. V obývacím pokoji komín s přípravou pro krbová kamna. V bytě technická místnost s kombinovanou pračkou se sušičkou, el. bojlerem pro ohřev teplé vody a skladovacími regály. Z ložnice přístup do komory (šatny). V předsíni vestavěný botník s věšákem. Orientace oken: obývací pokoj s balkonem na jih do privátní zahrady, ložnice na server do klidné ulice. V pokojích plovoucí podlahy, plastová okna. Velice nízké měsíční náklady 2.000,-Kč včetně fondu oprav + elektřina. Vytápění ústřední dálkové. V domě prostorná kolárna 30 m2!
Skvělé místo, tři minuty pěšky od náměstí, restaurace, kavárny, místní pivovar, hrad Kašperk. Krásné okolí NP Šumava a CHKO Šumava. V okolí cyklostezky, turistické stezky, sjezdovky a bežkařské trasy. Jedná se o bytovou jednotku (ne apartmán), v místě je tedy možné zřídit trvalé bydliště. Možnost hypotéky.
Máte zájem o tuto nemovitost?
Slovenská 967/1, Praha, Vinohrady
Pomůžeme Vám!
Pomůžeme Vám!
Kontakt

Rudolf Bálek
Přihlášení k odběru
Nenechte si ujít nejnovější nabídky prodeje bytů 2+kk v Kašperských Horách.