Pronájem bytu 3+kk, Praha - Vinohrady, Mánesova, 124 m2
Mánesova, Praha, Vinohrady
(Provize 37.000,- Kč + DPH)
Popis
Reprezentativní byt 3+kk, 124 m2, Mánesova ul. pod Vinohradským pavilonem, P-2. Byt je situován ve 2.nadzemním podlaží bytového domu ve velmi atraktivní centrální části Vinohrad.
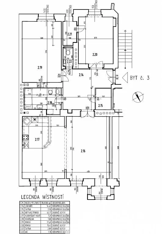
Dispozice bytu: zádveří/hala 14,5m2, šatna 3m2, obývací pokoj se zimní zahradou 45m2 + kuchyňský kout 7m2, koupelna 8m2, pokoj 21,5m2 a další pokoj 15,5m2 + druhá šatna 3 m2, WC 1,5m2.
Pokoje jsou neprůchozí, mají samostatné vstupy z haly.
Byt je nabízen zařízený kuchyňskou linkou vybavenou sporákem, mikrovlnnou troubou, myčkou, lednicí a mrazničkou. Nábytek viz fota. Vytápění je zajištěno plynovým etážovým kotlem, v bytě je zřízen elektronický zabezpečovací systém.
Měsíční nájemné 37.000 Kč , záloha služby 6.500 Kč (včetně plynu a elektřiny).
Dům je vybaven osobním výtahem, výtahem pro automobily, elektronickým zabezpečovacím systémem, napojeným na PCO bezpečnostní agentury , kamerovým systémem s dlouhodobou archivací záznamu, elektronickým požárním systémem v garážích , rozvodem vysokorychlostního internetu, televize, satelitu a telefonu.
Provize RK: 37.000,- Kč + DPH
Prosíme představení na e-mail. Prohlídky počínaje 30.9.2025
Máte zájem o tuto nemovitost?
Slezská 981/57, Praha, Vinohrady
Pomůžeme Vám!
Pomůžeme Vám!
Kontakt

Miroslava Zemanová
Přihlášení k odběru
Nenechte si ujít nejnovější nabídky pronájmu bytů 3+kk v Praze 2.