Prodej rodinného domu, Horní Kalná, 126 m2

Horní Kalná


5 900 000 Kč
HYPOTÉKA od 26 369 Kč /měs.
Regionální dodavatelé v Horní Kalné

Popis

Nabízíme k prodeji krásnou roubenou chalupu po kompletní rekonstrukci, nacházející se v obci Horní Kalná (okres Trutnov). Nemovitost stojí na pozemku o velikosti 505 m² a je ve výborně udržovaném stavu.

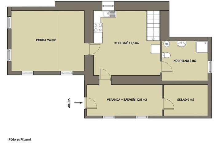
Dispozice domu je 3+1:

• v přízemí se nachází kuchyně, obývací pokoj, koupelna, veranda a dřevník s kůlnou,

• v podkroví jsou dva útulné pokoje.


Technické zázemí a vybavení:

• elektřina (včetně levného tarifu),

• teplá a studená voda ze studny, na pozemku je zároveň přivedena vodovodní přípojka,

• vytápění kamny na dřevo a kachlovými kamny – v obývacím pokoji je praktický záklop ve stropě pro vytápění horních pokojů,

• odpad je sveden do jímky.

Chalupa se nachází 150 m od hlavní komunikace, což zajišťuje soukromí a klid.

Svah nad chalupou je zpevněný svahovými tvárnicemi.

Nemovitost je vedena jako rodinný dům a je vhodná i pro celoroční bydlení.

Výborná dostupnost – Vrchlabí 12 min, do Prahy se pohodlně dostanete přibližně za 1 hodinu a 30 minut.

Pro více informací a prohlídku mě prosím kontaktujte.

Cena
5 900 000 Kč Spočítat hypotéku
Aktualizováno
19. 9. 2025
Adresa
Horní Kalná
ID
2507
Vlastnictví
Osobní
Užitná plocha
126 m2
Třída energetické náročnosti
G - Mimořádně nehospodárná

Máte zájem o tuto nemovitost?

Tímto, v souladu s nařízením Evropského parlamentu a Rady (EU) 2016/679, v platném znění, prohlašuji, že mi je alespoň 16 let a uděluji tak svůj souhlas se zpracováním zadaných údajů (jméno, telefon, e-mail, ip adresa) společnosti B3 Technology, s.r.o., IČ: 07330600, se sídlem Novostavby 126/23, 435 11 Lom (správce dat), za účelem předání dotazu z tohoto formuláře Vámi vybranému inzerentovi a zpětného kontaktování mé osoby. Osobní údaje bude správce zpracovávat manuálně i automaticky přímo prostřednictvím svých zaměstnanců. Informace předané tímto formulářem budou uloženy v databázi správce maximálně po dobu 10 let. Odvolání souhlasu s uložením a zpracováním poskytnutých dat lze e-mailem na info@realitymat.cz. V případě podezření na neoprávněné použití Vámi poskytnutých údajů máte právo předat podnět k šetření Úřadu pro ochranu osobních údajů. Více informací
Chystáte se prodat nemovitost?
Pomůžeme Vám!

Kontakt

Ing. Stanislava Tremlová

Ing. Stanislava Tremlová

Přihlášení k odběru

Nenechte si ujít nejnovější nabídky prodeje rodinných domů v Horní Kalné.

Podobné nabídky