Pronájem bytu 3+kk, Plzeň, Na Rybníčku, 90 m2
Na Rybníčku, Plzeň, Doubravka
(+ provize RK, včetně právního servisu)
Popis
Jaké jsou Vaše sny o bydlení. Hledáte atraktivní a moderní byt s možností odpočinku na balkóně a docházkové vzdálenosti do lesa či ke sportovištím? Je Vaší prioritou klidné místo, přejete si zajištěné parkovací místo? V takovém případě je tato nabídka určená přímo pro Vás.
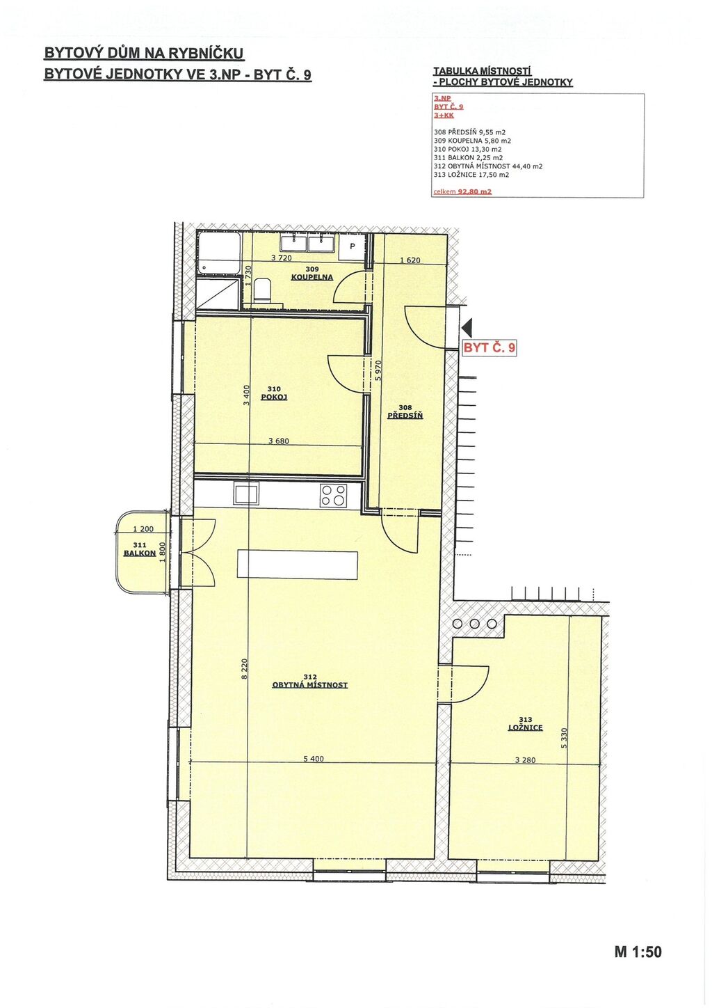
Předmětem pronájmu je moderní, nově vybudovaný byt s dispozicí 3+kk o výměře cca 90,5 m2 s balkonem cca 2,3 m2 domu kolaudovaného na byty v roce 2024. Byt se nachází v ulici Na Rybníčku, v klidné části Plzně na Doubravce.
Ke kvalitě bydlení v tomto nabízeném bytě přispívá zajímavá architektura, náročný design a funkční řešení. Kromě vnějšího výrazu dům nabízí zajímavé řešení dispozic bytů a společných prostorů.
Nabízený byt je v druhém patře s výhledem do zeleně.
V obývacím pokoji, hlavní obytné místnosti o velikosti cca 44 m2, je kuchyňská linka vybavená vestavěnými spotřebiči jako je varná indukční deska, elektrická trouba, myčka na nádobí a digestoř. V obývacím pokoji jsou dvě okna, díky kterým je pokoj dostatečně prosvětlený a vstup na balkón cca 2,3 m2 s výhledem do zeleně, kde je možné trávit volný čas, relaxovat a odpočívat.
Do dětského pokoje a obývacího pokoje se vstupuje samostatně, pokoje nejsou průchozí a zajišťují tak potřebnou míru soukromí. Do ložnice se prochází z obývacího pokoje. V koupelně se sprchovým koutem a umyvadlem a toaletou je osvětlené zrcadlo, na stěně je umístěn topný žebřík a prostor pro umístění pračky. V celém bytě jsou svítidla.
Samozřejmostí je možnost připojení na internet a rozvod TV. Velkoplošná francouzská okna lze zastínit elektrickými venkovními žaluziemi. V ceně nájmu je také venkovní parkovací stání umístěné na vlastním pozemku.
Standardem bytu je vytápění a ohřev vody centrální plynovou kotelnou, kvalitní zařizovací předměty včetně kuchyňské linky se spotřebiči, internet, rozvod TV apod. Okna jsou plastová, podlahy kryjí vinylové podlahy.
Nadstandardem je podlahové vytápění v celém bytě, klimatizační jednotky v obytných místnostech a elektrické předokenní žaluzie, zajišťující soukromí a regulaci světla v dané místnosti. Díky orientaci na jižní stranu je v tomto bytě dostatek světla. Tento byt Vám zpříjemní život a utvoří domov. Nezanedbatelnou výhodou je možnost parkování.
Umíte si představit skloubit historii a moderní bydlení? Dům, ve kterém byly vybudovány nové byty byl postaven pravděpodobně již ve 13. století jako panský dvůr a významná stavba tamního pána.
Současný vlastník proměnil dům na moderní bytový dům, na který bude navazovat park. Připravuje se revitalizace rybníku přiléhajícího k domu a záměrem je vybudovat zde oázu klidu a zeleně.
V těsné blízkosti jsou kulturní a restaurační zařízení, lékař, park, sportoviště, pošta, obchody, škola, MHD atd. Jedná se o lokalitu v Plzni, která nabízím nájemcům bytu krásné bydlení.
Pokud hledáte bydlení v moderním bytě s dobrou dostupností do města a zároveň na dosah ruky přírodě je tahle nabídka jako stvořená pro Vás.
Ilustrační fotky z jiného bytu tohoto domu. Byt je téměř totožný.
Máte zájem o tuto nemovitost?

Malá 43/6, Plzeň, Vnitřní Město
Pomůžeme Vám!
Pomůžeme Vám!
Kontakt

Petr Otte, MBA
Přihlášení k odběru
Nenechte si ujít nejnovější nabídky pronájmu bytů 3+kk v Plzni.