Prodej rodinného domu, Praha - Štěrboholy, Hrušovská, 122 m2

Hrušovská, Praha 10


16 990 000 Kč /za nemovitost
HYPOTÉKA od 75 935 Kč /měs.
Regionální dodavatelé v Praze 10

Stěhovací služby

Výkup a prodej starého nábytku

Popis

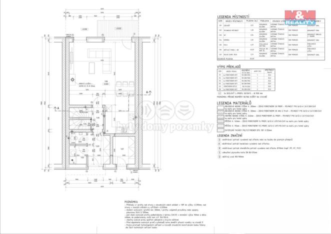
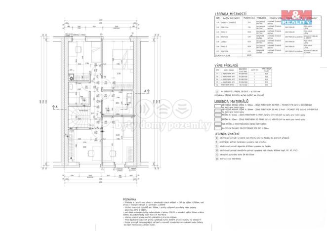
Nabízíme k prodeji moderní novostavbu řadového rodinného domu v klidné a žádané lokalitě Praha – Štěrboholy. Zděný, zateplený dům zkolaudovaný v roce 2024 je součástí menší rezidenční zástavby a splňuje nejnovější standardy komfortního a úsporného bydlení. Dispozice 5 místností a kuchyňský kout s užitnou plochou 122 m² poskytuje dostatek prostoru pro rodinný život. Energetická náročnost budovy B - velmi úsporná. Vytápění zajišťuje plynový kotel s podlahovým topením. Pozemek o rozloze 180 m² zahrnuje oplocenou zahrádku pro odpočinek i rodinné aktivity a předzahrádku s parkovacím stáním přímo na pozemku. V docházkové vzdálenosti je kompletní občanská vybavenost – školy, obchody, MHD i sportoviště. Výborná dostupnost do centra a na Pražský okruh. Ideální volba pro ty, kdo hledají kvalitní a moderní bydlení v klidném prostředí. Pro více informací nebo domluvení prohlídky nás neváhejte kontaktovat.

Cena
16 990 000 Kč /za nemovitost Spočítat hypotéku
Aktualizováno
23. 10. 2025
Adresa
Hrušovská, Praha 10
ID
916540
Stavba
Cihlová
Stav objektu
Velmi dobrý
Vybaveno
Částečně
Druh objektu
Řadový
Lokalita objektu
Klidná část obce
Vlastnictví
Osobní
Užitná plocha
122 m2
Plocha pozemku
180 m2

Máte zájem o tuto nemovitost?

Tímto, v souladu s nařízením Evropského parlamentu a Rady (EU) 2016/679, v platném znění, prohlašuji, že mi je alespoň 16 let a uděluji tak svůj souhlas se zpracováním zadaných údajů (jméno, telefon, e-mail, ip adresa) společnosti B3 Technology, s.r.o., IČ: 07330600, se sídlem Novostavby 126/23, 435 11 Lom (správce dat), za účelem předání dotazu z tohoto formuláře Vámi vybranému inzerentovi a zpětného kontaktování mé osoby. Osobní údaje bude správce zpracovávat manuálně i automaticky přímo prostřednictvím svých zaměstnanců. Informace předané tímto formulářem budou uloženy v databázi správce maximálně po dobu 10 let. Odvolání souhlasu s uložením a zpracováním poskytnutých dat lze e-mailem na info@realitymat.cz. V případě podezření na neoprávněné použití Vámi poskytnutých údajů máte právo předat podnět k šetření Úřadu pro ochranu osobních údajů. Více informací
Chystáte se prodat nemovitost?
Pomůžeme Vám!

Kontakt

Martina Brüxová

Martina Brüxová

Přihlášení k odběru

Nenechte si ujít nejnovější nabídky prodeje rodinných domů v Praze 10.

Podobné nabídky