Prodej pozemku pro bydlení, Brno, Vážného, 411 m2 (ID: 1942895)
Vážného, Brno, Řečkovice
Popis
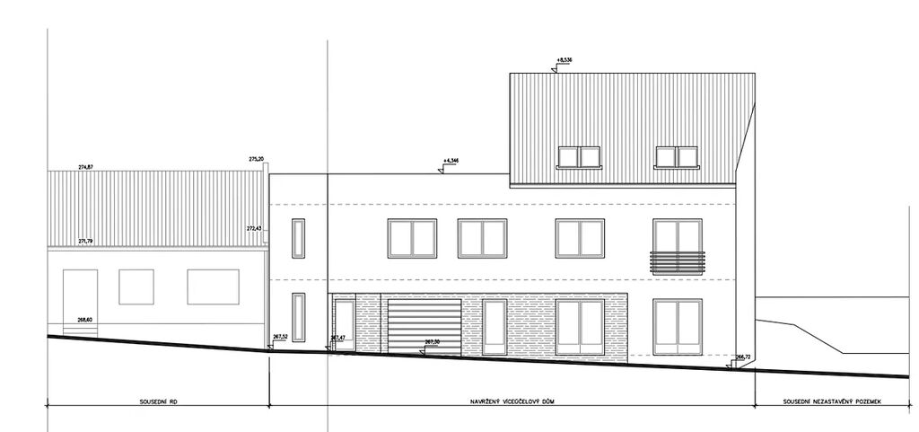
Ve výhradním zastoupení majitele nabízím jedinečnou příležitost koupi stavebního pozemku Brno Řečkovice s projektem, včetně stavebního povolení a vyjádření všech dotčených orgánů (přípojky, vjezd na pozemek a další náležitosti).
Jedná se o je pozemek na rohu ulice Vážného a Veselá. Je zde počítáno s výstavbou víceúčelového, nebo bytového domu . V přízemí domu je počítáno s parkovacími místy + prostorem na bydlení nebo komerci (cca 55m2), v 1 NP čtyři bytové jednotky o velikosti 1+kk (od 25m2 do 40m2), v 2 NP je možnost velkého bytu + terasa, nebo dva menší byty s terasou. Projekt a stavební povolení je k nahlédnutí po domluvě.
V případě zájmu kontaktuje makléře.
Máte zájem o tuto nemovitost?
Slavíčkova 827/1a, Brno
Pomůžeme Vám!
Pomůžeme Vám!
Kontakt

Stanislava Šudáková
Přihlášení k odběru
Nenechte si ujít nejnovější nabídky prodeje pozemků pro bydlení v Brně.