Prodej bytu 3+1, Praha, Medunova, 120 m2
Medunova, Praha
(včetně provize, včetně právního servisu)
Popis
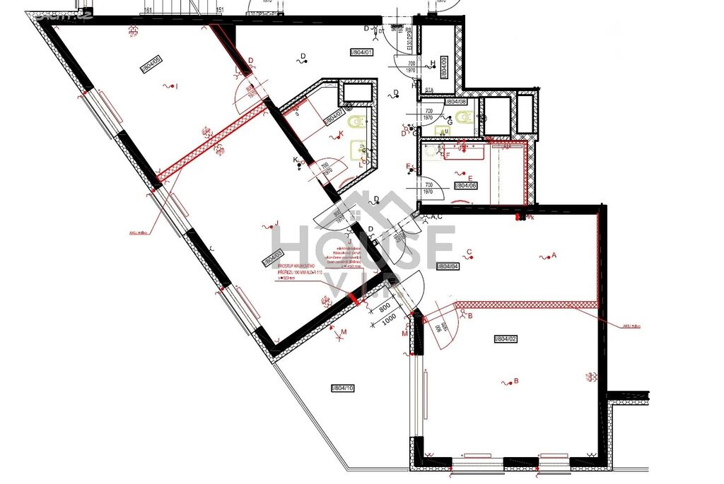
Hledáte prostorný byt, který kombinuje moderní design, soukromí a skvělou dostupnost? Tento rezidenční byt o dispozici 3+1 (lze využít i jako 4+kk), s podlahovou plochou 120 m² a terasou 15 m² se nachází v 8. patře projektu Britská čtvrť ve Stodůlkách a nabízí krásný výhled ze všech oken.
Byt byl navržen přímo na míru majitelem a při jeho realizaci se kladl důraz na velkorysý prostor i maximální soukromí. V dispozici najdete tři samostatné pokoje, kuchyni, dvě koupelny, dvě toalety, komoru s policovým systémem a prostorný obývací pokoj s přímým vstupem na terasu.
Samotné provedení bytu potěší i ty nejnáročnější. Vchodové dveře Next ve 4. bezpečnostní třídě jsou dýhované exotickou dřevinou, stejně jako všechny interiérové dveře se skrytými panty a magnetickými zámky. Plastová okna v dřevodekoru doplňují elektrické předokenní rolety na dálkové ovládání. Koupelny jsou řešeny zděnými sprchovými kouty Bartosini a radiátory Rosendal. Kuchyně Dieter Knoll se skleněným obkladem a designovými dřevěnými vypínači tvoří srdce bytu. Nechybí ani zdvojené kabelové rozvody, příprava na klimatizaci či terasa s vlastní zásuvkou a světlem.
Dům z roku 2018 se nachází jen 250 metrů od stanice metra B – Stodůlky. V pěší vzdálenosti najdete restaurace, kavárny, školky, školy i obchodní centrum Homepark Zličín (IKEA, Tesco aj.). Před domem je workout hřiště, v domě kočárkárna a malá restaurace. Samozřejmostí je kamerový systém a možnost zřízení nabíjení elektromobilu. Autem se navíc rychle dostanete jak na letiště, tak na Pražský okruh.
Součástí ceny je nadstandardní garážové stání v hodnotě 700.000 Kč. Po dohodě lze odkoupit i zařízení bytu.
Cena zahrnuje kompletní právní servis. Upozornění: byt nelze financovat hypotečním úvěrem.
Máte zájem o tuto nemovitost?
Pomůžeme Vám!
Kontakt

Ilona Chládková
Přihlášení k odběru
Nenechte si ujít nejnovější nabídky prodeje bytů 3+1 v Praze.
Podobné nabídky

Prodej bytu 3+1, Praha - Bubeneč, Národní obrany, 94 m2
15 990 000 Kč

Prodej bytu 3+1, Praha - Malá Strana, Mělnická, 91 m2
13 590 000 Kč

Prodej bytu 3+1, Praha - Michle, Bítovská, 72 m2
9 149 000 Kč