Pronájem obchodního prostoru, Horní Bříza, Sídlištní, 145 m2 (ID: 1939479)
Sídlištní, Horní Bříza
Popis
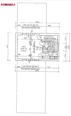
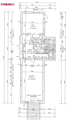
Nabízíme Vám k pronájmu všestranný komerční prostor v Horní Bříze - Sídlištní ulice, s užitnou plochou o výměře 145m² + pozemek 453m², který je v současnosti využíván jako zázemí e-shopu. Díky své dispozici a poloze však nabízí široké možnosti využití. Vhodný je například pro lehkou výrobu, showroom, výdejní místo, kadeřnictví, prodejnu, kancelářské zázemí nebo kombinaci více provozů dle potřeby nájemce.
Objekt je rozdělen do dvou podlaží přičemž přízemní podlaží nabízí snadný přístup a pohodlné zásobování, 1. nadzemní podlaží je vhodné například pro kancelářské prostory. Výhodou je také možnost vjezdu pro dodávky nebo i nákladní automobily nad 12 tun s hydraulickým čelem. Objekt je vybaven elektronickými garážovými vraty na dálkové ovládání, kamerovým systémem, LAN sítí, wifi sítí, vytápěním + klimatizací se třemi jednotkami tepelného čerpadla, záložním zdrojem tepla,  elektronickým zabezpečovacím systémem který při narušení automaticky volá na nastavené telefonní číslo, vnitřním a venkovním kamerovým systémem s úložištěm včetně baterie pro případ výpadku energie, vstupními dveřmi spolu s dveřmi do skladů které mohou být otevřeny pomocí čipu nebo klávesnice, součástí je i dálkový přístup  otevírání dveří například pro kurýra.
 V objektu nalezneme i sociální zázemí, jako je toaleta a sprchový kout. Celkový stav odpovídá běžnému provozu skladového a provozního zázemí, přičemž majitel je otevřen úpravám prostoru podle konkrétních potřeb nového nájemce.
Díky své klidné lokalitě a vzdálenosti pouhých 10km od hranice Plzně nebo 5km od Kaznějova je prostor ideální pro podnikatele hledající funkční a přizpůsobitelné řešení pro své podnikání.
Nájemní činí 29 900 Kč/měsíc
Záloha na vodu činí zhruba 100 Kč/měsíc
Elektřinu si nájemce převádí na sebe
Kauce je požadována dle domluvy.
Pokud Vás naše nabídka zaujala, neváhejte se ozvat a rádi se s Vámi setkáme na osobní prohlídce.
Máte zájem o tuto nemovitost?
Koterovská 408/21, Plzeň
Pomůžeme Vám!
Pomůžeme Vám!
Kontakt
 
                        Patrik Ševela
Přihlášení k odběru
Nenechte si ujít nejnovější nabídky pronájmu obchodních prostor v Horní Bříze.
 
                                                                                     
                                                                                     
                                                                                     
                                                                                     
                                                                                     
                                                                                     
                                                                                     
                                                                                     
                                                                                     
                                                                                     
                                                                                     
                                                                                     
                                                                                     
                                                                                     
                                                                                     
                                                                                     
                                                                                     
                                                                                     
                                                                                     
                                                                                     
                                                                                     
                                                                                     
                                                                                     
                                                                                     
                                                                                     
                                                                                     
                                                                                     
                                             
                                             
         
         
        