Pronájem obchodního prostoru, Horní Bříza, Sídlištní, 145 m2 (ID: 1939478)

Sídlištní, Horní Bříza


21 750 Kč /za měsíc
Získejte výhodnou HYPOTÉKU
Regionální dodavatelé v Horní Bříze

Stěhovací služby

Popis

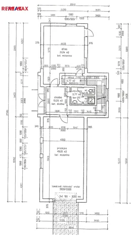
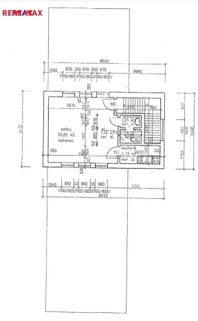
Nabízíme Vám k pronájmu všestranný komerční prostor v Horní Bříze - Sídlištní ulice, s užitnou plochou o výměře 145m² + pozemek 453m², který je v současnosti využíván jako zázemí e-shopu. Díky své dispozici a poloze však nabízí široké možnosti využití. Vhodný je například pro lehkou výrobu, showroom, výdejní místo, kadeřnictví, prodejnu, kancelářské zázemí nebo kombinaci více provozů dle potřeby nájemce.

Objekt je rozdělen do dvou podlaží přičemž přízemní podlaží nabízí snadný přístup a pohodlné zásobování, 1. nadzemní podlaží je vhodné například pro kancelářské prostory. Výhodou je také možnost vjezdu pro dodávky nebo i nákladní automobily nad 12 tun s hydraulickým čelem. Objekt je vybaven elektronickými garážovými vraty na dálkové ovládání, kamerovým systémem, LAN sítí, wifi sítí, vytápěním + klimatizací se třemi jednotkami tepelného čerpadla, záložním zdrojem tepla, elektronickým zabezpečovacím systémem který při narušení automaticky volá na nastavené telefonní číslo, vnitřním a venkovním kamerovým systémem s úložištěm včetně baterie pro případ výpadku energie, vstupními dveřmi spolu s dveřmi do skladů které mohou být otevřeny pomocí čipu nebo klávesnice, součástí je i dálkový přístup otevírání dveří například pro kurýra.

V objektu nalezneme i sociální zázemí, jako je toaleta a sprchový kout. Celkový stav odpovídá běžnému provozu skladového a provozního zázemí, přičemž majitel je otevřen úpravám prostoru podle konkrétních potřeb nového nájemce.

Díky své klidné lokalitě a vzdálenosti pouhých 10km od hranice Plzně nebo 5km od Kaznějova je prostor ideální pro podnikatele hledající funkční a přizpůsobitelné řešení pro své podnikání.

Nájemní činí 29 900 Kč/měsíc
Záloha na vodu činí zhruba 100 Kč/měsíc
Elektřinu si nájemce převádí na sebe
Kauce je požadována dle domluvy.

Pokud Vás naše nabídka zaujala, neváhejte se ozvat a rádi se s Vámi setkáme na osobní prohlídce. Pronajímající si vyhrazuje právo vybrat nájemce na základě jím zvolených kritérií.

Cena
21 750 Kč /za měsíc
Aktualizováno
13. 3. 2026
Adresa
Sídlištní, Horní Bříza
ID
0334-NP00148
Stavba
Cihlová
Stav objektu
Velmi dobrý
Vybaveno
Částečně
Lokalita objektu
Klidná část obce
Užitná plocha
145 m2
Zastavěná plocha
137 m2
Podlahová plocha
453 m2
Plocha zahrady
316 m2
Třída energetické náročnosti
F - Velmi nehospodárná
Elektřina
230V, 400V
Odpad
Veřejná kanalizace
Komunikace
Betonová, Asfaltová
Doprava
Vlak, Dálnice, Silnice, MHD, Autobus
Voda
Vodovod
Topné těleso
Přímotop
Zdroj topení
Přímotop
Parkování

Máte zájem o tuto nemovitost?

Tímto, v souladu s nařízením Evropského parlamentu a Rady (EU) 2016/679, v platném znění, prohlašuji, že mi je alespoň 16 let a uděluji tak svůj souhlas se zpracováním zadaných údajů (jméno, telefon, e-mail, ip adresa) společnosti B3 Technology, s.r.o., IČ: 07330600, se sídlem Novostavby 126/23, 435 11 Lom (správce dat), za účelem předání dotazu z tohoto formuláře Vámi vybranému inzerentovi a zpětného kontaktování mé osoby. Osobní údaje bude správce zpracovávat manuálně i automaticky přímo prostřednictvím svých zaměstnanců. Informace předané tímto formulářem budou uloženy v databázi správce maximálně po dobu 10 let. Odvolání souhlasu s uložením a zpracováním poskytnutých dat lze e-mailem na info@realitymat.cz. V případě podezření na neoprávněné použití Vámi poskytnutých údajů máte právo předat podnět k šetření Úřadu pro ochranu osobních údajů. Více informací
Chystáte se prodat nemovitost?
Pomůžeme Vám!

Kontakt

Patrik Ševela

Patrik Ševela

Přihlášení k odběru

Nenechte si ujít nejnovější nabídky pronájmu obchodních prostor v Horní Bříze.

Podobné nabídky