Prodej bytu 3+1, Děčín, Dvořákova, 73 m2
Dvořákova, Děčín II-Nové Město
Popis
Hledáte prostorný a slunný byt pro vaši rodinu? Toužíte po bydlení v klidné části města s výbornou občanskou vybaveností? Právě pro vás jsem připravil nabídku bytu 3+1 s lodžií v pěkné lokalitě Děčína II. v blízkosti lesoparku. 
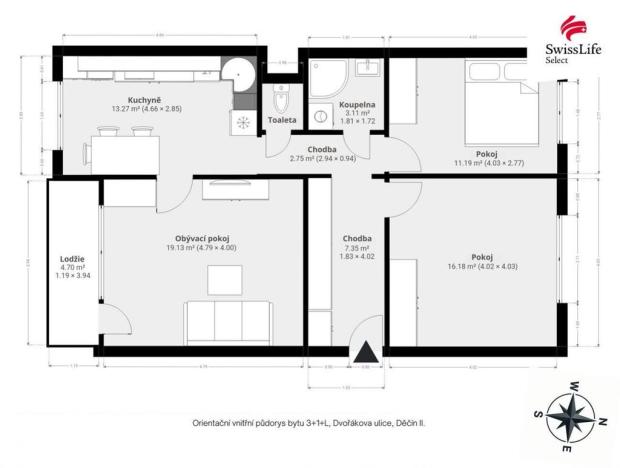
Tento prostorný byt o užitné ploše 73 m + lodžie 4 m se nachází v 1. patře panelového domu s výtahem na Dvořákově ulici v Děčíně. Jedná se o klidnější městskou část, která nabízí příjemné bydlení v sídlištním prostředí s dostupností všech potřebných služeb a navíc v docházkové vzdálenosti od lesoparku na svahu Stoličné hory.
Základní platby / zálohy 6.070 Kč / měsíc + měsíční záloha za elektřinu, spotřebu v bytě.
Výborná dispozice bytu nabízí 3 samostatné neprůchozí pokoje s možností úpravy na dispozici 4+1 podle vašich potřeb. Každý člen rodiny si tak najde své vlastní místo. Doplňuje je praktická koupelna se sprchovým koutem, samostatná toaleta a prostorná lodžie pro relaxaci nebo pěstování.
Před 15 lety byt prošel většími úpravami, které dodnes vypadají moc pěkně. Byla provedena celková rekonstrukce koupelny, toalety a kuchyně. Ve všech místnostech včetně chodby najdete pěkné plovoucí podlahy (vyjma koupelny a toalety). Nové elektrické rozvody byly instalovány v bytovém jádru a kuchyni. Kuchyně byla vybavena novou kuchyňskou linkou se spotřebiči. Všechny místnosti mají nové dveře s obložkovými zárubněmi. Koupelna je vytápěna přidaným teplovodním žebříkem napojeným na topný systém domu. Vše pochází ze stejné doby, kdy byly úpravy provedeny.
V chodbě oceníte vestavěnou skříň s úložnými prostory přizpůsobené potřebám rodiny s dětmi. K bytu náleží sklep pro uskladnění věcí a na patře máte k dispozici společnou sušárnu.
Máte zájem o tuto nemovitost?
 
                                Pobřežní 620/3, Praha 8
Pomůžeme Vám!
Pomůžeme Vám!
Kontakt
 
                        Radim Macháček
Přihlášení k odběru
Nenechte si ujít nejnovější nabídky prodeje bytů 3+1 v Děčíně.
Podobné nabídky
 
        Prodej bytu 3+1, Děčín, Na Pěšině, 62 m2
2 490 000 Kč
 
        Prodej bytu 3+1, Děčín, Jezdecká, 70 m2
3 800 000 Kč
 
                                                                                     
                                                                                     
                                                                                     
                                                                                     
                                                                                     
                                                                                     
                                                                                     
                                                                                     
                                                                                     
                                                                                     
                                                                                     
                                                                                     
                                                                                     
                                                                                     
                                                                                     
                                                                                     
                                                                                     
                                                                                     
                                                                                     
                                                                                     
                                                                                     
                                                                                     
                                                                                     
                                                                                     
                                                                                     
                                                                                     
                                                                                     
                                                                                     
                                                                                     
                                             
                                             
                                             
         
        