Prodej bytu 3+1, Příchovice, 107 m2
Příchovice
(včetně provize, kupních smluv vypracovaných advokátní kanceláří, advokátní úschovy)
Popis
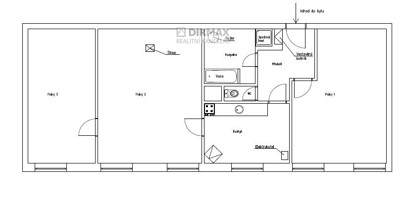
Hledáte pro svojí rodinu klidné bydlení na hezkém místě? Ve výhradním zastoupení nabízíme k prodeji moc hezký, bezbariérový a velmi prostorný byt 3+1 (největší v celém bytovém domě) o rozloze cca 107 m² se sklepní kojí 3m² v Příchovicích u Přeštic.
Celý byt prošel kompletní a nákladnou rekonstrukcí. Nové podlahy, nové rozvody elektřiny a vody, omítky a drobné stavební úpravy.
Po vstupu do bytu se ocitnete v prostorné předsíni, ze které máte přístup do samostatného pokoje o rozloze cca 25m², prostorné koupelny s vanou a sprchovým koutem, samostatného WC a do kuchyně. Z kuchyně se dostanete do velmi prostorného obývacího pokoje o rozloze cca 32m² a do další místnosti o rozloze cca 21m². Celý byt je velmi slunný, okna na východ.
Vytápění je řešeno elektrickým kotlem, ohřev vody pomocí bojleru.
Byt se nachází v přízemí zděného, kompletně rekonstruovaného a zatepleného domu v klidné části obce. Dům je připojený na kanalizaci, plyn a městský vodovod. U domu je velké množství parkovacích stání přímo pod okny bytu. U domu se nachází dětské hřiště. K bytu rovněž náleží prostorná společná sušárna a kolárna s kočárkárnou.
Naleznete zde dostatek soukromí při vašem odpočinku. Koupi této nemovitosti zcela doporučuji. Nemovitost je možné financovat hypotečním úvěrem nebo úvěrem ze stavebního spoření, které pro vás rádi zdarma vyřídíme. Nemovitost není zatížená. PENB energetické třídy D. Více informací vám poskytne realitní makléř. Cena je včetně provize, kupních smluv vypracovaných advokátní kanceláří a advokátní úschovy. Těšíme se na vás při prohlídce, po domluvě i o víkendu.
Máte zájem o tuto nemovitost?
 
                                Klatovská tř. 1204/125, Plzeň
Pomůžeme Vám!
Pomůžeme Vám!
Kontakt
 
                        Eliška Vostracká
Přihlášení k odběru
Nenechte si ujít nejnovější nabídky prodeje bytů 3+1 v Příchovicích.
Podobné nabídky
 
        Prodej bytu 3+1, Holýšov, Pod Makovým vrchem, 66 m2
3 190 000 Kč
 
        Prodej bytu 3+1, Přeštice, K Cihelně, 86 m2
5 190 000 Kč
 
        Prodej bytu 3+1, Přeštice, K Cihelně, 86 m2
5 190 000 Kč
 
        Prodej bytu 3+1, Chotěšov, Plzeňská, 120 m2
8 050 000 Kč
 
                                                                                     
                                                                                     
                                                                                     
                                                                                     
                                                                                     
                                                                                     
                                                                                     
                                                                                     
                                                                                     
                                                                                     
                                                                                     
                                                                                     
                                                                                     
                                                                                     
                                                                                     
                                                                                     
                                                                                     
                                                                                     
                                                                                     
                                                                                     
                                                                                     
                                                                                     
                                                                                     
                                                                                     
                                                                                     
                                                                                     
                                                                                     
                                                                                     
                                             
                                            