Prodej pozemku pro bydlení, Střelice, 904 m2 (ID: 1933766)
Střelice
(V případě více zájemců rozhoduje nejvyšší nabídka., včetně provize, včetně právního servisu)
Popis
Hledáte ideální místo pro svůj nový projekt? Tento stavební pozemek, obdélníkového tvaru, o nadstadartní výměře 904 m2 se nachází na okraji obce Střelice u Brna.
 
Toto místo se pyšní jedinečným, téměř 360 stupňů širokým výhledem přes zalesněnou Bobravskou vrchovinu na jedné straně, a na druhé straně se vám pak otevře panorama západního okraje Brna se siluetou Hádů a okrajem Drahanské vrchoviny na obzoru.
 
Oceníte zde blízkost centra obce, kde najdete veškerou občanskou vybavenost (MŠ, ZŠ, ZUŠ, zdravotní středisko, lékárna, obchody, restaurace, koupaliště, dobré vlakové i autobusové spojení do Brna). Lokalita je klidným a oblíbeným místem pro rodinné vycházky, sportovce i pejskaře.
 
Pozemek je určen pro stavbu rekreačního objektu. Skvělá příležitost pro ty, kteří hledají únik od ruchu velkoměsta, ale přitom je Brno opravdu na dosah. 
 
Stavební místo je třeba napojit na elektřinu (cca vzdálenou 180 metrů), vybudovat vrt a odpady formou septiku či ČOV. To vám však umožňuje naplánovat všechny detaily vašeho nového domova podle vašich představ.
 
Výhodou je také téměř rovinatý terén, který zjednodušuje plánování i realizaci stavby. K pozemku vede asfaltová silnice, a až poslední metry ujedete po udržované zpevněné cestě, což zajišťuje snadný přístup.
* V současné době majitelé přes pozemek přijíždějí ke své nemovitosti, po prodeji však budou využívat jinou příjezdovou cestu.
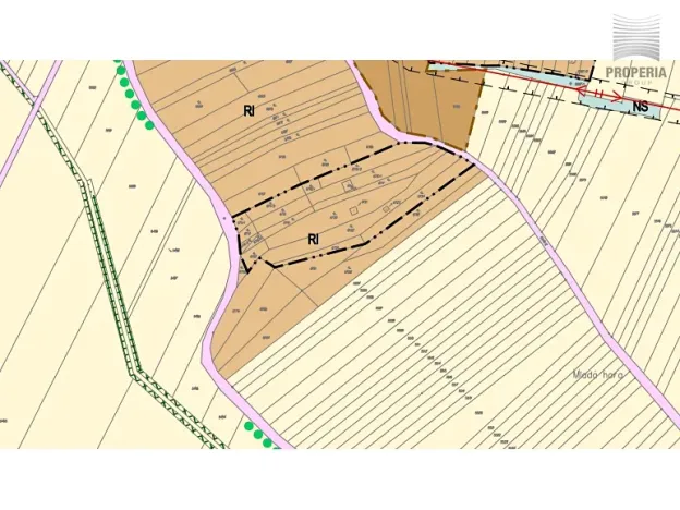
Jedná se o parcelu č. 6667/1.
 
Nezmeškejte tuto jedinečnou příležitost a vytvořte si svůj vlastní ráj v srdci přírody, kde budete moci relaxovat a užívat si krásy okolní krajiny.
Máte zájem o tuto nemovitost?
Máchova 1301/2, Brno, Královo Pole
Pomůžeme Vám!
Pomůžeme Vám!
Kontakt
 
                        Nela Masaryková
Přihlášení k odběru
Nenechte si ujít nejnovější nabídky prodeje pozemků pro bydlení v Střelicích (okr. Brno-venkov).
Tipy Realitymatu
 
        Prodej pozemku pro bydlení, Střelice, Květná, 731 m2
8 404 500 Kč
Podobné nabídky
 
        Prodej pozemku pro bydlení, Střelice, Trpín, 589 m2
4 900 000 Kč
 
        Prodej pozemku pro bydlení, Šumice, 1533 m2
4 905 600 Kč
 
        Prodej pozemku pro bydlení, Tišnov, 983 m2
4 790 000 Kč
 
                                                                                     
                                                                                     
                                                                                     
                                                                                     
                                                                                     
                                                                                     
                                                                                     
                                                                                     
                                                                                     
                                                                                     
                                                                                     
                                                                                     
                                                                                     
                                                                                     
                                                                                     
         
        