Prodej pozemku pro bydlení, Náchod, Komenského, 440 m2

Komenského, Náchod


4 500 000 Kč /za nemovitost
HYPOTÉKA od 20 112 Kč /měs.
Regionální dodavatelé v Náchodě

Popis

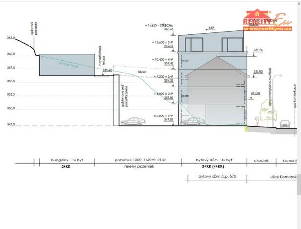
Pozemek s pravomocným stavební povolením na výstavbu bytového domu v centru Náchoda. Jedná se o individuální možnost vybudování objektu bytového domu o 4 moderních bytových jednotkách a jednotce bungalového typu s odpovídajícím množstvím parkovacích stání.
1. NP parkovací stání, vstup do výtahu a technické místnosti
2. NP BJ 4 kk o výměře 93 m²
3. NP BJ 4 kk o výměře 93 m² a BJ bungalov s terasou 2 kk o výměře 63 m²
4. NP BJ 3 kk s balkonem / terasou o výměře 74 m²
5. NP BJ 4 kk s lodžii o výměře 93 m²
Projekt oslovuje zájemce o kvalitnější moderní bydlení, pro něž je současná ,,seconhandová“ bytů nabídka nedostačující. U výstavby se počítá s připojením na obecní vodu, kanalizaci, plyn a elektřinu. Všechny tyto sítě jsou v přiléhající komunikaci. Právoplatné stavební povolení bylo vydáno na jaře 2024. Pozemek je v současné době beze staveb a oplocen. Prodej daného projektu je formou podílu v jednoúčelové společnosti.

Cena
4 500 000 Kč /za nemovitost Spočítat hypotéku
Aktualizováno
27. 11. 2025
Adresa
Komenského, Náchod
ID
322PN
Plocha pozemku
440 m2
Elektřina
230V, 400V
Plyn
Plynovod
Odpad
Veřejná kanalizace
Komunikace
Asfaltová
Doprava
Vlak, Silnice, Autobus
Voda
Vodovod

Máte zájem o tuto nemovitost?

Tímto, v souladu s nařízením Evropského parlamentu a Rady (EU) 2016/679, v platném znění, prohlašuji, že mi je alespoň 16 let a uděluji tak svůj souhlas se zpracováním zadaných údajů (jméno, telefon, e-mail, ip adresa) společnosti B3 Technology, s.r.o., IČ: 07330600, se sídlem Novostavby 126/23, 435 11 Lom (správce dat), za účelem předání dotazu z tohoto formuláře Vámi vybranému inzerentovi a zpětného kontaktování mé osoby. Osobní údaje bude správce zpracovávat manuálně i automaticky přímo prostřednictvím svých zaměstnanců. Informace předané tímto formulářem budou uloženy v databázi správce maximálně po dobu 10 let. Odvolání souhlasu s uložením a zpracováním poskytnutých dat lze e-mailem na info@realitymat.cz. V případě podezření na neoprávněné použití Vámi poskytnutých údajů máte právo předat podnět k šetření Úřadu pro ochranu osobních údajů. Více informací
Chystáte se prodat nemovitost?
Pomůžeme Vám!

Kontakt

Novotný Jiří

Novotný Jiří

Přihlášení k odběru

Nenechte si ujít nejnovější nabídky prodeje pozemků pro bydlení v Náchodě.

Tipy Realitymatu

Podobné nabídky