Pronájem rodinného domu, Olomouc, Kopřivová, 162 m2

Kopřivová, Olomouc, Holice


37 000 Kč /za měsíc
Získejte výhodnou HYPOTÉKU

(bez poplatků)


Regionální dodavatelé v Olomouci

Popis

Vážení klienti, představujeme Vám krásnou novostavbu rodinného domu na ulici Kopřivová v Holici. Jedná se o okrajovou část města s výbornou dostupností do centra, ve slepé ulici a nabízí velmi klidné bydlení.

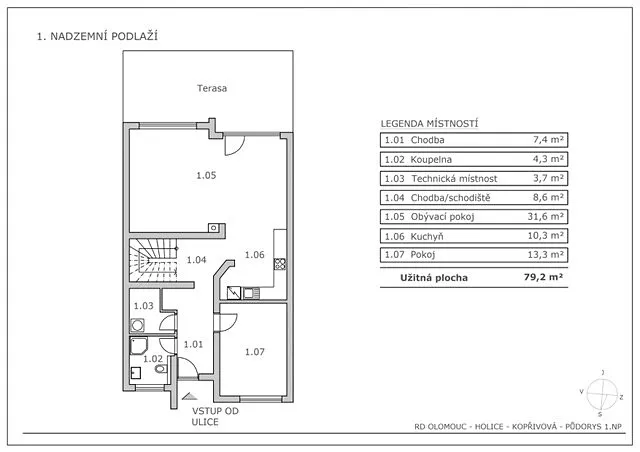
Předmětem nájmu je zděný řadový dům, který byl zkolaudovaný jako novostavba v roce 2022. Objekt s vnitřní podlahovou plochou 162 m2 a dispozicí 5+kk s technickou místností a dvěma koupelnami, je situován na pozemku o výměře 294 m2.

Dispozice domu nabízí prostorné zádveří s úložnými prostory a vstupem do pracovny (13,5 m2), koupelny se sprchovým koutem, umyvadlem, toaletou a technickou místností s pračkou, sušičkou a technologií domu. Přízemí dále nabízí schodišťový prostor s praktickým světlíkem pro přísun denního světla a vstup do hlavního obytného prostoru. Ten má výměru 42 m2 a nabízí dostatek místa pro velkou kuchyňskou linku, jídelní stůl, televizní stěnu a prostornou sedací soupravu. Výhodou je zde prosvětlený interiér díky jižní orientaci a také možnost využití komínové vložky pro krb v zimních měsících. Z prostoru jídelny se vstupuje na částečně krytou terasu s krásným výhledem do zahrady a stromořadí za ní. Zahrada je rovinatá a velmi jednoduchá na údržbu.

Po schodišti s LED osvětlením se dostaneme do druhého nadzemního podlaží. Zde se nachází koupelna s vanou, toaletou, dvojitým umyvadlem a sprchou. Ložnice zde tvoří 3 velké pokoje o výměře 17,5 m2, 22 m2 a 16 m2 s velkou šatnou 7 m2, který je orientovaný do ulice.

Dům je zateplený a velmi úsporný. Vytápění je řešeno tepelným čerpadlem vzduch/vzduch a elektro-kotlem s přenosem do radiátorů. Objekt má velmi nízké náklady do 4 tis. /měsíc. Voda je v lokalitě řešena vrtem, kanalizace septikem.

Před domem se nachází parkovací stání pro dva osobní automobily.

Nemovitost je ve výborném stavu bez jediné známky užívání. Pronajímatel si přeje dlouhodobého nájemce.

Podmínky: nájem 37.000 Kč, zálohy na energie 6.000 Kč, kauce 37.000 Kč, provize 37.000 Kč vč. DPH.

Více informací a právní stav nemovitosti u makléře Petra Hanáka.

Cena
37 000 Kč /za měsíc
Poznámka k ceně
bez poplatků
Aktualizováno
21. 10. 2025
Adresa
Kopřivová, Olomouc, Holice
ID
00124
Stavba
Cihlová
Stav objektu
Novostavba
Druh objektu
Řadový
Užitná plocha
162 m2
Zastavěná plocha
152 m2
Plocha pozemku
294 m2
Plocha zahrady
142 m2
Třída energetické náročnosti
C - Úsporná
Ukazatel energetické náročnosti
106 kWh/m2 za rok
Voda
Studna
Zdroj teplé vody
Elektrokotel

Máte zájem o tuto nemovitost?

Tímto, v souladu s nařízením Evropského parlamentu a Rady (EU) 2016/679, v platném znění, prohlašuji, že mi je alespoň 16 let a uděluji tak svůj souhlas se zpracováním zadaných údajů (jméno, telefon, e-mail, ip adresa) společnosti B3 Technology, s.r.o., IČ: 07330600, se sídlem Novostavby 126/23, 435 11 Lom (správce dat), za účelem předání dotazu z tohoto formuláře Vámi vybranému inzerentovi a zpětného kontaktování mé osoby. Osobní údaje bude správce zpracovávat manuálně i automaticky přímo prostřednictvím svých zaměstnanců. Informace předané tímto formulářem budou uloženy v databázi správce maximálně po dobu 10 let. Odvolání souhlasu s uložením a zpracováním poskytnutých dat lze e-mailem na info@realitymat.cz. V případě podezření na neoprávněné použití Vámi poskytnutých údajů máte právo předat podnět k šetření Úřadu pro ochranu osobních údajů. Více informací
Chystáte se prodat nemovitost?
Pomůžeme Vám!

Kontakt

Petr Hanák

Petr Hanák

Přihlášení k odběru

Nenechte si ujít nejnovější nabídky pronájmu rodinných domů v Olomouci.

Podobné nabídky