Prodej bytu 4+kk, Milovice, Topolová, 110 m2 (ID: 1925439)
Topolová, Milovice, Mladá
Popis
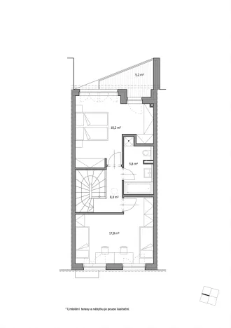
Nabízíme k prodeji dům s parametry nadstandartního bytu, ve výstavbě v klidné části obce Milovice. Tento cihlový, patrový dům se čtyřmi pokoji nabízí současný design a moderní architekturu, která splní požadavky na pohodlné a kvalitní bydlení. Dům bude kolaudován v roce 2026 a bude připraven k nastěhování 30. června 2026.
S užitnou plochou 110 m² a pozemkem o rozloze 125 m² nabízí tento řadový rodinný dům s pohodlím bytu, ideální místo pro rodinné bydlení. Díky výborné dostupnosti vlakového spojení do Prahy Nymburka i Mladé Boleslavi, dálnicím D11 a R46 a fungující MHD, je zajištěna snadná doprava do všech důležitých destinací. Součástí nemovitosti je parkovací místo.
Dům je ve fázi výstavby a je součástí exkluzivní nabídky s cenou 7 990 000 Kč. Energetická třída B s instalovanými fotovoltaickými panely svědčí o nízkoenergetickém zaměření domu, což může přinést úsporu na dlouhodobých nákladech na energiích. Dům je vytápěn podlahovým topením, je napojen na veřejný vodovod a kanalizaci, přiveden je optický kabel internetu.
Bližší informace naleznete na našich stránkách DOMY.PODLISKAMI.CZ
Pro další informace nebo zájmu o prohlídku nás prosím kontaktujte pomocí SMS či telefonu.
Těšíme se na Váš zájem!
Máte zájem o tuto nemovitost?
Trojská 163/28, Praha
Pomůžeme Vám!
Pomůžeme Vám!
Kontakt

Ing. Blanka Benešová
Přihlášení k odběru
Nenechte si ujít nejnovější nabídky prodeje bytů 4+kk v Milovicích (okr. Nymburk).
Tipy Realitymatu

Prodej bytu 3+1, Vestec, 74 m2
4 300 000 Kč
Podobné nabídky

Prodej bytu 4+kk, Milovice - Mladá, Armádní, 76 m2
7 090 000 Kč

Prodej bytu 4+kk, Lysá nad Labem, Palackého, 115 m2
11 940 600 Kč

Prodej bytu 4+kk, Starý Vestec, 96 m2
8 990 000 Kč