Prodej bytu 4+kk, Nymburk, Masarykova, 129 m2

Masarykova, Nymburk


6 390 000 Kč /za nemovitost
HYPOTÉKA od 28 559 Kč /měs.
Regionální dodavatelé v Nymburku

Pojištění a finance

Popis

Dobrý den,
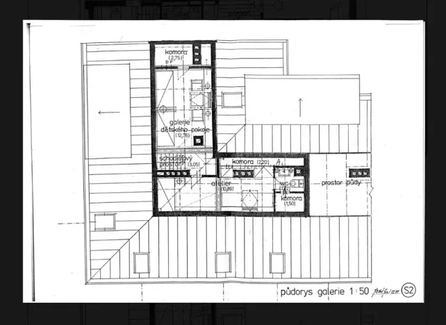
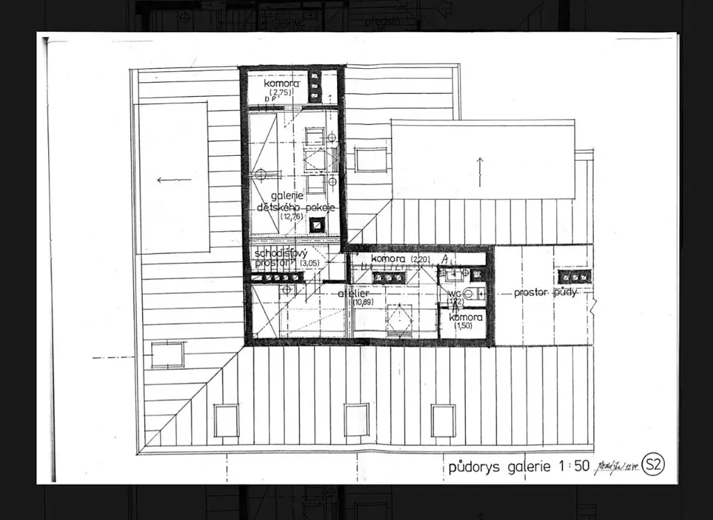
nabízím k prodeji prostorný mezonetový byt o dispozici 4+kk s pracovnou a lodžií, který se nachází v Masarykově ulici v širším centru Nymburka, asi 2 minuty chůze od hlavního vlakového nádraží. Byt je ve 3. patře bytového domu bez výtahu. Celková podlahová plocha bytu je 129 m², k tomu náleží lodžie o výměře 6 m² s jedinečným výhledem.
Tento byt s jedinečnou atmosférou a charakterem, není jen bytem, ale může být i vaším novým domovem.
Mezonetová dispozice nabízí velkorysý prostor, který si zamilujete hned při vstupu. Byt je členěn na vstupní chodbu, ze které se dostanete do velkoprostorového obývacího pokoje s kuchyňským koutem a jídelnou. Dominantou tohoto prostoru je prosklená stěna s přímým vstupem na lodžii, která přirozeně propojuje interiér s venkovním posezením.
Na hlavním podlaží se dále nachází dva samostatné pokoje, samostatné WC a prostorná koupelna vybavená vanou, sprchovým koutem, WC a zdvojeným umyvadlem, které je ideálním řešením pro rodinný provoz. Do horního patra mezonetu (4. NP) vede dřevěné schodiště, které podtrhuje charakter celého bytu. Zde najdete dva pokoje, prosvětlené střešními okny. Tyto místnosti mají nižší stropy, a jejich ideální využití je zejména pro menší děti, hernu, úložné prostory, pracovnu, nebo klidovou zónu.

Půdní vestavba byla realizována v roce 1992. V roce 2021 proběhla rekonstrukce prosklené stěny mezi obývacím pokojem a lodžií, rok 2022 přinesl kompletní rekonstrukci koupelny. Poslední úpravy proběhly v roce 2025 a zahrnovaly novou elektroinstalaci v obývacím pokoji, sádrokartonové podhledy a štuky, renovace podlah.
Byt je vytápěn plynovým kotlem s novými radiátory. V obývacím pokoji je navíc možnost přitápění krbovými kamny, které dodávají interiéru jedinečnou atmosféru.
Celý byt je charakteristický krásnými přiznanými dřevěnými trámy, obložením a krovy, které vytváří útulný dojem.

Dům disponuje klidným zahradním vnitroblokem, který je ideálním místem pro rodiny s dětmi. K dispozici je zde také společná kolárna.
Součástí bytu je vlastní sklep a na vstupním podlaží se nachází také rozsáhlý půdní prostor, vhodný pro další uskladnění věcí, nebo sušení prádla.

Lokalita, kde se dobře žije.
V bezprostředním okolí domu najdete park pro každodenní procházky. Nedaleko také protéká řeka Labe, lemovaná vyhlášenou cyklostezkou, kterou se dostanete přes Poděbrady až do Kolína. Můžete také využít kompletní občanskou vybavenost i široké spektrum škol, jako jsou školy mateřské, základní, gymnázium, uměleckou školu i odborné učiliště.
Výborná je také dopravní dostupnost, v rámci města, ale i mimo něj. Do Prahy se dostanete přibližně do 30 minut autem po dálnici D11, nebo cca 45 minut vlakem na Hlavní nádraží.
Tento byt je ideální volbou pro rodinu, která hledá prostor, osobitost a klid, ale zároveň chce mít vše důležité na dosah. Pokud hledáte bydlení s duší, tak toto místo Vás určitě osloví.
Pro více informací nebo sjednání prohlídky, mě neváhejte kontaktovat.

Cena
6 390 000 Kč /za nemovitost Spočítat hypotéku
Aktualizováno
22. 4. 2026
Adresa
Masarykova, Nymburk
ID
974014
Stavba
Cihlová
Stav objektu
Po rekonstrukci
Patro
4. z 4
Vybaveno
Ne
Vlastnictví
Osobní
Užitná plocha
129 m2
Podlahová plocha
135 m2
Třída energetické náročnosti
D - Méně úsporná
Elektřina
230V
Plyn
Plynovod
Odpad
Veřejná kanalizace
Komunikace
Asfaltová
Telekomunikace
Internet
Doprava
Vlak, Dálnice, Silnice, MHD, Autobus
Voda
Vodovod
Topné těleso
Radiátory
Zdroj topení
Jiné
Sklep
Lodžie

Máte zájem o tuto nemovitost?

Tímto, v souladu s nařízením Evropského parlamentu a Rady (EU) 2016/679, v platném znění, prohlašuji, že mi je alespoň 16 let a uděluji tak svůj souhlas se zpracováním zadaných údajů (jméno, telefon, e-mail, ip adresa) společnosti B3 Technology, s.r.o., IČ: 07330600, se sídlem Novostavby 126/23, 435 11 Lom (správce dat), za účelem předání dotazu z tohoto formuláře Vámi vybranému inzerentovi a zpětného kontaktování mé osoby. Osobní údaje bude správce zpracovávat manuálně i automaticky přímo prostřednictvím svých zaměstnanců. Informace předané tímto formulářem budou uloženy v databázi správce maximálně po dobu 10 let. Odvolání souhlasu s uložením a zpracováním poskytnutých dat lze e-mailem na info@realitymat.cz. V případě podezření na neoprávněné použití Vámi poskytnutých údajů máte právo předat podnět k šetření Úřadu pro ochranu osobních údajů. Více informací
Chystáte se prodat nemovitost?
Pomůžeme Vám!
Theleadway banner

Kontakt

Barbora Bilinová

Barbora Bilinová

Přihlášení k odběru

Nenechte si ujít nejnovější nabídky prodeje bytů 4+kk v Nymburku.

Podobné nabídky