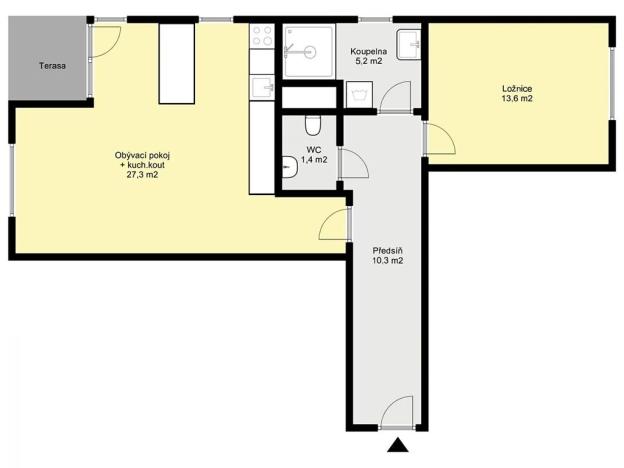
Prodej bytu 2+kk, Kolín, Zásmucká, 63 m2

Zásmucká, Kolín III


6 690 000 Kč /za nemovitost
HYPOTÉKA od 29 900 Kč /měs.

(Cena včetně právního servisu a provize.)


Regionální dodavatelé v Kolíně

Popis

Dobrý den.

Nabízím Vám krásný byt o dispozici 2+kk o celkové výměře 63 m2 s předzahrádkou o výměře 169 m2 a garážovým stáním, na adrese Zásmucká 894.

Jedná se o úspěšný projekt Za Jízdárnou, kde byl kladen důraz na vysoký standart výstavby, tak i na použité materiály.
Byt je díky velkým oknům s trojskly příjemně prosvětlený a předokenní žaluzie zajišťují soukromí.
Součástí prodeje je kuchyňská linka s vestavěnými spotřebiči a vestavné skříně v ložnici.
K bytu dále náleží sklepní kóje a garážové stání v suterénu domu.

Nemovitost je bez právních vad a financování je možné pomocí hypotečního úvěru, který Vám rádi vyřídíme.


Cena
6 690 000 Kč /za nemovitost Spočítat hypotéku
Poznámka k ceně
Cena včetně právního servisu a provize.
Aktualizováno
25. 10. 2025
Adresa
Zásmucká, Kolín III
ID
911
Stavba
Cihlová
Stav objektu
Novostavba
Patro
1. z 4
Vybaveno
Částečně
Vlastnictví
Osobní
Užitná plocha
63 m2
Podlahová plocha
63 m2
Plocha zahrady
160 m2
Třída energetické náročnosti
C - Úsporná
Elektřina
230V
Odpad
Veřejná kanalizace
Topení
Ústřední dálkové
Komunikace
Dlážděná
Doprava
Vlak, Dálnice, Silnice, MHD, Autobus
Voda
Vodovod
Topné těleso
Radiátory
Garáž
Sklep
Terasa
Bezbarierový přístup

Máte zájem o tuto nemovitost?

Tímto, v souladu s nařízením Evropského parlamentu a Rady (EU) 2016/679, v platném znění, prohlašuji, že mi je alespoň 16 let a uděluji tak svůj souhlas se zpracováním zadaných údajů (jméno, telefon, e-mail, ip adresa) společnosti B3 Technology, s.r.o., IČ: 07330600, se sídlem Novostavby 126/23, 435 11 Lom (správce dat), za účelem předání dotazu z tohoto formuláře Vámi vybranému inzerentovi a zpětného kontaktování mé osoby. Osobní údaje bude správce zpracovávat manuálně i automaticky přímo prostřednictvím svých zaměstnanců. Informace předané tímto formulářem budou uloženy v databázi správce maximálně po dobu 10 let. Odvolání souhlasu s uložením a zpracováním poskytnutých dat lze e-mailem na info@realitymat.cz. V případě podezření na neoprávněné použití Vámi poskytnutých údajů máte právo předat podnět k šetření Úřadu pro ochranu osobních údajů. Více informací
Chystáte se prodat nemovitost?
Pomůžeme Vám!

Kontakt

Petr Šmíd

Petr Šmíd

Přihlášení k odběru

Nenechte si ujít nejnovější nabídky prodeje bytů 2+kk v Kolíně.

Podobné nabídky