Prodej rodinného domu, Lišany, Na vrškách, 115 m2

Na vrškách, Lišany


2 490 000 Kč /za nemovitost
HYPOTÉKA od 11 129 Kč /měs.
Regionální dodavatelé v Lišanech

Popis

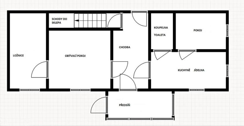
Nabízíme k prodeji rodinný dům o dispozici 3+1 o podlahové ploše cca 115 m2 v obci Lišany 5 km od okresního města Rakovník. K budově sice NEnáleží vlastní zahrada, ale pro potřeby vlastního bydlení jako alternativa na místo bytu v osobním vlastnictví bez přímých sousedů poslouží velmi dobře. S ohledem na nízkou pořizovací cenu je tato nemovitost i vhodným investičním nástrojem s velmi dobrým výnosový procentem z nájmu.

Na cca 115 m2 naleznete 3 pokoje, kuchyň, koupelnu s toaletou, chodbu s předsíní. Obytný prostor je schodištěm propojen se sklepem a půdou, kde lze vytvořit další plnohodnotné obytné patro a stejné podlahové ploše jako přízemí domu. Parkování je možné přímo na pozemku u domu
Částečně podsklepená budova ze smíšeného zdiva je určena ke kompletní rekonstrukci.

Vodorovné konstrukce jsou dřevěné. Okna plastová vyjma zádvěří. Dům je napojen na elektřinu, obecní vodovod, kanalizaci a plynovod. Vytápění je řešeno ústředním plynovým kotlem, případně lze upravit na elektrokotel, krbová kamna či kotel na tuhá paliva.

K nemovitosti není k dispozici projektová dokumentace skutečného stavu. Energetická náročnost budovy: třída G (mimořádně nehospodárná).

Lišany jsou klidná obec ve Středočeském kraji s výbornou dostupností do Rakovníka i okolních měst. Nabízí kompletní občanskou vybavenost – obecní úřad, pošta, škola, školka, obchod, restaurace, autobusová zastávka. Velmi dobrá dostupnost vlakové stanice a nájezd na dálnici D6 směr Praha – Karlovy Vary.

Cena
2 490 000 Kč /za nemovitost Spočítat hypotéku
Aktualizováno
25. 8. 2025
Adresa
Na vrškách, Lišany
ID
2101
Stavba
Smíšená
Stav objektu
Před rekonstrukcí
Druh objektu
Samostatný
Užitná plocha
115 m2
Zastavěná plocha
144 m2
Plocha pozemku
177 m2
Plocha zahrady
33 m2
Třída energetické náročnosti
G - Mimořádně nehospodárná
Elektřina
230V
Plyn
Plynovod
Odpad
Veřejná kanalizace
Komunikace
Asfaltová
Doprava
Vlak, Silnice, Autobus
Voda
Vodovod
Topné těleso
Radiátory, Krbová kamna
Zdroj topení
Plynový kotel
Zdroj teplé vody
Plynový kotel, Bojler - elektro
Sklep
Parkování

Máte zájem o tuto nemovitost?

Tímto, v souladu s nařízením Evropského parlamentu a Rady (EU) 2016/679, v platném znění, prohlašuji, že mi je alespoň 16 let a uděluji tak svůj souhlas se zpracováním zadaných údajů (jméno, telefon, e-mail, ip adresa) společnosti B3 Technology, s.r.o., IČ: 07330600, se sídlem Novostavby 126/23, 435 11 Lom (správce dat), za účelem předání dotazu z tohoto formuláře Vámi vybranému inzerentovi a zpětného kontaktování mé osoby. Osobní údaje bude správce zpracovávat manuálně i automaticky přímo prostřednictvím svých zaměstnanců. Informace předané tímto formulářem budou uloženy v databázi správce maximálně po dobu 10 let. Odvolání souhlasu s uložením a zpracováním poskytnutých dat lze e-mailem na info@realitymat.cz. V případě podezření na neoprávněné použití Vámi poskytnutých údajů máte právo předat podnět k šetření Úřadu pro ochranu osobních údajů. Více informací
Chystáte se prodat nemovitost?
Pomůžeme Vám!

Kontakt

Pavel Špás

Pavel Špás

Přihlášení k odběru

Nenechte si ujít nejnovější nabídky prodeje rodinných domů v Lišanech (okr. Rakovník).

Tipy Realitymatu

Podobné nabídky