Prodej rodinného domu, Týnec nad Sázavou - Brodce, 187 m2
Brodce
Popis
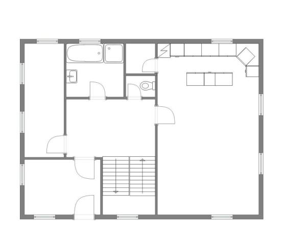
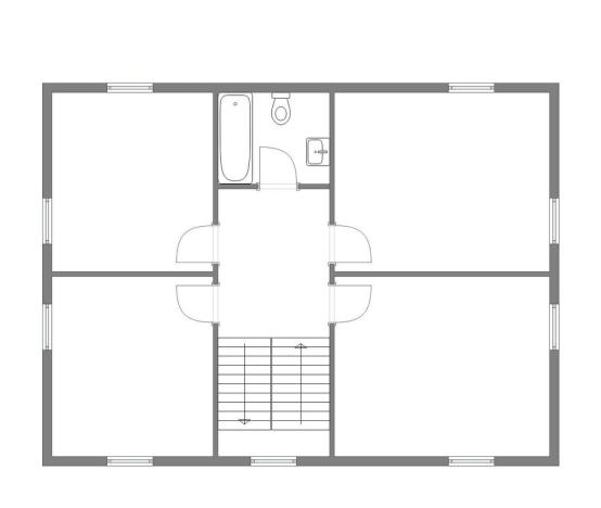
Exkluzivně nabízíme k prodeji novostavbu rodinného domu, která byla kolaudována na podzim roku 2021. Jedná se o nepodsklepený rodinný dům stojící na základové desce s jedním nadzemním podlažím a obytným podkrovím a půdou. Dům je zděný z tvárnic Ytong (zateplení 5cm a na severní straně 10 cm, strop nad podkrovím je izolován 20 cm), fasáda zakončena perlinkou s lepidlem - připraveno na finální vzhled fasády, dřevěný krov s betonovými taškami KM Beta. Okna dřevěná typu Euro s kalenými skly, střešní okna Velux, vstupní dveře bezpečnostní. Vnitřní provedení je patrné z aktuálních fotografií. Dispoziční řešení domu je patrné z přiložených půdorysů. Z inženýrských sítí je k dispozici elektřina 220/380 V, plyn, vodovodní řád, kanalizace, internet možné zřídit bezdrátově, anténní rozvod do všech místností. Topení zajištěno kombinovaným plynovým turbo kotlem zn. Baxi, který zároveň zajišťuje dodávku TUV ze zásobníku. Příjezdová cesta a terasa jsou vydlážděny, na pozemku se nachází příprava na kryté posezení s možností krbu, ohniště, bazén 3x5 a hloubkou 120 cm a dále zahradní domek na nářadí a skleník. Základní občanská vybavenost v místě, dopravní obslužnost zajištěna autobusovými (nejbližší zastávka 1 minuta chůze od domu) či vlakovými spoji (zastávka ve vzdálenosti 590 m, tj. 10 minut chůze). Se zájmem o prohlídku či další informace nás neváhejte kontaktovat.
Máte zájem o tuto nemovitost?

Lamačova 913/33, Praha
Pomůžeme Vám!
Pomůžeme Vám!
Kontakt

Michal Němeček
Přihlášení k odběru
Nenechte si ujít nejnovější nabídky prodeje rodinných domů v Týnci nad Sázavou.
Tipy Realitymatu

Prodej rodinného domu, Nespeky, Potočiny, 182 m2
9 900 000 Kč

Prodej chaty, Smilkov, 53 m2
3 800 000 Kč
Podobné nabídky

Prodej rodinného domu, Týnec nad Sázavou, 148 m2
8 990 000 Kč

Prodej rodinného domu, Týnec nad Sázavou, 300 m2
9 490 000 Kč

Prodej rodinného domu, Týnec nad Sázavou, 71 m2
5 450 000 Kč