Prodej bytu 3+kk, Hůry, Pod Strání, 130 m2 (ID: 1920497)

Pod Strání, Hůry


8 990 000 Kč /za nemovitost
HYPOTÉKA od 40 180 Kč /měs.

(Prodej přímo od majitele, neplatí se provize RK)


Regionální dodavatelé v Hůrách

Výkup a prodej starého nábytku

Popis

Poslední 3+kk se zahradou. Stavba je oficiálně zahájena (1.12.2025) - kolaudace a předání v roce 2028. Nabízíme spolehlivost v rámci generálních partnerů jako STRABAG a ČSOB. Rezidence u Sv. Eliáše je nový rezidenční projekt situovaný v obci Hůry, která leží zhruba 5 kilometrů od centra Českých Budějovic. Lokalita je umístěna mimo hlavní zástavbu. Projekt těží z výhod strategické polohy – v těsné blízkosti hlavních silničních tahů vedoucích do Českých Budějovic i na dálnici D3, která je dostupná pár minut autem. Díky tomu je možné pohodlně cestovat nejen do krajského centra, ale i do dalších částí Jihočeského kraje.
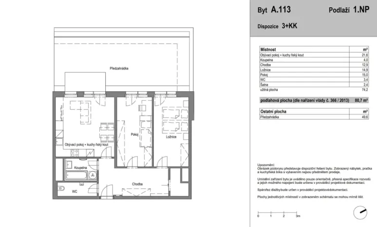
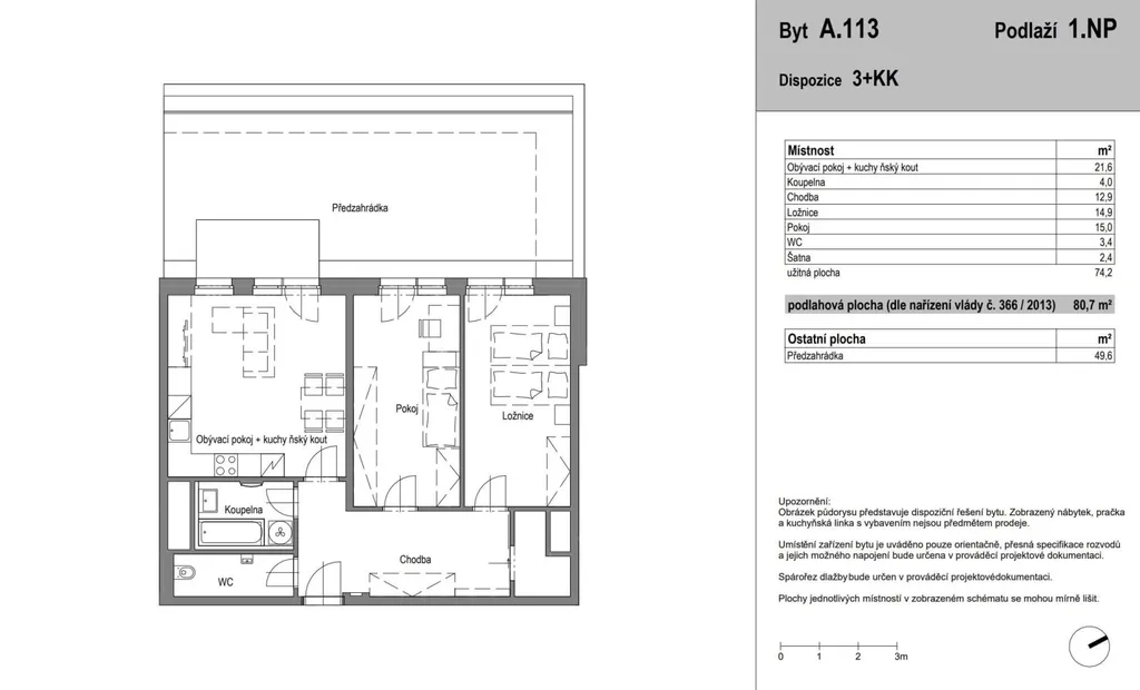
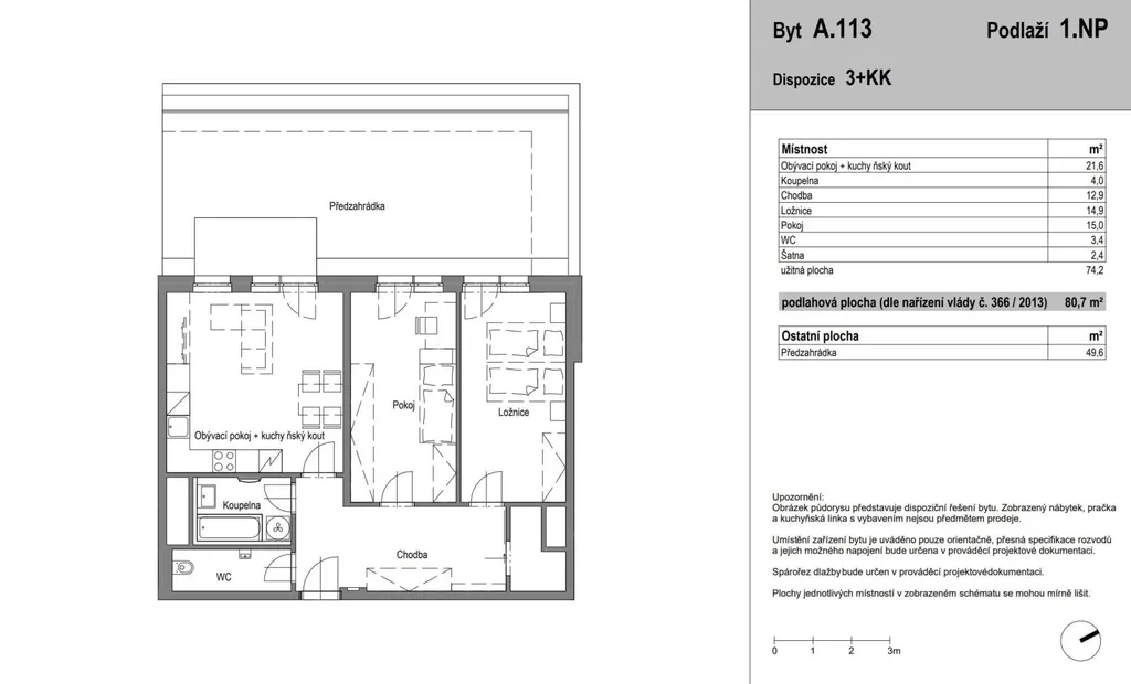
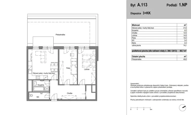
V rámci projektu vznikne celkem 191 bytových jednotek o různých dispozicích od 1+kk až po 4+kk. Byty budou umístěné ve třech budovách, což umožní dostatečné osvětlení a prostor. K bytům bude náležet sklepní kóje a vlastní parkovací stání, toto příslušenství se platí nad rámec cenu za jednotku. Součástí většiny bytů bude balkon, terasa nebo předzahrádka. Projekt je navržen tak, aby splnil potřeby širokého spektra obyvatel – jednotlivců, rodin s dětmi i seniorů.
Součástí rezidence bude nově postavená základní škola s pěti třídami, která disponuje vlastní jídelnou a moderní tělocvičnou. Tělocvična bude sloužit nejen školákům, ale i veřejnosti v rámci sportovních a volnočasových aktivit.
V docházkové vzdálenosti od rezidence se nachází mateřská škola, která usnadní zajištění předškolní péče. Kromě školních zařízení je součástí projektu i zdravotnické zařízení s personálem.
Projekt je doplněn o veřejné zelené plochy, parky a dětská hřiště, které budou přístupné všem obyvatelům rezidence. Pro pěší a kočárky jsou plánovány zpevněné cesty, které zajistí bezpečný pohyb uvnitř areálu i propojení s okolní přírodou. Cyklotrasa vede do centra Českých Budějovic, což umožňuje pohodlnou alternativu dopravy.
Dopravní dostupnost je jedním z klíčových aspektů projektu. Velkou výhodou je nájezd na dálnici D3. Stibus jenž bude propojovat projekt s MHD je situován přímo v areálu, což usnadní dojíždění do města bez nutnosti auta. Automobilová doprava do centra Českých Budějovic zabere přibližně 9 minut do centra, do Hluboké nad Vltavou 12 minut a do Třeboně zhruba 17 minut. Český Krumlov 25 minut autem a resorty na Lipně 1h.
Technické řešení bytů a jejich dispozice odpovídají současným požadavkům na komfort a efektivitu využití prostoru. Výstavba bude probíhat s důrazem na kvalitu materiálů a standardů tak, aby splnila potřeby moderního bydlení.
Projekt nabízí kombinaci cenově dostupného bydlení s občanskou vybaveností a dobrou dopravní dostupností, a to v lokalitě, která umožňuje kontakt s přírodou. Díky tomu je vhodná pro rodiny, jednotlivce i seniory, kteří hledají vyvážené a funkční bydlení v bezprostřední blízkosti Českých Budějovic.
Nabízíme také 3 varianty financování a výkonného finančního partnera, který je schopen zajistit hypotéku v různých podmínkách. Máme také výhodný program pro větší investory.

Cena
8 990 000 Kč /za nemovitost Spočítat hypotéku
Poznámka k ceně
Prodej přímo od majitele, neplatí se provize RK
Aktualizováno
14. 4. 2026
Adresa
Pod Strání, Hůry
ID
5
Stavba
Cihlová
Stav objektu
Novostavba
Patro
1.
Typ objektu
Přízemní
Lokalita objektu
Okraj obce
Vlastnictví
Osobní
Užitná plocha
130 m2
Plocha zahrady
50 m2
Třída energetické náročnosti
B - Velmi úsporná
Elektřina
230V
Plyn
Plynovod
Odpad
Veřejná kanalizace
Topení
Ústřední plynové
Komunikace
Betonová, Dlážděná, Asfaltová
Doprava
Dálnice, Silnice, Autobus
Voda
Vodovod
Balkon
Terasa
Výtah
Bezbarierový přístup
Parkování

Máte zájem o tuto nemovitost?

Tímto, v souladu s nařízením Evropského parlamentu a Rady (EU) 2016/679, v platném znění, prohlašuji, že mi je alespoň 16 let a uděluji tak svůj souhlas se zpracováním zadaných údajů (jméno, telefon, e-mail, ip adresa) společnosti B3 Technology, s.r.o., IČ: 07330600, se sídlem Novostavby 126/23, 435 11 Lom (správce dat), za účelem předání dotazu z tohoto formuláře Vámi vybranému inzerentovi a zpětného kontaktování mé osoby. Osobní údaje bude správce zpracovávat manuálně i automaticky přímo prostřednictvím svých zaměstnanců. Informace předané tímto formulářem budou uloženy v databázi správce maximálně po dobu 10 let. Odvolání souhlasu s uložením a zpracováním poskytnutých dat lze e-mailem na info@realitymat.cz. V případě podezření na neoprávněné použití Vámi poskytnutých údajů máte právo předat podnět k šetření Úřadu pro ochranu osobních údajů. Více informací
Chystáte se prodat nemovitost?
Pomůžeme Vám!

Kontakt

Karel Šandera

Karel Šandera

Přihlášení k odběru

Nenechte si ujít nejnovější nabídky prodeje bytů 3+kk v Hůrách.

Podobné nabídky