Prodej pozemku pro bydlení, Velké Přílepy, 890 m2 (ID: 1920363)

Velké Přílepy


Cena na vyžádání /za nemovitost
Získejte výhodnou HYPOTÉKU

(cena u makléře)


Regionální dodavatelé v Velkých Přílepích

Popis

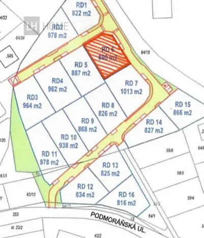
Nabízíme prodej stavebního pozemku v nově vzniklé ulici Klikatá, obec Velké Přílepy, která propojuje ul. Podmoráňskou a Pražskou.

Rovný pozemek na č.p. 64/58 určený k zástavbě o celkové výměře 890 m2.

Komunikace a sítě: Elektrika - pomník ke každé parcele, kanalizace, vodovod, plyn, optický kabel - vše zkolaudováno.

V blízkosti stavebních parcel bude vybudováno obchodní centrum s občanskou vybaveností.

V případě zájmu o bližší informace nás neváhejte kontaktovat.

Cena
Cena na vyžádání Spočítat hypotéku
Poznámka k ceně
cena u makléře
Aktualizováno
1. 2. 2026
Adresa
Velké Přílepy
ID
RD 6
Lokalita objektu
Klidná část obce
Plocha pozemku
890 m2

Máte zájem o tuto nemovitost?

Tímto, v souladu s nařízením Evropského parlamentu a Rady (EU) 2016/679, v platném znění, prohlašuji, že mi je alespoň 16 let a uděluji tak svůj souhlas se zpracováním zadaných údajů (jméno, telefon, e-mail, ip adresa) společnosti B3 Technology, s.r.o., IČ: 07330600, se sídlem Novostavby 126/23, 435 11 Lom (správce dat), za účelem předání dotazu z tohoto formuláře Vámi vybranému inzerentovi a zpětného kontaktování mé osoby. Osobní údaje bude správce zpracovávat manuálně i automaticky přímo prostřednictvím svých zaměstnanců. Informace předané tímto formulářem budou uloženy v databázi správce maximálně po dobu 10 let. Odvolání souhlasu s uložením a zpracováním poskytnutých dat lze e-mailem na info@realitymat.cz. V případě podezření na neoprávněné použití Vámi poskytnutých údajů máte právo předat podnět k šetření Úřadu pro ochranu osobních údajů. Více informací
Chystáte se prodat nemovitost?
Pomůžeme Vám!

Kontakt

Pavel Vakeš

Pavel Vakeš

Přihlášení k odběru

Nenechte si ujít nejnovější nabídky prodeje pozemků pro bydlení v Velkých Přílepích.

Podobné nabídky