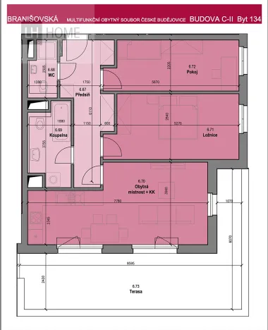
Prodej bytu 3+kk, České Budějovice, Branišovská, 73 m2 (ID: 1920325)

Branišovská, České Budějovice 2


8 222 308 Kč /za nemovitost
HYPOTÉKA od 36 749 Kč /měs.
Regionální dodavatelé v Českých Budějovicích

Popis

Vaše nové bydlení čeká – poslední volné byty v nabídce!

Moderní byt 3+kk (73,80 m²) s jihozápadní orientací, s terasou (27 m²) v unikátním projektu Nová čtvrť Branišovská.

Toužíte po domově, který kombinuje moderní design, skvělou lokalitu a kvalitní vybavení? Tady je příležitost, kterou nesmíte minout!

Tento komfortní byt v posledním. 6. patře novostavby bytového domu CII splňuje požadavky na praktické a promyšlené bydlení – ideální pro jednotlivce, páry i mladé rodiny. Moderní interiér zahrnuje kvalitní keramické dlažby, vinylové podlahy a elegantní interiérové dveře s obložkami. Každý detail byl navržen s maximální pečlivostí, aby vyhovoval nárokům na současný životní styl.

Proč právě Nová čtvrť Branišovská?

Jedinečná lokalita: Na dosah přírody i města – klidné bydlení v blízkosti zeleně s výbornou dostupností do centra Českých Budějovic.

Strategická poloha: Ideální pro studenty a zaměstnance Jihočeské univerzity, ale také pro investory hledající atraktivní příležitosti k pronájmu.

Kompletní občanská vybavenost: Školy, obchody, lékaři a další služby jsou na dosah ruky.

Aktivní životní styl: Perfektní místo pro milovníky procházek, cyklistiky a relaxace v přírodě.

Bytový dům C – více než jen bydlení:
Projekt zahrnuje 136 moderních bezbariérových bytů se zbývajícími dispozicemi 2+kk a 3+kk, každý s balkonem, lodžií nebo terasou. K dispozici je rovněž možnost zakoupení garážového stání a sklepní kóje.

K nastěhování léto 2025.

Nenechte si ujít tuto jedinečnou příležitost! Kontaktujte nás ještě dnes a zjistěte více o možnostech financování i dalších detailech.

Cena
8 222 308 Kč /za nemovitost Spočítat hypotéku
Aktualizováno
25. 8. 2025
Adresa
Branišovská, České Budějovice 2
ID
C2134
Stavba
Cihlová
Stav objektu
Novostavba
Patro
6. z 6
Vybaveno
Ne
Lokalita objektu
Klidná část obce
Vlastnictví
Osobní
Užitná plocha
73 m2
Zastavěná plocha
159 m2
Třída energetické náročnosti
A - Mimořádně úsporná
Plyn
Plynovod
Odpad
Veřejná kanalizace
Komunikace
Asfaltová
Voda
Vodovod
Topné těleso
Radiátory
Terasa
Výtah
Bezbarierový přístup

Máte zájem o tuto nemovitost?

Tímto, v souladu s nařízením Evropského parlamentu a Rady (EU) 2016/679, v platném znění, prohlašuji, že mi je alespoň 16 let a uděluji tak svůj souhlas se zpracováním zadaných údajů (jméno, telefon, e-mail, ip adresa) společnosti B3 Technology, s.r.o., IČ: 07330600, se sídlem Novostavby 126/23, 435 11 Lom (správce dat), za účelem předání dotazu z tohoto formuláře Vámi vybranému inzerentovi a zpětného kontaktování mé osoby. Osobní údaje bude správce zpracovávat manuálně i automaticky přímo prostřednictvím svých zaměstnanců. Informace předané tímto formulářem budou uloženy v databázi správce maximálně po dobu 10 let. Odvolání souhlasu s uložením a zpracováním poskytnutých dat lze e-mailem na info@realitymat.cz. V případě podezření na neoprávněné použití Vámi poskytnutých údajů máte právo předat podnět k šetření Úřadu pro ochranu osobních údajů. Více informací
Chystáte se prodat nemovitost?
Pomůžeme Vám!

Kontakt

Antonie Hadačová

Antonie Hadačová

Přihlášení k odběru

Nenechte si ujít nejnovější nabídky prodeje bytů 3+kk v Českých Budějovicích.

Podobné nabídky