Prodej rodinného domu, Jindřichův Hradec - Jindřichův Hradec II, 9. května, 129 m2
9. května, Jindřichův Hradec II
Výkup a prodej starého nábytku
Popis
Nabízíme ke koupi nový, moderní rodinný dům v blízkosti centra Jindřichova Hradce.
V 1. NP se nachází prostorný obývací pokoj s kuchyní a dvěma vstupy na zahradu, pracovna rovněž se vstupem na zahradu, technická místnost a prádelna se sprchovým koutem.
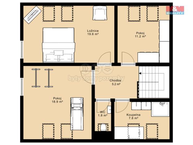
Ve 2. NP jsou tři prostorné pokoje, přičemž jeden z nich slouží jako šatna, dále koupelna a samostatné WC.
Dům je vystavěn z cihel o tloušťce 44 cm s vatovou výplní. O vytápění a ohřev vody se stará plynový kotel s rozvodem do podlahového topení. Na podlahách je položena vinylová krytina.
Tento moderní dům je vybaven centrálním vysavačem, a to i s venkovním připojením. Na všech oknech jsou instalovány venkovní rolety, přičemž ve 2. NP mají automatické ovládání.
Pokud hledáte bydlení bez dalších investic, neváhejte kontaktovat makléře a přijďte si prohlédnout svůj budoucí domov!
Máte zájem o tuto nemovitost?
 
                                ulice Krakovská 583/9, Praha
Pomůžeme Vám!
Pomůžeme Vám!
Kontakt
 
                        Jan Janků
Přihlášení k odběru
Nenechte si ujít nejnovější nabídky prodeje rodinných domů v Jindřichově Hradci.
Tipy Realitymatu
 
                                                                                     
                                                                                     
                                                                                     
                                                                                     
                                                                                     
                                                                                     
                                                                                     
                                                                                     
                                                                                     
                                                                                     
                                                                                     
                                                                                     
                                                                                     
                                                                                     
                                                                                     
                                                                                     
                                                                                     
                                                                                     
                                                                                     
                                                                                     
                                                                                     
                                                                                     
                                                                                     
                                                                                     
                                                                                     
                                                                                     
                                                                                     
         
         
         
         
         
        