Pronájem kanceláře, Šumperk, Dr. E. Beneše, 130 m2
Dr. E. Beneše, Šumperk
Popis
Hledáte vhodné kancelářské prostory pro Vaše podnikání v centru města Šumperk? Kancelář je pro produktivitu nezbytná a je také místem pro upevňování a budování pracovních vztahů. Vytvořte si motivující pracovní prostředí.
V budově Komerční banky je k dispozici několik kanceláří. Budova se nachází v samotném centru Šumperka na ulici Dr. E. Beneše. Samozřejmě v pěší dostupnosti nechybí veškerá občanská vybavenost od úřadů přes poštu až po banky a pojišťovny.
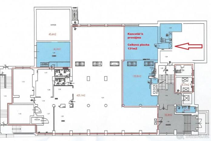
Aktuální nabídka:
4.NP s výtahem: PRONAJATO
- kancelář č. 1 s celkovou výměrou 42m2 ( předělena příčkou na dvě kanceláře (2x 21m2). Kanceláře je možné pronajmout pouze jako celek 
- kancelář č. 2 s celkovou výměrou 21m2
- kancelář č. 3 s celkovou výměrou 43m2 ( předělena příčkou na dvě kanceláře kanceláře. Kanceláře lze pronajmout pouze jako celek
- sociální zázemí + kuchyňka na chodbě
1.NP: K DISPOZICI
- kancelář č. 4 s velkorysou výměrou 130m2 (disponuje kuchyňkou a archivem).
- sociální zázemí na patře
Měsíční nájemné činí 180Kč/m2 + energie zálohově 2.000Kč/měsíc (s ročním vyúčtováním).
 Možnost parkování na parkovišti Obchodního centra Praděd - 1 000Kč/měsíc
Ideální pro všechny, pro koho bude přínosem možnost využívat výtahy vč. bezbariérového a parkoviště naproti budovy.
Prostory jsou ihned k dispozici, prohlídky po předchozí dohodě.
Benefitem tohoto komerčního prostoru je bezesporu již zmíněná poloha v centru města.
Máte zájem o tuto nemovitost?
Jílová 1550/1, Šumperk
Pomůžeme Vám!
Pomůžeme Vám!
Kontakt
 
                        Renáta Venclová
Přihlášení k odběru
Nenechte si ujít nejnovější nabídky pronájmu kanceláří v Šumperku.
 
                                                                                     
                                                                                     
                                                                                     
                                                                                     
                                                                                     
                                                                                     
                                                                                     
                                                                                     
                                                                                     
                                                                                     
                                                                                     
                                                                                     
                                                                                     
                                                                                     
                                                                                     
                                                                                     
                                                                                     
         
         
        