Prodej zemědělské usedlosti, Veliš, 335 m2
Veliš
Popis
Zemědělská usedlost s velkým potenciálem – Veliš u Jičína.
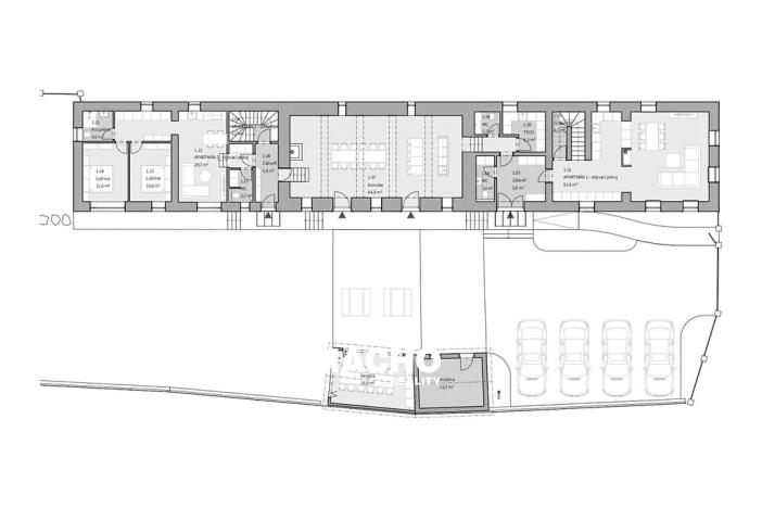
Pozemek 2 763 m2 | Zastavěná plocha 335 m2 | Projekt a architektonická studie součástí nabídky
V exkluzivním zastoupení majitele nabízíme k prodeji zemědělskou usedlost na úpatí kopce Veliš, pouhých 10 minut od centra Jičína. Nemovitost je určena ke kompletní rekonstrukci, a právě to vytváří prostor pro vznik výjimečného projektu s jasně definovanou vizí.
Na pozemku o rozloze 2 763 m2 se nachází:
• hlavní obytná budova,
• chlévy,
• menší přidružené budovy
• pískovcové sloupy, které zůstaly po demolici druhé stodoly v zadní části zahrady.
Dále je součástí pozemku ovocný sad a potůček na jeho hranici, kde architektonická studie uvažuje o přírodním koupacím biotopu.
Nemovitost je přístupná z obecní komunikace, ze zadní strany pak vede další přístupová cesta, na níž je součástí prodeje spoluvlastnický podíl.
Technické informace:
• Celková plocha pozemku: 2 763 m2
• Zastavěná plocha: 335 m2
• Stavby na pozemku: hlavní obytná budova, chlévy, další menší budovy
• Zachovalé pískovcové sloupy po zrušené stodole
• Obytný dům: částečně podsklepený, s pískovcovou podezdívkou, půdou a kopanou studnou (15 m hluboká, vydatný zdroj vody)
• Inženýrské sítě: nové přípojky vody, kanalizace a elektřiny – vše na pozemku
• Plynová přípojka: přímo před domem
• Přístup: z obecní komunikace + podíl na přístupové cestě ze zadní strany
Součást nabídky:
• Projektová dokumentace
• Architektonická studie – návrh přeměny na luxusní venkovský areál s několika apartmány, společenskou konobou, wellness zónou (bazén, sauna, ochlazovna), relaxačními místy a zázemím pro hosty
Usedlost je ideální jak pro podnikatelský záměr v oblasti venkovské turistiky, tak pro vznik stylového rodinného sídla s klidem, soukromím a velkorysým prostorem.
Obec Veliš nabízí obecní úřad, školu, školku, knihovnu, sportoviště, cyklostezky i autobusovou zastávku jen pár kroků od domu. Kompletní občanská vybavenost je v blízkém Jičíně – 4km.
Prodávající si vyhrazuje právo vybrat kupujícího na základě jím zvolených kritérií, a to bez povinnosti přijmout nejvyšší nabídku.
Máte zájem o tuto nemovitost?
Pražská 1616, Mníšek pod Brdy
Pomůžeme Vám!
Pomůžeme Vám!
Kontakt

Kamila Brabencová
Přihlášení k odběru
Nenechte si ujít nejnovější nabídky prodeje zemědělských usedlostí v Veliši (okr. Jičín).
Tipy Realitymatu

Prodej chaty, Jičíněves - Keteň, 25 m2
2 990 000 Kč

Prodej rodinného domu, Vidochov, 157 m2
3 900 000 Kč
Podobné nabídky

Prodej zemědělské usedlosti, Borek - Želejov, 90 m2
7 250 000 Kč

Prodej zemědělské usedlosti, Mladějov, 260 m2
7 550 000 Kč