Prodej rodinného domu, Praha - Liboc, Ke Džbánu, 290 m2
Ke Džbánu, Praha 6, Liboc
Popis
Rodinný dům v klidné ulici Ke Džbánu, jen 3 minuty chůze od tramvajové zastávky Divoká Šárka. Přímý výhled do zeleně, skvělá dostupnost do centra i na letiště, přírodní rezervace za rohem.
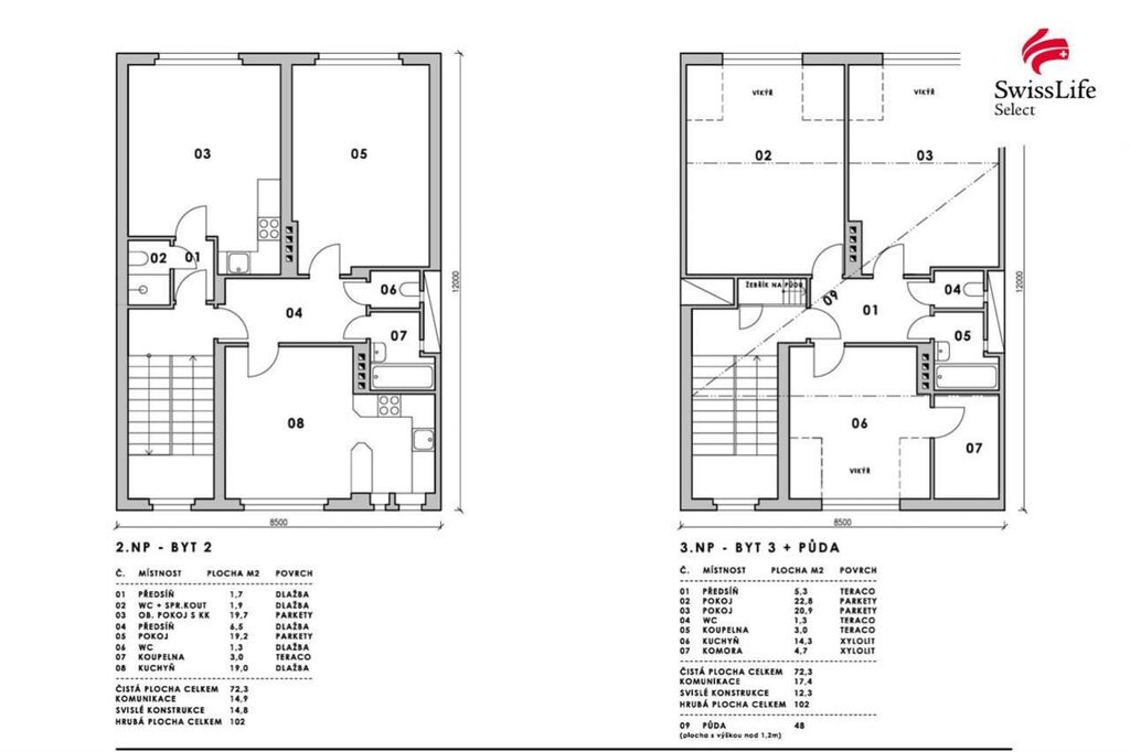
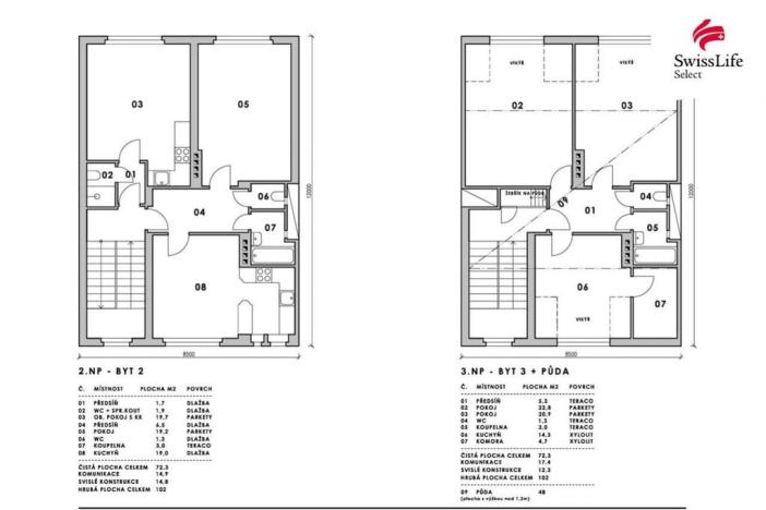
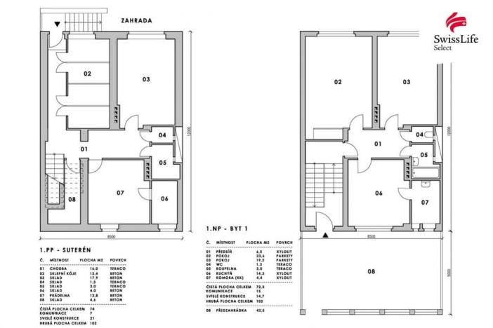
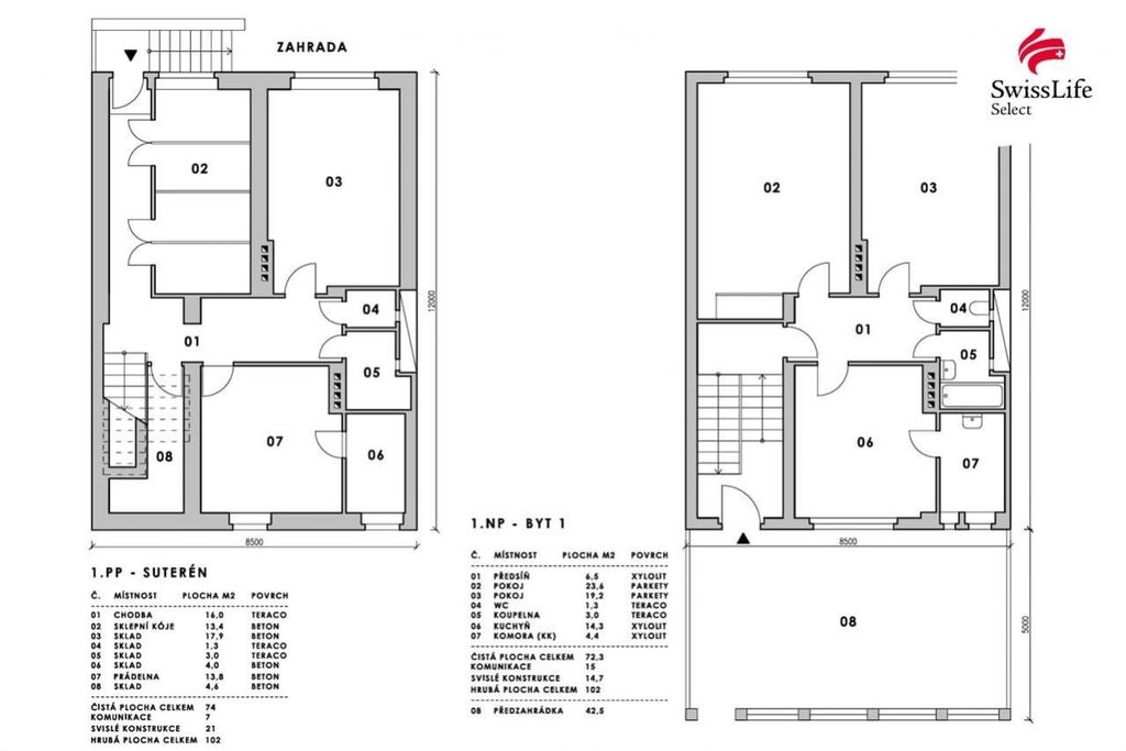
Čtyři nadzemní podlaží včetně půdy a jedno podzemní. Každé patro má výměru cca 102 m, celková užitná plocha tedy činí 408 m. Na pozemku o celkové výměře 332 m se nachází také zahrada o rozloze 230 m. Dispozice domu je aktuálně připravena pro 5 samostatných bytových jednotek, zapsání v katastru zatím neproběhlo. Půdní prostor umožňuje další rozšíření například o dvě další bytové jednotky.
Stav nemovitosti vyžaduje kompletní rekonstrukci. Požár způsobený nedopalkem zanechal interiér začouzený, statika i konstrukce domu však zůstaly neporušené. Majitel již zahájil výmalbu a základní obnovu prostoru.
Investiční potenciál je zásadní. Vzniknout může projekt nájemního bydlení, bytový dům k prodeji nebo vícegenerační rodinné bydlení.
Dům není zatížen právními vadami a je ihned k dispozici.
Zaujalo Vás to? Zavolejte si a rovnou si domluvte prohlídku.
Podobné příležitosti v této části Prahy se objevují jen výjimečně.
Máte zájem o tuto nemovitost?

Pobřežní 620/3, Praha 8
Pomůžeme Vám!
Pomůžeme Vám!
Kontakt

Zuzana Veselá
Přihlášení k odběru
Nenechte si ujít nejnovější nabídky prodeje rodinných domů v Praze 6.
Podobné nabídky

Prodej rodinného domu, Praha - Suchdol, Bažantní, 173 m2
18 500 000 Kč