Prodej rodinného domu, Šenov, Větrná, 164 m2
Větrná, Šenov
Popis
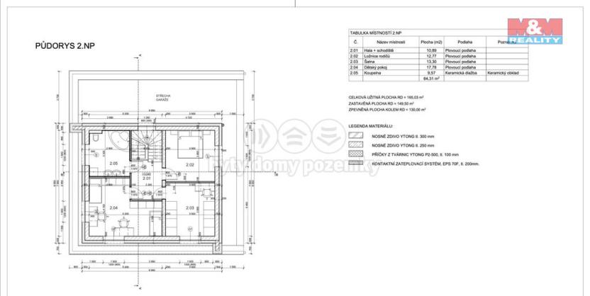
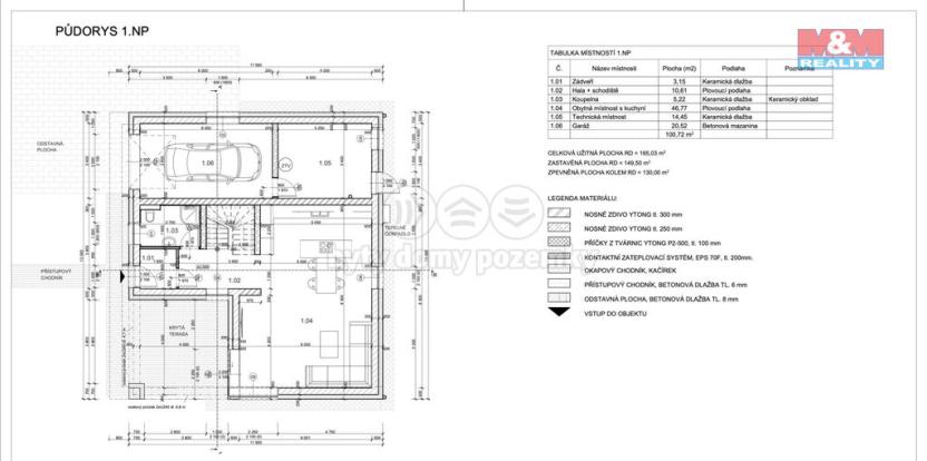
Nabízíme vám k prodeji rodinný dům zkolaudovaný v roce 2019 v Šenově, na ulici Větrná. Nadstandardně vybavený rodinný dům stojí ve slepé ulici, což zajišťuje klid a soukromí. V domě najdete veškeré moderní vybavení jako je Jablotron zabezpečení, kamerový systém, elektrické rolety, bazén a mnohem víc. V 1. podlaží se nachází garáž pro 1 auto s technickou místností, dále po vstupu do domu najdete menší předsíň, koupelnu se sprchovým koutem a WC, velmi prostorný obývací pokoj s kuchyní a jídelnou. Ve 2. podlaží se nachází 3 pokoje a koupelna s vanou, sprchovým koutem a wc. V ložnici je možnost dostavění balkonu. O teplo se stará tepelné čerpadlo a podlahové topení, zároveň je dům napojen na veřejný vodovod a kanalizaci. U domu je parkovací stání až pro 4 auta. V roce 2024 byl vybudován bazén s přístřeškem. Doporučujeme prohlídku. Pro více informací volejte makléře.
Máte zájem o tuto nemovitost?

ulice Krakovská 583/9, Praha
Pomůžeme Vám!
Pomůžeme Vám!
Kontakt

Tomáš Lorenc
Přihlášení k odběru
Nenechte si ujít nejnovější nabídky prodeje rodinných domů v Šenově.
Podobné nabídky

Prodej rodinného domu, Šenov, Petřvaldská, 206 m2
11 190 000 Kč

Prodej rodinného domu, Šenov, Dlouhá, 68 m2
6 100 000 Kč

Prodej rodinného domu, Šenov, 156 m2
9 980 000 Kč

Prodej rodinného domu, Šenov, U Nádraží, 236 m2
5 690 000 Kč