Prodej bytu 2+kk, Praha - Vinohrady, Polská, 58 m2 (ID: 1906935)

Polská, Praha, Vinohrady


15 190 000 Kč /za nemovitost
HYPOTÉKA od 67 890 Kč /měs.

(včetně DPH)


Regionální dodavatelé v Praze 2

Stěhovací služby

Výkup a prodej starého nábytku

Popis

Pozvánka na virtuální prohlídku Rezidence PO7SKÁ:
Srdečně Vás zveme na setkání do našeho klientského centra v následujících termínech.

středa 5. 11. od 9:00 do 14:00 h
čtvrtek 6. 11. od 13:00 do 19:30 h

Těšit se můžete na příjemnou atmosféru, virtuální prohlídku a ukázku standardů vybavení. Součástí setkání bude také prezentace společnosti Decoland ze světa interiérů a drobné občerstvení, které zpříjemní Váš čas ve showroomu. Prosíme o rezervaci termínu na internetových stránkách SATPO.

Hledáte investiční příležitost na skvělém místě?

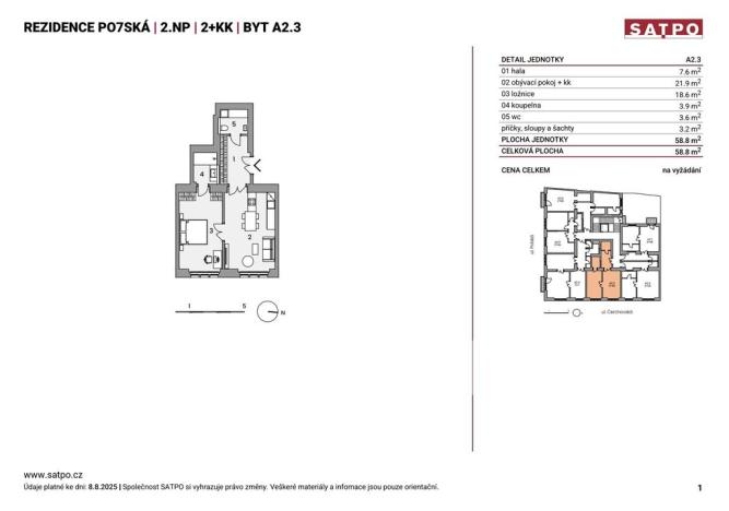
Představujeme vám elegantní byt o dispozici 2+kk v 2. NP noblesního domu s vnitřní plochou 58,8 m2, který nabídne stylové zázemí na adrese s atmosférou i duší.

Ve vinohradské ulici Polská právě dáváme život bytovému domu z počátku 20. století. Už na jaře 2026 bude připravený vám zajistit životní komfort promyšlený do posledního detailu. Realitní projekt roku 2024 oceněný Cenou veřejnosti vyniká především respektem k historii a zachováním původních zdobných prvků v exteriérech i interiérech. Nachází se jen pár kroků od náměstí Jiřího z Poděbrad, Riegrových sadů, stylových kaváren, kvalitních škol i stanice metra. Historická atmosféra Královských Vinohrad se zde potkává s moderním komfortem – kombinace, kterou si zamilujete.

Dispozici jednotky tvoří vstupní hala s toaletou a průchozí obývací pokoj s kuchyňským koutem. Klid a soukromý prostor rezidentům zajistí ložnice s koupelnou.

Byt i celý dům definují špičkové materiály a nadčasový design:

– podlahové vytápění v koupelně
– dřevěná podlaha vyráběná na zakázku
– kvalitní nová okna v původním historickém designu
– luxusní bílá koupelna s vybavením Villeroy & Boch a Grohe.

To vše doplňují elegantní společné prostory s historickými detaily, moderní výtah, sklep ke každé jednotce, čipový vstupní systém, videotelefon a příprava pro chytrou domácnost. K dispozici je navíc privátní wellness se saunou a fitness, stejně jako zelený vnitroblok pro chvíle klidu.

V rezidenci PO7SKÁ je celkem 31 bytů, 2 ubytovací jednotky a 3 komerční prostory. Prodáno je přes 50 % jednotek a zájem nebývale roste.

Byt je aktuálně pronajat se smlouvou na dobu neurčitou, více informací získáte od našich realitních specialistů. Poslední jednotka 2+kk v rezidenci s klasickými vysokými stropy.

Zaujalo i vás toto mimořádné místo?
Napište nám! Rádi vám o této příležitosti povíme více.

Cena
15 190 000 Kč /za nemovitost Spočítat hypotéku
Poznámka k ceně
včetně DPH
Aktualizováno
21. 10. 2025
Adresa
Polská, Praha, Vinohrady
ID
POL_A2.3a
Stavba
Cihlová
Stav objektu
Po rekonstrukci
Patro
2.
Vlastnictví
Osobní
Užitná plocha
58 m2
Třída energetické náročnosti
D - Méně úsporná
Ukazatel energetické náročnosti
99.9 kWh/m2 za rok
Výtah

Máte zájem o tuto nemovitost?

Tímto, v souladu s nařízením Evropského parlamentu a Rady (EU) 2016/679, v platném znění, prohlašuji, že mi je alespoň 16 let a uděluji tak svůj souhlas se zpracováním zadaných údajů (jméno, telefon, e-mail, ip adresa) společnosti B3 Technology, s.r.o., IČ: 07330600, se sídlem Novostavby 126/23, 435 11 Lom (správce dat), za účelem předání dotazu z tohoto formuláře Vámi vybranému inzerentovi a zpětného kontaktování mé osoby. Osobní údaje bude správce zpracovávat manuálně i automaticky přímo prostřednictvím svých zaměstnanců. Informace předané tímto formulářem budou uloženy v databázi správce maximálně po dobu 10 let. Odvolání souhlasu s uložením a zpracováním poskytnutých dat lze e-mailem na info@realitymat.cz. V případě podezření na neoprávněné použití Vámi poskytnutých údajů máte právo předat podnět k šetření Úřadu pro ochranu osobních údajů. Více informací
Chystáte se prodat nemovitost?
Pomůžeme Vám!

Kontakt

SATPO klientské centrum

SATPO klientské centrum

Přihlášení k odběru

Nenechte si ujít nejnovější nabídky prodeje bytů 2+kk v Praze 2.

Podobné nabídky