Prodej rodinného domu, Kroměříž, Raisova, 89 m2
Raisova, Kroměříž
(včetně poplatků, včetně provize, včetně právního servisu)
Popis
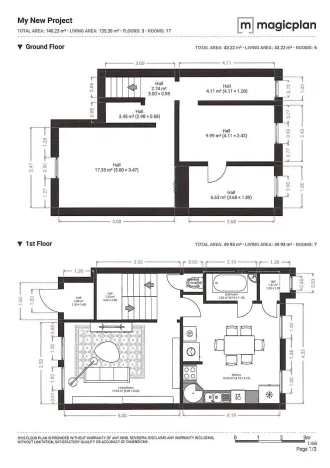
Nabízíme k prodeji řadový podsklepený rodinný dům o dispozici 4+1 v Kroměříži.
Dům disponuje předzahrádkou a malou zahradou za domem, celková plocha pozemku a zastavěná plochy včetně nádvoří je 139 m2.
Dům prochází postupnou rekonstrukcí.
V přízemí je umístěn obývací pokoj, kuchyně, koupelna s vanou, samostatné wc, komora a z kuchyně je vstup na zahradu. Prostor se dá v případě rekonstrukce propojit, kuchyni lze spojit s obývacím prostorem, případně lze zvětšit koupelnu a zrušit komoru. Variabilita je možná.
V patře se nachází ložnice s balkonem, dětský pokoj a třetí pokoj, který není dokončen, zde je vstup pod střechu. Pokoj se dá využívat např. jako pracovna.
Dům je celý podsklepený. Ve sklepě je kotelna, sušárna, prostor na kola a dílnu.
Do zahrádky za domem se vstupuje z kuchyně i ze sklepa, případně z boční uličky zadní brankou.
Plastová okna jsou opatřeny trojskly, balkonové dveře na zahradu dvojskly, dům je zateplený 20 cm vaty, sklep je suchý, elektrika v mědi, na zahrádce je pergola pro klidné posezení, střecha je nová sedlová, ohřev vody řešen bojlerem 120l.
Energetický štítek E, prodiskutujeme kroky k další úspoře.
Výhody domu: Výhody domu: 4+1 možnost variabilně si vyřešit vstupy do pokojů, umístění ve slepé uličce, tudíž minimální provoz, parkování u domu, nebo lze vybudovat stání a vydláždění před brankou, řadový dům, nízké náklady na topení, v blízkosti je dětské hřiště, supermarket Penny, benzinka OMV, dům je blízko centra Kroměříže, Podzámecké zahrady, která je nádherná a na čas s dětmi nenahraditelná, dostupnost na D1 je do 2 minut autem. Další výhodou je malý měsíční náklad do 3000,- měsíčně za plyn, elektřinu, vodu a internet, dále příznivá cena nemovitosti. Další výhody jsou nová sedlová střecha (3 roky), balkón, pergola, malá zahrada pro drobné hospodaření a posezení, dům je zateplený, vytápěný kondenzačním plynovým kotlem.
Dům je potřeba dokončit fásádní omítkou a dokončit třetí pokoj v patře.
Město Kroměříž je multikulturní město nazývané také Hanácké Athény. Arcibiskupský zámek s Podzámeckou zahradou a Květnou zahradou jsou zapsány na listinu světového kulturního dědictví UNESCO.
Ve městě je vlakové a autobusové nádraží, doprava MHD, cyklostezky, dálnice. V Kroměříži je několik základních škol, mateřských škol, základní umělecká škola, několik gymnázií, a i několik středních škol s různým zaměřením.
V Kroměříži je plnohodnotná zdravotnická péče, poliklinika a nemocnice.
Kroměříž má velmi bohatý celoroční kulturní program, je zde také spoustu restaurací a kaváren.
Najdeme tu bohaté sportovní vyžití, v centru Kroměříže je atletický stadion, zimní stadion, fotbalový stadion, krytý bazén i letní koupaliště. Je zde několik obchodních řetězců a nákupní centrum. Výstaviště Floria, které nabízí celoroční akce různého žánru a vyžití od výstav až po festivaly a jeho součástí je i zábavní centrum pro děti „Dětský svět“.
Kroměříž si prostě zamilujete. Tento domeček nabízí klidné a levné bydlení v Kroměříži.
Máte zájem o tuto nemovitost?
Pomůžeme Vám!
Kontakt

Andrea Hamerníková Sedlaříková
Přihlášení k odběru
Nenechte si ujít nejnovější nabídky prodeje rodinných domů v Kroměříži.
Podobné nabídky

Prodej rodinného domu, Kroměříž, 108 m2
8 890 000 Kč

Prodej rodinného domu, Kroměříž, Žerotínova, 145 m2
5 150 000 Kč

Prodej rodinného domu, Kroměříž, Na Lindovce, 140 m2
6 900 000 Kč

Prodej rodinného domu, Kroměříž - Těšnovice, 295 m2
4 700 000 Kč