Prodej bytu 2+kk, Dolní Branná, 52 m2
Dolní Branná, okres trutnov
(Parkovací stání lze koupit za 150 000, Kč)
Popis
Prodej bytu 2+kk s lodžií v Podkrkonošší – Dolní Branná
Hledáte stylové a úsporné bydlení v klidné lokalitě s výbornou dostupností do města? Pak vás jistě zaujme tento byt v novém projektu Byty v Dolní Branné, pouhých 5 minut jízdy od Vrchlabí!
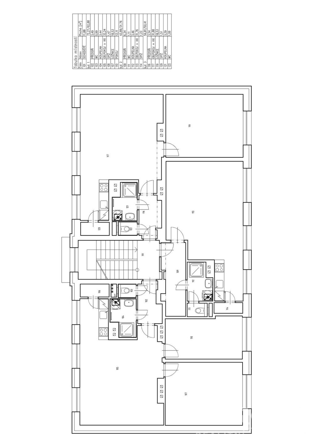
Byt o dispozici 2+kk a výměře 52 m² se nachází ve zcela zrekonstruovaném cihlovém domě se třemi nadzemními podlažími. Tento byt se nachází v podkroví domu. Projekt je navržen s důrazem na kvalitu, moderní design a energetickou efektivitu (třída PENB B).
Co vám tento byt nabízí:
    Světlý obývací pokoj s přípravou na kuchyňskou linku
    Pohodlnou ložnici s dostatkem prostoru pro skříně i postel
    Stylovou koupelnu s moderním vybavením
    Lodžie  výhled do okolí
    Velký sklep – ideální pro úložné prostory, hobby nebo dílnu
    Vyhrazené parkovací místo přímo u domu
    Možnost využití zahrady – pro relax, grilování nebo pěstování
Perfektní lokalita pro aktivní i klidný život:
Dolní Branná nabízí harmonii přírody a občanské vybavenosti – mateřská a základní škola, obchod, pošta, autobus i vlak jsou v docházkové vzdálenosti. Města Vrchlabí a Jilemnice pak doplňují vše ostatní – lékaři, restaurace, sportoviště i pracovní příležitosti.
Milovníci sportu a přírody ocení bohaté možnosti turistiky, cyklistiky, běžek, lyžování i relaxace.
Termín dokončení: září 2025
Byt je vhodný jak pro vlastní bydlení, tak jako investice na pronájem.
Zajistěte si svůj nový domov v podhůří Krkonoš – spojení přírody, komfortu a dostupnosti, které jen tak nenajdete.
Kontaktujte nás pro více informací nebo domluvení prohlídky!
Máte zájem o tuto nemovitost?
 
                                Václavské náměstí 806/62, Praha
Pomůžeme Vám!
Pomůžeme Vám!
Kontakt
 
                        Lubor Karásek
Přihlášení k odběru
Nenechte si ujít nejnovější nabídky prodeje bytů 2+kk v Dolní Branné.
Tipy Realitymatu
 
        Prodej bytu 3+kk, Kunčice nad Labem, 88 m2
5 990 000 Kč
 
        Prodej bytu 3+kk, Kunčice nad Labem, 88 m2
5 490 000 Kč
Podobné nabídky
 
        Prodej bytu 2+kk, Dolní Branná, 60 m2
4 598 000 Kč
 
        Prodej bytu 2+kk, Úpice, 3. května, 49 m2
1 999 000 Kč
 
        Prodej bytu 2+kk, Trutnov, náměstí Horníků, 56 m2
3 390 000 Kč
 
        Prodej bytu 2+kk, Hostinné, I. Herrmanna, 50 m2
2 799 000 Kč
 
                                                                                     
                                                                                     
                                                                                     
                                                                                     
                                                                                     
                                                                                     
                                                                                     
                                                                                     
                                                                                     
                                                                                     
                                                                                     
                                                                                     
                                                                                     
                                                                                     
                                                                                     
                                                                                     
                                                                                     
                                                                                     
                                                                                     
                                            