Prodej rodinného domu, Moravany - Turov, 550 m2

Turov


8 500 000 Kč /za nemovitost
HYPOTÉKA od 37 990 Kč /měs.
Regionální dodavatelé v Moravanech

Pojištění a finance

Popis

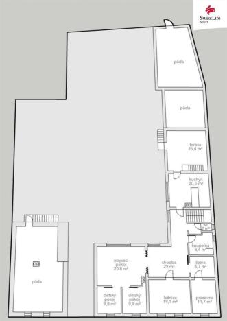
Nabízíme k prodeji rodinný dům s 2 prostornými bytovými jednotkami a spoustou vedlejších staveb vhodných pro práci, parkování a uložení vetších movitých věcí i trávení volného času s rodinou a přáteli.
Dům se nachází v obci Turov, která spadá pod obec Moravany v dojezdové vzdálenosti 5 minut od nájezdu na D35.
V občanské vybavenosti obce je základní i mateřská škola v Moravanech, prodejny potravin, sportovní a zájmové kluby, pošta, praktický lékař, zubní péče, přírodní koupaliště se zázemím, prodejna stavebnin a pracovní příležitosti.
K domu patří i pozemky, které jso uv územním plánu určené k zástavbě vesnického typu a částečně jako zeleň.
Dům bude k nastěhování po převodu na nového majitele.

Cena
8 500 000 Kč /za nemovitost Spočítat hypotéku
Aktualizováno
14. 2. 2026
Adresa
Turov
ID
24316
Stavba
Cihlová
Stav objektu
Dobrý
Vybaveno
Ano
Typ objektu
Patrový
Druh objektu
Samostatný
Užitná plocha
550 m2
Zastavěná plocha
600 m2
Podlahová plocha
550 m2
Plocha pozemku
2537 m2
Elektřina
230V, 400V
Plyn
Individuální
Odpad
Septik
Topení
Lokální plynové
Komunikace
Dlážděná
Telekomunikace
Internet
Doprava
Dálnice, Silnice, Autobus
Voda
Vodovod
Garáž
Sklep
Bezbarierový přístup
Parkování

Máte zájem o tuto nemovitost?

Tímto, v souladu s nařízením Evropského parlamentu a Rady (EU) 2016/679, v platném znění, prohlašuji, že mi je alespoň 16 let a uděluji tak svůj souhlas se zpracováním zadaných údajů (jméno, telefon, e-mail, ip adresa) společnosti B3 Technology, s.r.o., IČ: 07330600, se sídlem Novostavby 126/23, 435 11 Lom (správce dat), za účelem předání dotazu z tohoto formuláře Vámi vybranému inzerentovi a zpětného kontaktování mé osoby. Osobní údaje bude správce zpracovávat manuálně i automaticky přímo prostřednictvím svých zaměstnanců. Informace předané tímto formulářem budou uloženy v databázi správce maximálně po dobu 10 let. Odvolání souhlasu s uložením a zpracováním poskytnutých dat lze e-mailem na info@realitymat.cz. V případě podezření na neoprávněné použití Vámi poskytnutých údajů máte právo předat podnět k šetření Úřadu pro ochranu osobních údajů. Více informací
Chystáte se prodat nemovitost?
Pomůžeme Vám!
Theleadway banner

Kontakt

Jan Louženský

Jan Louženský

Přihlášení k odběru

Nenechte si ujít nejnovější nabídky prodeje rodinných domů v Moravanech (okr. Pardubice).

Podobné nabídky