Prodej rodinného domu, Horšovský Týn, Pšeničná, 316 m2 (ID: 1884392)

Pšeničná, Horšovský Týn, Malé Předměstí


13 900 000 Kč /za nemovitost
HYPOTÉKA od 62 125 Kč /měs.
Regionální dodavatelé v Horšovském Týně

Podlahy

Stěhovací služby

Popis

Moderní dvojdomek v atraktivní lokalitě Horšovského Týna – ideální pro rodinné bydlení

Hledáte klidné a komfortní bydlení v moderním prostředí? Máme pro vás jedinečnou příležitost! Nabízíme k prodeji nový dvojdomek, dokončený v červnu 2022, situovaný v nově se rozvíjející čtvrti na okraji Horšovského Týna.

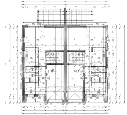
Dispozice a vybavení
Tento dvojdomek je vhodný jak pro dvougenerační rodinu, tak i do sousedství, v případě že by se každá jednotka prodala samostatně. Byl kladen důraz na kvalitní odhlučnění obou jednotek a dispozičně je navržen tak, aby jednotlivé rodiny měly naprosté soukromí.

Každá z dvou samostatných bytových jednotek je promyšleně navržena tak, aby poskytla dostatek prostoru i pohodlí:

Přízemí:
Prostorná garáž:
Dostatek místa nejen pro auto, ale i pro regály nebo pracovní stůl, což ocení kutilové.
Příprava pro třífázové nabíjení elektromobilu.
Pohodlné dálkově ovládané garážové vrata.
Vytápěná podlaha, díky níž zůstane auto v teple i během zimy. Garáž nabízí možnost přímého vstupu do domu, což umožňuje suchou nohou přejít z auta domů.
Prostorná vstupní chodba:
Navržena tak, aby pojala prostornou vestavěnou šatní skříň.
Pod šatníkem je připravena štěrbina centrálního vysavače pro snadné a rychlé čištění této části domu.
Technická místnost vybavená sprchovým koutem a toaletou.
Samostatné WC s umyvadlem.
Světlý obývací pokoj propojený s budoucím kuchyňským koutem – ideální místo pro rodinné chvíle.
Praktická spíž v prostoru pod schodištěm.
Patro:
Čtyři samostatné pokoje:
Tři pokoje lze využít například jako dětské nebo pracovní.
Prostorná ložnice s vlastní šatnou.
Elegantní koupelna:
Prostorná vana.
Luxusní sprchový kout s vyhřívanou podlahou.
Velké dvojumyvadlo, které nabízí pohodlí pro celou rodinu.
Toaleta.
Komora, kterou lze přeměnit na šatnu, sklad či malou pracovnu. Z komory je přístup na půdu, která nabízí obrovský úložný prostor.
Vytápění: Podlahové vytápění s vlastním plynovým kotlem pro každou jednotku.
Úsporné energie: Samostatné měření elektřiny, plynu a vody pro každou část domu.
Centrální vysavač: Rozvedený do každé místnosti i garáže – vysávání auta se tak stane radostí.
Moderní technologie a vybavení
Exteriér a zahrada
K domu náleží upravená zahrada o výměře 650 m², ideální pro relaxaci, rodinné grilování nebo dětské hry.

Lokalita
Dům se nachází v klidné čtvrti na okraji města, v docházkové vzdálenosti od veškeré občanské vybavenosti. Ideální poloha pro ty, kteří chtějí bydlet v dosahu přírody, ale zároveň mít vše potřebné na dosah ruky.

Tento dvojdomek nabízí skvělou kombinaci moderního bydlení, prostoru a technologií, které splní i náročné požadavky.

Cena
13 900 000 Kč /za nemovitost Spočítat hypotéku
Náklady na bydlení
cca 5.000,-Kč
Aktualizováno
18. 7. 2025
Adresa
Pšeničná, Horšovský Týn, Malé Předměstí
ID
43/24
Stavba
Cihlová
Stav objektu
Novostavba
Vybaveno
Ne
Druh objektu
Samostatný
Lokalita objektu
Okraj obce
Užitná plocha
316 m2
Podlahová plocha
316 m2
Plocha pozemku
866 m2
Třída energetické náročnosti
B - Velmi úsporná
Elektřina
230V
Plyn
Plynovod
Odpad
Veřejná kanalizace
Topení
Podlahové
Komunikace
Asfaltová
Telekomunikace
Kabelové rozvody
Voda
Vodovod, Retenční nádrž na dešt’ovou vodu
Topné těleso
Podlahové vytápění
Garáž

Máte zájem o tuto nemovitost?

Tímto, v souladu s nařízením Evropského parlamentu a Rady (EU) 2016/679, v platném znění, prohlašuji, že mi je alespoň 16 let a uděluji tak svůj souhlas se zpracováním zadaných údajů (jméno, telefon, e-mail, ip adresa) společnosti B3 Technology, s.r.o., IČ: 07330600, se sídlem Novostavby 126/23, 435 11 Lom (správce dat), za účelem předání dotazu z tohoto formuláře Vámi vybranému inzerentovi a zpětného kontaktování mé osoby. Osobní údaje bude správce zpracovávat manuálně i automaticky přímo prostřednictvím svých zaměstnanců. Informace předané tímto formulářem budou uloženy v databázi správce maximálně po dobu 10 let. Odvolání souhlasu s uložením a zpracováním poskytnutých dat lze e-mailem na info@realitymat.cz. V případě podezření na neoprávněné použití Vámi poskytnutých údajů máte právo předat podnět k šetření Úřadu pro ochranu osobních údajů. Více informací
Chystáte se prodat nemovitost?
Pomůžeme Vám!

Kontakt

Bc. Jan Písařík

Bc. Jan Písařík

Přihlášení k odběru

Nenechte si ujít nejnovější nabídky prodeje rodinných domů v Horšovském Týně.

Podobné nabídky